Watch Watch
Your home of Development Ready videos
Watch Watch
Back

Stage 1 - Haystone Business Park, Tullamarine, VIC 3043

+2 Photos

Stage 1 - Haystone Business Park, Tullamarine, VIC 3043

Tullamarine

×
+4 Photos

Stage 1 - Haystone Business Park, Tullamarine, VIC 3043

Tullamarine

Stage 1 - Haystone Business Park, Tullamarine, VIC 3043

Stage 1 - Haystone Business Park, Tullamarine, VIC 3043

Properties / Buy / Victoria / Tullamarine
Development Potential
Property Type
Industrial
Sub Type
Land Site
Land Area
min - 1,321, max - 3,039 m² (*approx)
Zoning
IN3Z
Selling Method
EOI: Contact Agent
Show All
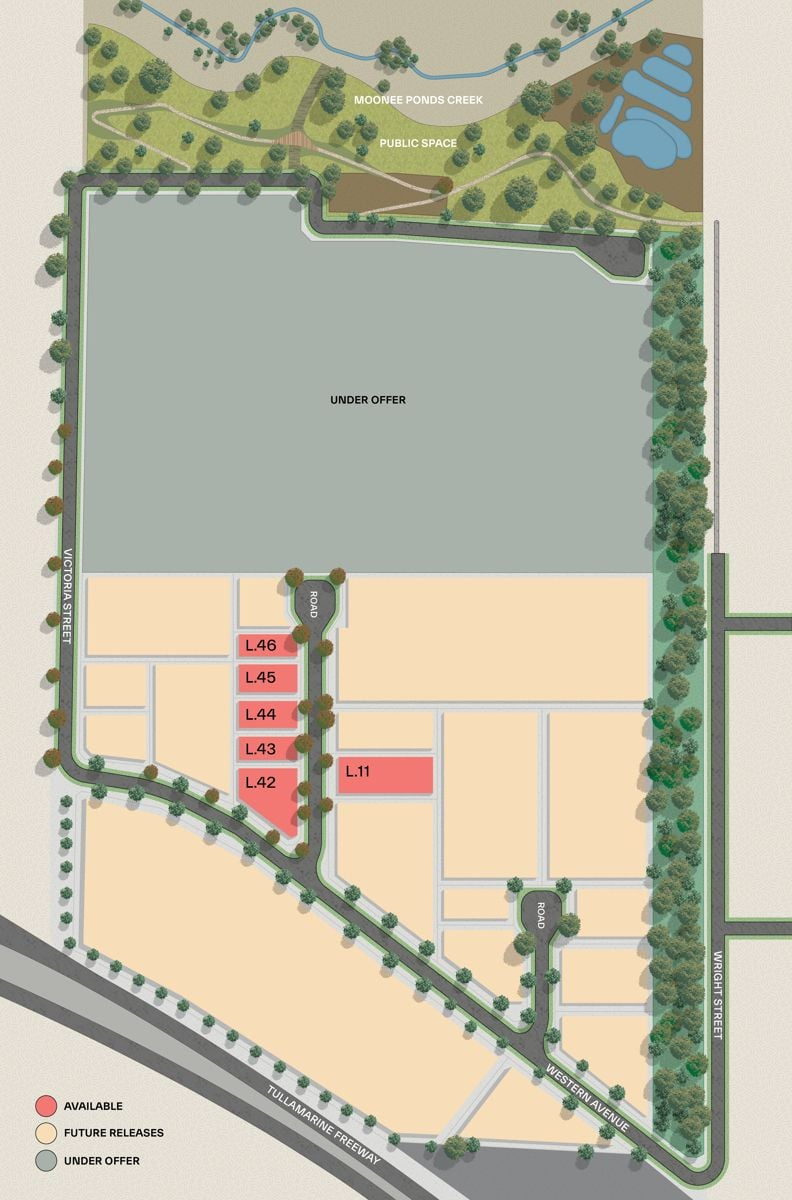
LIMITED INDUSTRIAL LAND REALEASE SITUATED IN THE TULLAMARINE PRECINCT
  • Exceptional development opportunity
  • Land areas ranging from 1,321-3,039sqm*
  • Unparalleled arterial network access

Secure your chance to purchase industrial zoned land within one of the last freehold development opportunities situated in the Tullamarine precinct.

On behalf of MAB, CBRE in conjunction with Savills are exclusively offering the Stage 1 land release of Haystone Business Park, providing prospective purchasers with a opportunity to acquire freehold industrial land within one of Victoria’s most tightly held industrial precincts.

Situated just minutes from Melbourne Airport and strategically positioned by the Tullamarine Freeway, Haystone offers unrivalled visibility from a constant stream of national and international visitors. With the added amenity of over three hectares of open green space and direct access to the Moonee Ponds Creek Trail, Haystone is a natural choice to build a solid foundation for your business or investment.

Stage 1 will comprise of a limited land release of six (6) allotments ranging from 1,321sqm to 3,039sqm:

+ Lot 11: 3,039sqm*

+ Lot 42: 2,618sqm*

+ Lot 43: 1,321sqm*

+ Lot 44: 1,500sqm*

+ Lot 45: 1,500sqm*

+ Lot 46: 1,426sqm*

Key Property Features Include:

+ Industrial zoned 3 (IN3Z)

+ NBN, water and power servicing each allotment

+ Situated in a brand-new industrial estate

+Titles anticipated in Q4 2026

In addition to the site’s key features, the property provides exceptional access and connectivity to the following key arterial networks and amenity:

+ Melbourne Airport - 2.5km*

+ Tullamarine Freeway - 2km*

+ M80 Ring Road - 3.6km*

+ Essendon Fields Retail & Amenity - 7.0km*

+ Westfield Airport West - 7.5km*

+ Melbourne CBD - 16km*

+ Port of Melbourne - 17km*

Stage 1 land will be sold via an Expressions of Interest sale campaign closing Thursday 28th August 2025 at 4PM (AEST).

For Further information please contact the exclusive sale agents.

Haystone extends MAB's unrivalled track record of superior business parks with quality design, flexible choice and proven delivery. MAB has attracted many of Australia’s leading manufacturing, industrial and warehousing businesses across 21 strategically located business parks in Victoria. Their industrial portfolio has been a catalyst for new investment and our precincts are home to companies such as Ford Australia, Dulux, Bunnings and Mainfreight.

* Denotes approx

Remember to mention you found this property on DevelopmentReady

Read More
Development Potential

Stage 1 - Haystone Business Park Development Site Summary

Property Type
Industrial
Sub-type
Land Site
Land Area
min - 1,321, max - 3,039 m² (*approx)
IN3Z
Selling method
EOI: Contact Agent

Development Site Highlights

LIMITED INDUSTRIAL LAND REALEASE SITUATED IN THE TULLAMARINE PRECINCT
  • Exceptional development opportunity
  • Land areas ranging from 1,321-3,039sqm*
  • Unparalleled arterial network access

Secure your chance to purchase industrial zoned land within one of the last freehold development opportunities situated in the Tullamarine precinct.

On behalf of MAB, CBRE in conjunction with Savills are exclusively offering the Stage 1 land release of Haystone Business Park, providing prospective purchasers with a opportunity to acquire freehold industrial land within one of Victoria’s most tightly held industrial precincts.

Situated just minutes from Melbourne Airport and strategically positioned by the Tullamarine Freeway, Haystone offers unrivalled visibility from a constant stream of national and international visitors. With the added amenity of over three hectares of open green space and direct access to the Moonee Ponds Creek Trail, Haystone is a natural choice to build a solid foundation for your business or investment.

Stage 1 will comprise of a limited land release of six (6) allotments ranging from 1,321sqm to 3,039sqm:

+ Lot 11: 3,039sqm*

+ Lot 42: 2,618sqm*

+ Lot 43: 1,321sqm*

+ Lot 44: 1,500sqm*

+ Lot 45: 1,500sqm*

+ Lot 46: 1,426sqm*

Key Property Features Include:

+ Industrial zoned 3 (IN3Z)

+ NBN, water and power servicing each allotment

+ Situated in a brand-new industrial estate

+Titles anticipated in Q4 2026

In addition to the site’s key features, the property provides exceptional access and connectivity to the following key arterial networks and amenity:

+ Melbourne Airport - 2.5km*

+ Tullamarine Freeway - 2km*

+ M80 Ring Road - 3.6km*

+ Essendon Fields Retail & Amenity - 7.0km*

+ Westfield Airport West - 7.5km*

+ Melbourne CBD - 16km*

+ Port of Melbourne - 17km*

Stage 1 land will be sold via an Expressions of Interest sale campaign closing Thursday 28th August 2025 at 4PM (AEST).

For Further information please contact the exclusive sale agents.

Haystone extends MAB's unrivalled track record of superior business parks with quality design, flexible choice and proven delivery. MAB has attracted many of Australia’s leading manufacturing, industrial and warehousing businesses across 21 strategically located business parks in Victoria. Their industrial portfolio has been a catalyst for new investment and our precincts are home to companies such as Ford Australia, Dulux, Bunnings and Mainfreight.

* Denotes approx

Remember to mention you found this property on DevelopmentReady

Read More
Development Potential

Property Location of Stage 1 - Haystone Business Park, Tullamarine, VIC 3043

Property Map

Due Diligence

Site Report Available

Download your free DistrictData site summary. Make sure you are logged into DevelopmentReady to allow access

Report Contains

  • Site Summary
  • Development Pipeline
  • Recent Transactions
  • Surrounding Amenity
Download Report
Download Report
Stage 1 - Haystone Business Park, Tullamarine, VIC 3043 Tullamarine
Enquire