Watch Watch
Your home of Development Ready videos
Watch Watch
Back

Lot 72 Grimwade Road, Balingup, WA 6253

+17 Photos

Lot 72 Grimwade Road, Balingup, WA 6253

Balingup

×
+19 Photos
Lot 72 Grimwade Road, Balingup, WA 6253

Lot 72 Grimwade Road, Balingup, WA 6253

Properties / Buy / Western Australia / Balingup
Development Potential
Property Type
Residential
Sub Type
Land Site, Subdivision
Land Area
19.86 hectares (*approx)
LGA
Shire of Donnybrook-Balingup
Selling Method
Expressions of Interest: Expression of Interest
Show All
SUB-DIVISION APPROVED

Robyn Pillinger and Harry Massam from Acton | Belle Property Fremantle as exclusive selling agents are pleased to present to the market this excellent development opportunity located in Balingup in the stunning South West.

ALL OFFERS PRESENTED 12 NOON MONDAY 17TH NOVEMBER 2025

The subject site is:

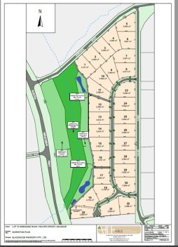
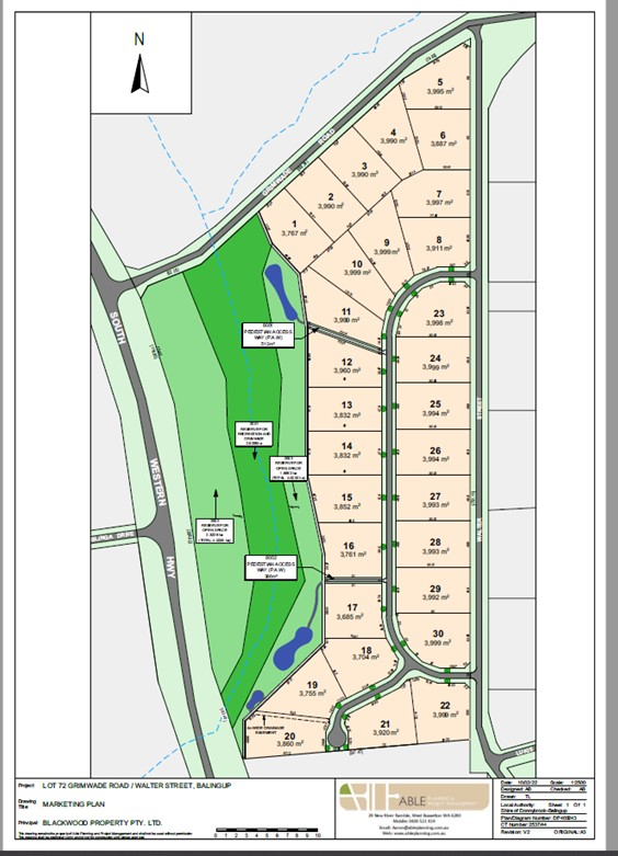
-19.8587 hectares & approved for 30 lot subdivision

-Subdivision and LDP approved

-Lot boundaries fronted by Grimwade Road, Walter Street and South Western Highway

-Located in a major South Western Australian growth region

Nestled in the scenic upper reaches of the Blackwood River Valley, Balingup is a haven for creativity and craftsmanship. The town has long inspired artisans of all kinds-from painters and makers to winemakers and producers of gourmet local delights. Explore one of Western Australia's most renowned tourist drives or wander along the region's walking trails to discover its riches on offer.

Only 2 hours and 40 minutes south of Perth, Balingup greets you with lush forests, meandering rivers, rolling green hills, vineyards and abundant orchards. Enjoy a slower pace by walking the Bibbulmun Track, one of the world's premier long-distance trails, spanning nearly 1,000km from Kalamunda in Perth all the way to Albany on the south coast.

Balingup offers a strategic opportunity to deliver a distinct residential product aligned with market trends. The region's natural amenity, liveability appeal and strong identity position it for a successful residential lifestyle development that captures both owner-occupiers and high-value second-home buyers.

ALL OFFERS PRESENTED 12 NOON MONDAY 17TH NOVEMBER 2025

Contact Harry Massam 0459 775 775 or Robyn Pillinger 0438 903 976 for further details and to request the IM.

**Disclaimer: * The above information is provided for general information purposes only and may be subject to change. No warranty or representation is made as to the accuracy of the information and all interested parties should make their own independent enquiries relating to the information provided and place no reliance on it. Any chattels depicted or described in the information are not included in the sale unless specified in the Offer and Acceptance.**

Remember to mention you found this property on DevelopmentReady

Read More
Development Potential

Lot 72 Grimwade Road Development Site Summary

Property Type
Residential
Sub-type
Land Site, Subdivision
Land Area
19.86 hectares (*approx)
Shire of Donnybrook-Balingup
Selling method
Expressions of Interest: Expression of Interest

Development Site Highlights

SUB-DIVISION APPROVED

Robyn Pillinger and Harry Massam from Acton | Belle Property Fremantle as exclusive selling agents are pleased to present to the market this excellent development opportunity located in Balingup in the stunning South West.

ALL OFFERS PRESENTED 12 NOON MONDAY 17TH NOVEMBER 2025

The subject site is:

-19.8587 hectares & approved for 30 lot subdivision

-Subdivision and LDP approved

-Lot boundaries fronted by Grimwade Road, Walter Street and South Western Highway

-Located in a major South Western Australian growth region

Nestled in the scenic upper reaches of the Blackwood River Valley, Balingup is a haven for creativity and craftsmanship. The town has long inspired artisans of all kinds-from painters and makers to winemakers and producers of gourmet local delights. Explore one of Western Australia's most renowned tourist drives or wander along the region's walking trails to discover its riches on offer.

Only 2 hours and 40 minutes south of Perth, Balingup greets you with lush forests, meandering rivers, rolling green hills, vineyards and abundant orchards. Enjoy a slower pace by walking the Bibbulmun Track, one of the world's premier long-distance trails, spanning nearly 1,000km from Kalamunda in Perth all the way to Albany on the south coast.

Balingup offers a strategic opportunity to deliver a distinct residential product aligned with market trends. The region's natural amenity, liveability appeal and strong identity position it for a successful residential lifestyle development that captures both owner-occupiers and high-value second-home buyers.

ALL OFFERS PRESENTED 12 NOON MONDAY 17TH NOVEMBER 2025

Contact Harry Massam 0459 775 775 or Robyn Pillinger 0438 903 976 for further details and to request the IM.

**Disclaimer: * The above information is provided for general information purposes only and may be subject to change. No warranty or representation is made as to the accuracy of the information and all interested parties should make their own independent enquiries relating to the information provided and place no reliance on it. Any chattels depicted or described in the information are not included in the sale unless specified in the Offer and Acceptance.**

Remember to mention you found this property on DevelopmentReady

Read More
Development Potential

Finance Calculator

Lot 72 Grimwade Road, Balingup, WA 6253

Secure/no obligation

Step 1

Loan Variables

Adjust the inputs to explore your indicative finance options.

You can adjust the inputs below by tapping ‘Adjust Variable Inputs’.

Estimated Purchase Price: $x,xxx,xxx
What you intend to pay for the property
Your Contribution: $x,xxx,xxx
The amount you’re investing
LVR: $x,xxx,xxx
Loan to Value Ratio

Estimated Purchase Price:*

What you intend to pay for the property

$

Your Contribution:

The amount you’re investing

Min: 0% - Max: 90% of purchase price.

$

LVR:

Loan to Value Ratio

Min: 10% - Max: 100% of purchase price.

%

Loan Analysis

Estimated Purchase Price:
Your expected purchase price. Final lender valuation may differ and will affect LVR and borrowing.
$x,xxx,xxx
Your Contribution:
Your funds toward the purchase (savings/equity/gift). Does not include costs like duty, legals or LMI.
$xxx,xxx
Loan to Value Ratio:
Calculated as Loan ÷ Price. Guidance only. Lender policy caps vary by property type, location and borrower profile.
xx%
Loan Amount:
Estimated loan based on your inputs. Excludes fees, LMI and costs. Subject to credit assessment and valuation.
in full report
Interest Only: Monthly Repayments
Estimate using interest-only at 5.85% p.a. Excludes fees. Rates can change without notice.
in full report
Principal & Interest: Monthly Repayments
Estimate at 5.85% p.a. over 15 years, monthly compounding. Excludes fees/LMI. Rates may change.
in full report
Stamp Duty: western australia
Indicative rate for western australia. Concessions/exemptions (e.g., first home) may apply and change the amount.
in full report
Stamp Duty Cost:
Estimate only. Check SRO western australia for the latest rules and any concessions that may reduce this figure.
in full report

Property Location of Lot 72 Grimwade Road, Balingup, WA 6253

One moment please.

Retrieving map...

Due Diligence

Developments and amenities within a 5km radius of this Residential opportunity at Lot 72 Grimwade Road, Balingup, WA 6253.

Site Report Available

Download your free DistrictData site summary. Make sure you are logged into DevelopmentReady to allow access

Report Contains

  • Site Summary
  • Development Pipeline
  • Recent Transactions
  • Surrounding Amenity
Download Report
Download Report
Enquire