Watch Watch
Your home of Development Ready videos
Watch Watch
Back

Belle Eden Estate, Lot 200 - 2 Sienna Boulevard, Ashfield Bundaberg, QLD 4670

+4 Photos

Belle Eden Estate, Lot 200 - 2 Sienna Boulevard, Ashfield Bundaberg, QLD 4670

Ashfield

×
+6 Photos

Belle Eden Estate, Lot 200 - 2 Sienna Boulevard, Ashfield Bundaberg, QLD 4670

Ashfield

Belle Eden Estate, Lot 200 - 2 Sienna Boulevard, Ashfield Bundaberg, QLD 4670

Belle Eden Estate, Lot 200 - 2 Sienna Boulevard, Ashfield Bundaberg, QLD 4670

Properties / Buy / Queensland / Ashfield
Development Approved
Property Type
Residential
Sub Type
House, Other, Land Site
Land Area
6,321 m² (*approx)
Selling Method
Offers to Purchase : Closing Friday, 10 October 2025 at 4pm
DOCUMENTS AVAILABLE
Show All
Child Care Site with Development Approval or Residential Subdivision – Bundaberg City, QLD
  • Child Care Site with Development Approval
  • Residential Subdivision Potential
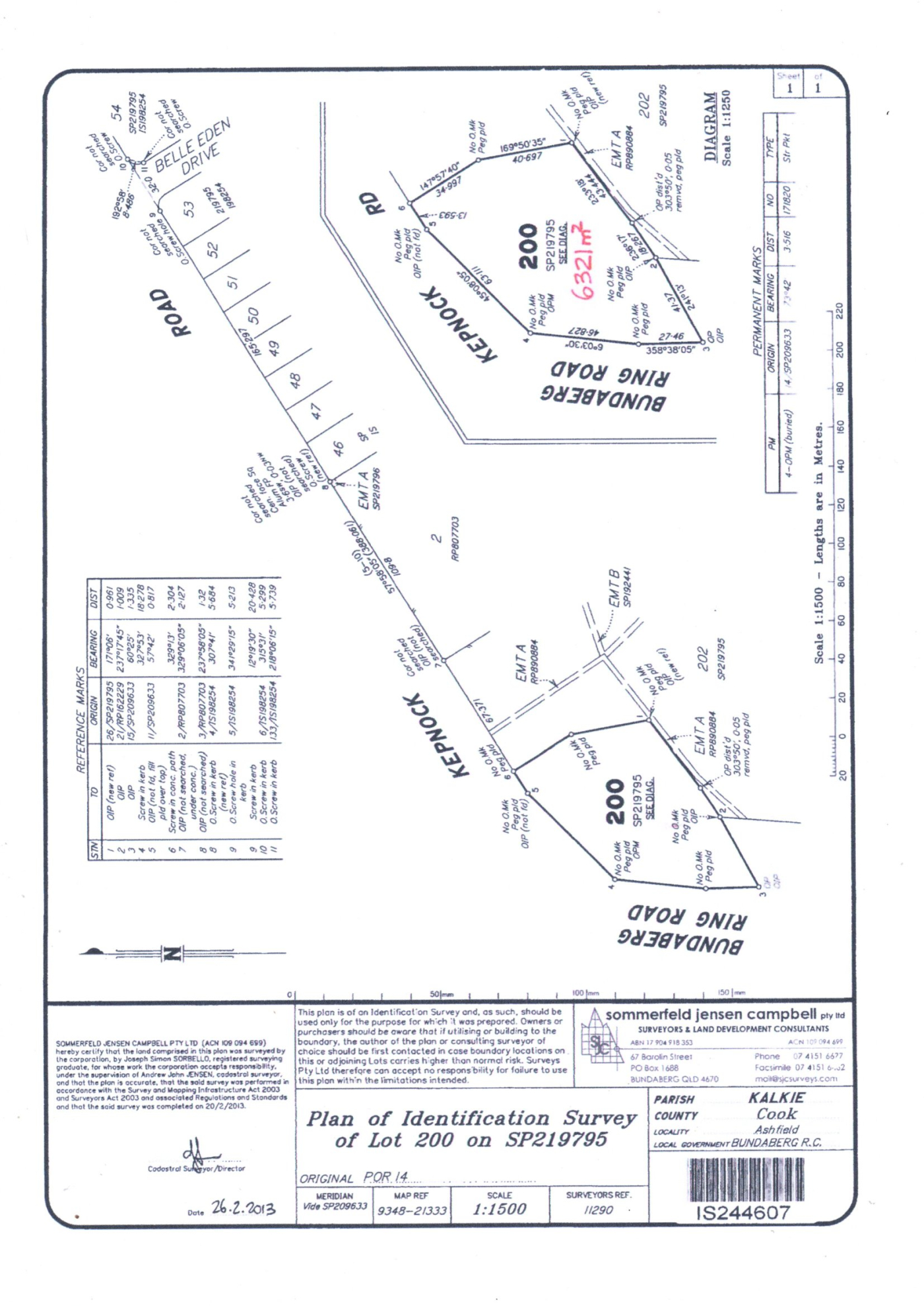
  • Site Area 6321m2 – Fronting Bundaberg Ring Road
  • DA Approved 1st June 2022 – Current for 6 years – 150 children
  • Building Area Childcare is 1063m2 with 44 on site Car Parks
  • Alternative Uses – Residential Subdivision or Large Home site for an Upmarket Property – (STCA) 
  • Current Rates and Water Notice - $3,251 per annum
  • Bundaberg is one of the Fastest Growing Centres in Regional Qld
  • Information Package provided on request

For Sale by Offers to Purchase Campaign Closing Friday, 10th October 2025 at 4PM

Read More
Dataroom
Development Approved

Lot 200 - 2 Sienna Boulevard Development Site Summary

Property Type
Residential
Sub-type
House, Other, Land Site
Land Area
6,321 m² (*approx)
Selling method
Offers to Purchase : Closing Friday, 10 October 2025 at 4pm
DOCUMENTS AVAILABLE
Gain Access

Development Site Highlights

Child Care Site with Development Approval or Residential Subdivision – Bundaberg City, QLD
  • Child Care Site with Development Approval
  • Residential Subdivision Potential
  • Site Area 6321m2 – Fronting Bundaberg Ring Road
  • DA Approved 1st June 2022 – Current for 6 years – 150 children
  • Building Area Childcare is 1063m2 with 44 on site Car Parks
  • Alternative Uses – Residential Subdivision or Large Home site for an Upmarket Property – (STCA) 
  • Current Rates and Water Notice - $3,251 per annum
  • Bundaberg is one of the Fastest Growing Centres in Regional Qld
  • Information Package provided on request

For Sale by Offers to Purchase Campaign Closing Friday, 10th October 2025 at 4PM

Read More
Dataroom
Development Approved

Finance Calculator

Belle Eden Estate, Lot 200 - 2 Sienna Boulevard, Ashfield Bundaberg, QLD 4670

Secure/no obligation

Step 1

Loan Variables

Adjust the inputs to explore your indicative finance options.

You can adjust the inputs below by tapping ‘Adjust Variable Inputs’.

Estimated Purchase Price: $x,xxx,xxx
What you intend to pay for the property
Your Contribution: $x,xxx,xxx
The amount you’re investing
LVR: $x,xxx,xxx
Loan to Value Ratio

Estimated Purchase Price:*

What you intend to pay for the property

$

Your Contribution:

The amount you’re investing

Min: 0% - Max: 90% of purchase price.

$

LVR:

Loan to Value Ratio

Min: 10% - Max: 100% of purchase price.

%

Loan Analysis

Estimated Purchase Price:
Your expected purchase price. Final lender valuation may differ and will affect LVR and borrowing.
$x,xxx,xxx
Your Contribution:
Your funds toward the purchase (savings/equity/gift). Does not include costs like duty, legals or LMI.
$xxx,xxx
Loan to Value Ratio:
Calculated as Loan ÷ Price. Guidance only. Lender policy caps vary by property type, location and borrower profile.
xx%
Loan Amount:
Estimated loan based on your inputs. Excludes fees, LMI and costs. Subject to credit assessment and valuation.
in full report
Interest Only: Monthly Repayments
Estimate using interest-only at 5.85% p.a. Excludes fees. Rates can change without notice.
in full report
Principal & Interest: Monthly Repayments
Estimate at 5.85% p.a. over 15 years, monthly compounding. Excludes fees/LMI. Rates may change.
in full report
Stamp Duty: queensland
Indicative rate for queensland. Concessions/exemptions (e.g., first home) may apply and change the amount.
in full report
Stamp Duty Cost:
Estimate only. Check SRO queensland for the latest rules and any concessions that may reduce this figure.
in full report

Property Location of Belle Eden Estate, Lot 200 - 2 Sienna Boulevard, Ashfield Bundaberg, QLD 4670

One moment please.

Retrieving map...

Market Intelligence Report

Developments and amenities within a 5km radius of the asset.

View Full Report - Dataroom
5km radius max
Distance
Asset Type

One moment please.

Retrieving latest data...

5km radius max
Distance
Belle Eden Estate, Lot 200 - 2 Sienna Boulevard, Ashfield Bundaberg, QLD 4670 Ashfield
Rich & Partners
Rich & Partners
4 / 127 Sugar Road Maroochydore QLD 4558 Australia
Enquire