Watch Watch
Your home of Development Ready videos
Watch Watch
Back

98-104 Riversdale Road, Hawthorn, VIC 3122

+15 Photos

98-104 Riversdale Road, Hawthorn, VIC 3122

Hawthorn

×
+17 Photos
98-104 Riversdale Road, Hawthorn, VIC 3122

98-104 Riversdale Road, Hawthorn, VIC 3122

Properties / Buy / Victoria / Hawthorn
Development Potential
Property Type
Residential, Commercial
Sub Type
Land Site, Office
Land Area
3,443 m² (*approx)
Selling Method
EOI: Expressions of interest close 6 November at 5pm
DOCUMENTS AVAILABLE
EOI Closing Date
6 Nov 2025 05:00PM
Show All
Unprecedented inner-Melbourne landholding with prime commercial advantage

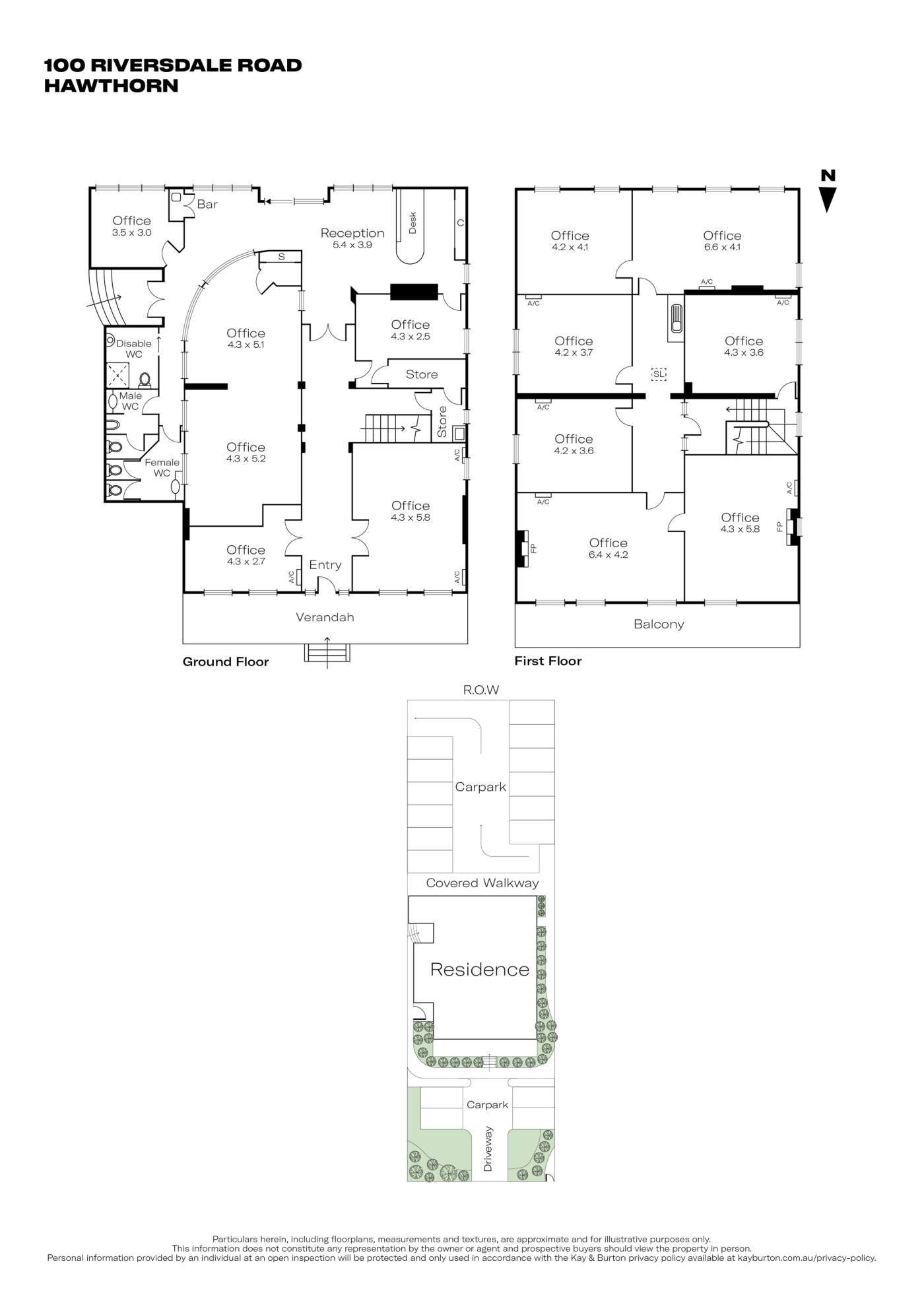
One of the most substantial and highly exposed corner holdings in Melbourne’s inner east, this extraordinary freehold spans approximately 3443 sqm across four titles on the pivotal junction of Riversdale Road and Glen Street, metres from Glenferrie Road. Zoned Residential Growth (RGZ1) and improved by three double-storey c. 1880 mansions adapted for commercial use, it presents a once-in-a-generation opportunity to secure scale and prominence in a tightly held precinct just six kilometres from the CBD. Extensively maintained and upgraded in recent years, including structural and services works, the site is immediately functional while offering clear pathways to repositioning or redevelopment (S.T.C.A).

A combined Gross Lettable Area of about 1,269 square metres (approx.) is supported by on-site parking for 26 vehicles and exceptional dual street exposure. The existing layouts feature reception zones, meeting and training rooms, private offices and staff amenities, allowing a wide range of commercial or consulting operations to continue or evolve. Expansive frontages of approximately 61m to Riversdale Road, complemented by Glen Street vehicle access, deliver outstanding visibility to both vehicle and pedestrian traffic, underpinned by nearby tram routes and rail connections.

Positioned within Hawthorn’s established education and health corridor, moments from Swinburne University, Scotch College, Glenferrie Private Hospital and premier retail and dining, this is a rare large-scale inner-urban holding with immediate income potential and future development prospects, subject to approval, forming a truly significant inner-Melbourne acquisition.

Remember to mention you found this property on DevelopmentReady

Read More
Dataroom
Development Potential

98-104 Riversdale Road Development Site Summary

Property Type
Residential, Commercial
Sub-type
Land Site, Office
Land Area
3,443 m² (*approx)
Selling method
EOI: Expressions of interest close 6 November at 5pm
DOCUMENTS AVAILABLE
Gain Access
EOI Closing Date
6 Nov 2025 05:00PM

Development Site Highlights

Unprecedented inner-Melbourne landholding with prime commercial advantage

One of the most substantial and highly exposed corner holdings in Melbourne’s inner east, this extraordinary freehold spans approximately 3443 sqm across four titles on the pivotal junction of Riversdale Road and Glen Street, metres from Glenferrie Road. Zoned Residential Growth (RGZ1) and improved by three double-storey c. 1880 mansions adapted for commercial use, it presents a once-in-a-generation opportunity to secure scale and prominence in a tightly held precinct just six kilometres from the CBD. Extensively maintained and upgraded in recent years, including structural and services works, the site is immediately functional while offering clear pathways to repositioning or redevelopment (S.T.C.A).

A combined Gross Lettable Area of about 1,269 square metres (approx.) is supported by on-site parking for 26 vehicles and exceptional dual street exposure. The existing layouts feature reception zones, meeting and training rooms, private offices and staff amenities, allowing a wide range of commercial or consulting operations to continue or evolve. Expansive frontages of approximately 61m to Riversdale Road, complemented by Glen Street vehicle access, deliver outstanding visibility to both vehicle and pedestrian traffic, underpinned by nearby tram routes and rail connections.

Positioned within Hawthorn’s established education and health corridor, moments from Swinburne University, Scotch College, Glenferrie Private Hospital and premier retail and dining, this is a rare large-scale inner-urban holding with immediate income potential and future development prospects, subject to approval, forming a truly significant inner-Melbourne acquisition.

Remember to mention you found this property on DevelopmentReady

Read More
Dataroom
Development Potential

Property Location of 98-104 Riversdale Road, Hawthorn, VIC 3122

Property Map

Market Intelligence Report

Developments and amenities within a 5km radius of the asset.

View Full Report - Dataroom
5km radius max
Distance
Asset Type

One moment please.

Retrieving latest data...

5km radius max
Distance
Enquire