 
                 
                             
                    
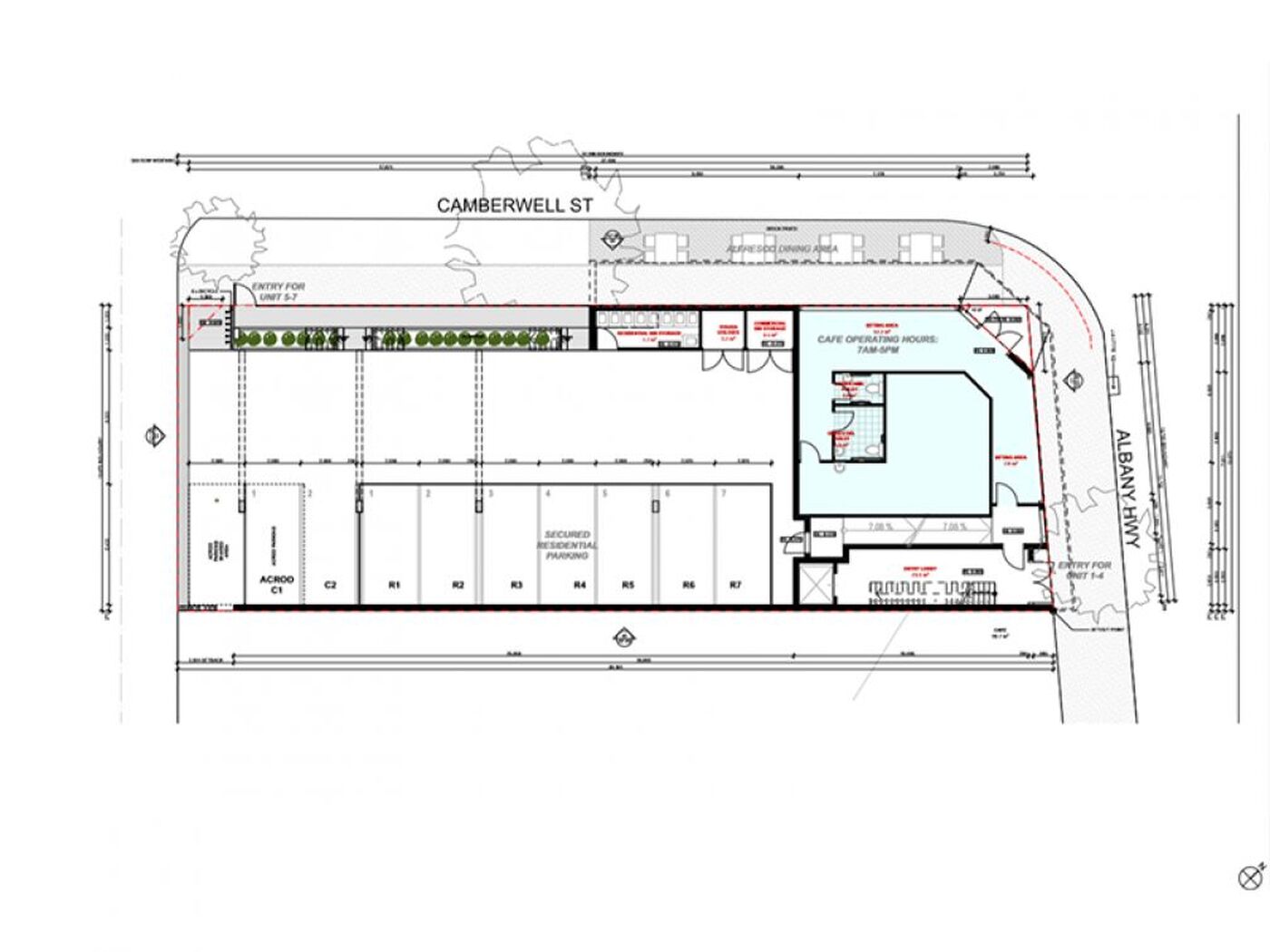
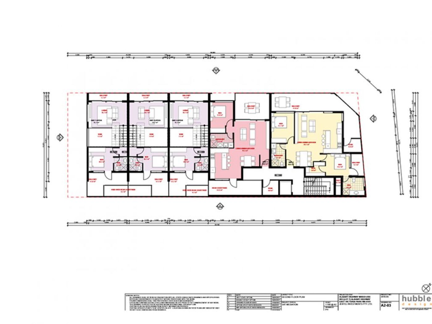
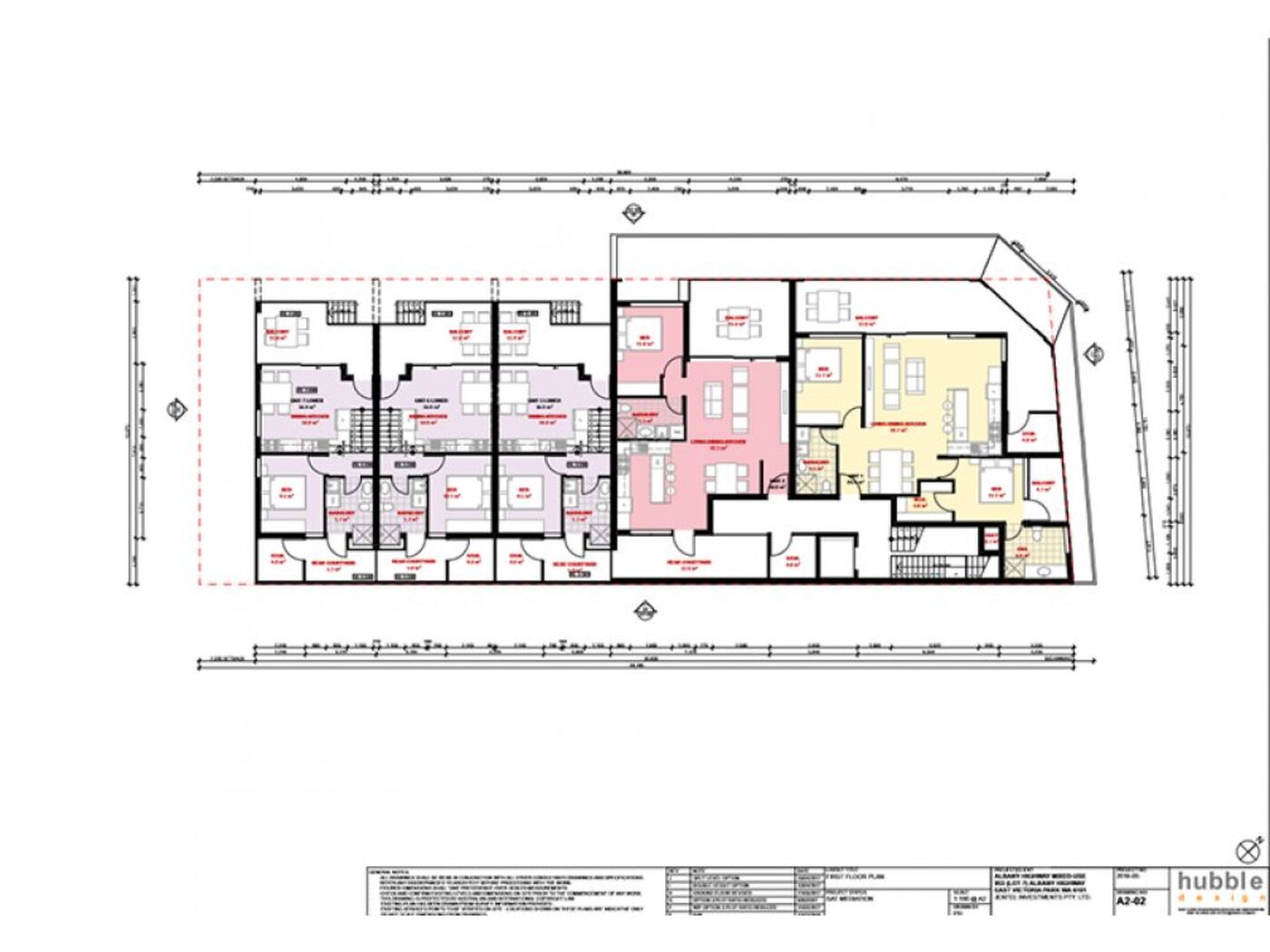
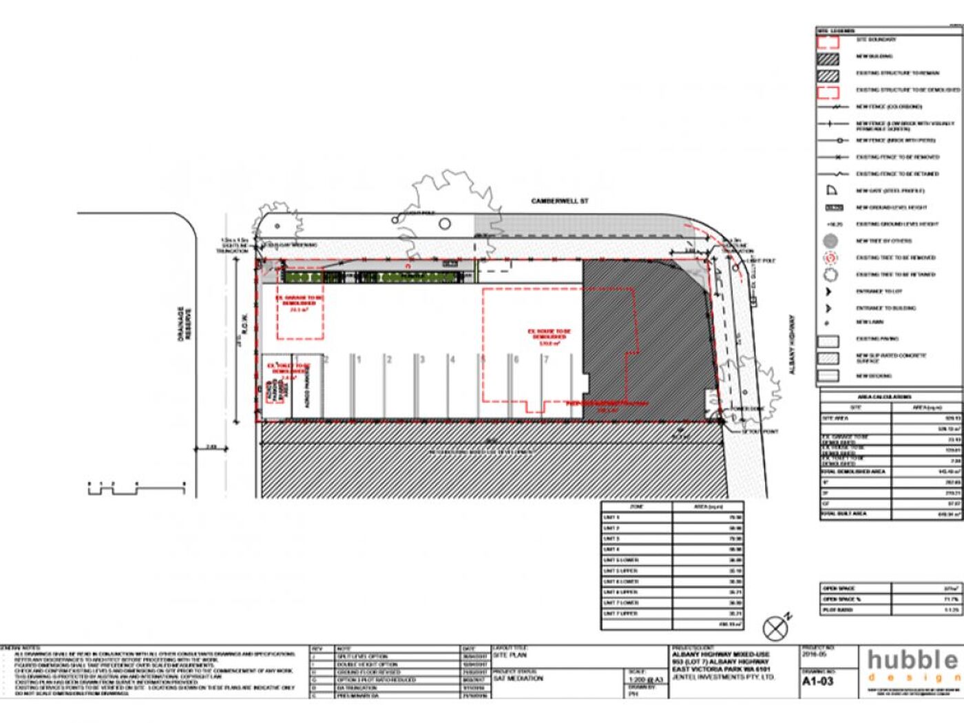
            DA FOR 7 SPACIOUS APARTMENTS
Development site with DA for 7 spacious apartments with 2 car bays, lift and a Roof Top garden.
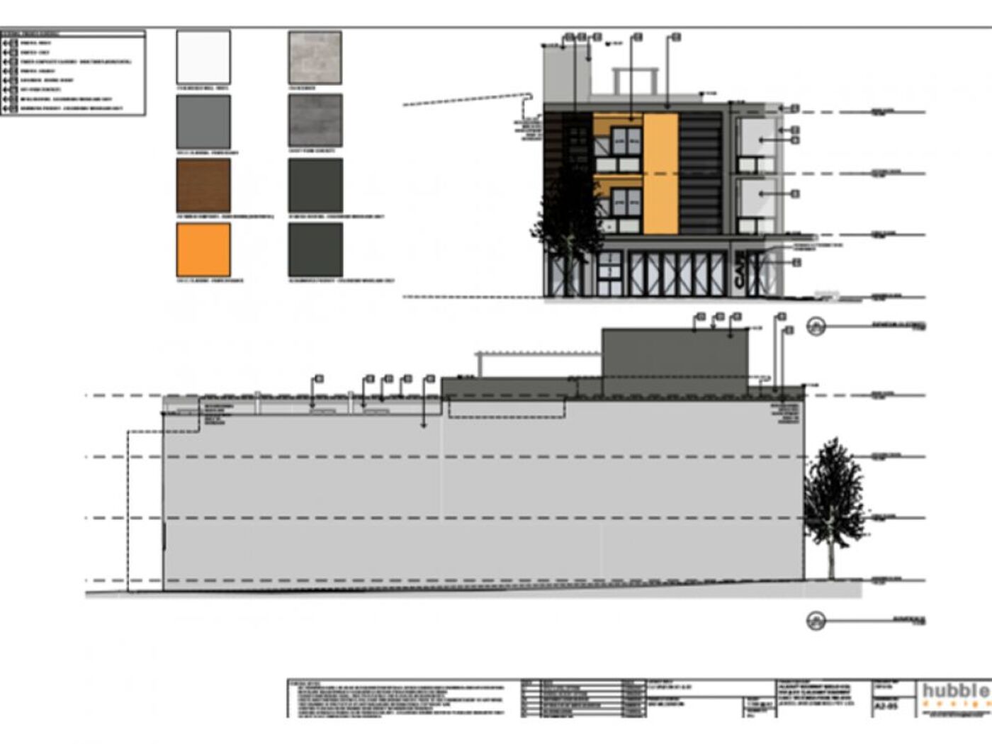
On site Café with alfresco dining approved. Great location Situated on the vibrant Albany Highway Café strip. Close to Perth CBD ,Swan River, Optus Stadium , Crown Casino and universities and public transport
Contact Terry McBratney for a full copy of the plans and further information.
Remember to mention you found this property on DevelopmentReady
DA FOR 7 SPACIOUS APARTMENTS
Development site with DA for 7 spacious apartments with 2 car bays, lift and a Roof Top garden.
On site Café with alfresco dining approved. Great location Situated on the vibrant Albany Highway Café strip. Close to Perth CBD ,Swan River, Optus Stadium , Crown Casino and universities and public transport
Contact Terry McBratney for a full copy of the plans and further information.
Remember to mention you found this property on DevelopmentReady
 
                     
                     
                     
                     
                