Watch Watch
Your home of Development Ready videos
Watch Watch
Back
Sold Check

93 Wellington Street, St Kilda, VIC 3182

+16 Photos

93 Wellington Street, St Kilda, VIC 3182

St Kilda

×
Sold Check
+18 Photos

93 Wellington Street, St Kilda, VIC 3182

St Kilda

SOLD
93 Wellington Street, St Kilda, VIC 3182

93 Wellington Street, St Kilda, VIC 3182

Properties / Sold / Victoria / St Kilda
Development Potential
Property Type
Commercial, Mixed Use
Sub Type
Office, Land Site
Land Area
338 m² (*approx)
LGA
Port Phillip City
Selling Method
Sale by Negotiation: Contact Agent
Show All
Occupy, Invest or Develop (STCA) in Popular “Mixed Use” Precinct

***SOLD***

Gross Waddell ICR is delighted to offer to the market 93 Wellington Street, St Kilda.

Classic Victorian era improvement converted to quality commercial accommodation, located in sought after inner-city “Mixed Use” precinct, surrounded by a host of enviable amenities including all public transport options, Chapel Street shops and cafes, Albert Park Lake, bay beaches, easy access to major road networks and only 5km’s* from Melbourne’s CBD.

Key property highlights include:

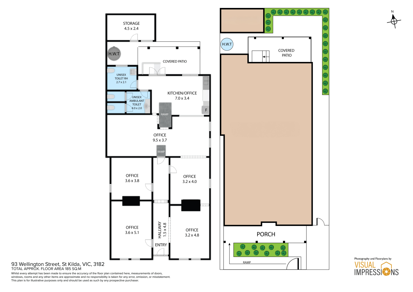
• Standalone single level brick office of 185sqm* plus off-street parking

• Rear north facing landholding of 338sqm*

• Flexible Mixed-Use zoning – will suit a number of end uses and development outcomes (STCA)

• Surrounded by a number of recently completed residential and commercial medium density developments

• Blue-chip location close to amazing lifestyle amenity

• Offered with vacant possession

For further information, please contact the exclusive sales agents from Gross Waddell ICR.

*Approximate

STCA – Subject to Council Approval

Remember to mention you found this property on DevelopmentReady

Read More
Development Potential

93 Wellington Street Development Site Summary

Property Type
Commercial, Mixed Use
Sub-type
Office, Land Site
Land Area
338 m² (*approx)
Port Phillip City
Selling method
Sale by Negotiation: Contact Agent

Development Site Highlights

Occupy, Invest or Develop (STCA) in Popular “Mixed Use” Precinct

***SOLD***

Gross Waddell ICR is delighted to offer to the market 93 Wellington Street, St Kilda.

Classic Victorian era improvement converted to quality commercial accommodation, located in sought after inner-city “Mixed Use” precinct, surrounded by a host of enviable amenities including all public transport options, Chapel Street shops and cafes, Albert Park Lake, bay beaches, easy access to major road networks and only 5km’s* from Melbourne’s CBD.

Key property highlights include:

• Standalone single level brick office of 185sqm* plus off-street parking

• Rear north facing landholding of 338sqm*

• Flexible Mixed-Use zoning – will suit a number of end uses and development outcomes (STCA)

• Surrounded by a number of recently completed residential and commercial medium density developments

• Blue-chip location close to amazing lifestyle amenity

• Offered with vacant possession

For further information, please contact the exclusive sales agents from Gross Waddell ICR.

*Approximate

STCA – Subject to Council Approval

Remember to mention you found this property on DevelopmentReady

Read More
Development Potential

Finance Calculator

93 Wellington Street, St Kilda, VIC 3182

Secure/no obligation

Step 1

Loan Variables

Adjust the inputs to explore your indicative finance options.

You can adjust the inputs below by tapping ‘Adjust Variable Inputs’.

Estimated Purchase Price: $x,xxx,xxx
What you intend to pay for the property
Your Contribution: $x,xxx,xxx
The amount you’re investing
LVR: $x,xxx,xxx
Loan to Value Ratio

Estimated Purchase Price:*

What you intend to pay for the property

$

Your Contribution:

The amount you’re investing

Min: 0% - Max: 90% of purchase price.

$

LVR:

Loan to Value Ratio

Min: 10% - Max: 100% of purchase price.

%

Loan Analysis

Estimated Purchase Price:
Your expected purchase price. Final lender valuation may differ and will affect LVR and borrowing.
$x,xxx,xxx
Your Contribution:
Your funds toward the purchase (savings/equity/gift). Does not include costs like duty, legals or LMI.
$xxx,xxx
Loan to Value Ratio:
Calculated as Loan ÷ Price. Guidance only. Lender policy caps vary by property type, location and borrower profile.
xx%
Loan Amount:
Estimated loan based on your inputs. Excludes fees, LMI and costs. Subject to credit assessment and valuation.
in full report
Interest Only: Monthly Repayments
Estimate using interest-only at 5.85% p.a. Excludes fees. Rates can change without notice.
in full report
Principal & Interest: Monthly Repayments
Estimate at 5.85% p.a. over 15 years, monthly compounding. Excludes fees/LMI. Rates may change.
in full report
Stamp Duty: victoria
Indicative rate for victoria. Concessions/exemptions (e.g., first home) may apply and change the amount.
in full report
Stamp Duty Cost:
Estimate only. Check SRO victoria for the latest rules and any concessions that may reduce this figure.
in full report

Property Location of 93 Wellington Street, St Kilda, VIC 3182

One moment please.

Retrieving map...

Due Diligence

Site Report Available

Download your free DistrictData site summary. Make sure you are logged into DevelopmentReady to allow access

Report Contains

  • Site Summary
  • Development Pipeline
  • Recent Transactions
  • Surrounding Amenity
Download Report
Download Report
93 Wellington Street, St Kilda, VIC 3182 St Kilda
Gross Waddell ICR
Gross Waddell ICR
Level 1, 30 Collins Street, Melbourne VIC 3000