Watch Watch
Your home of Development Ready videos
Watch Watch
Back
Sold Check

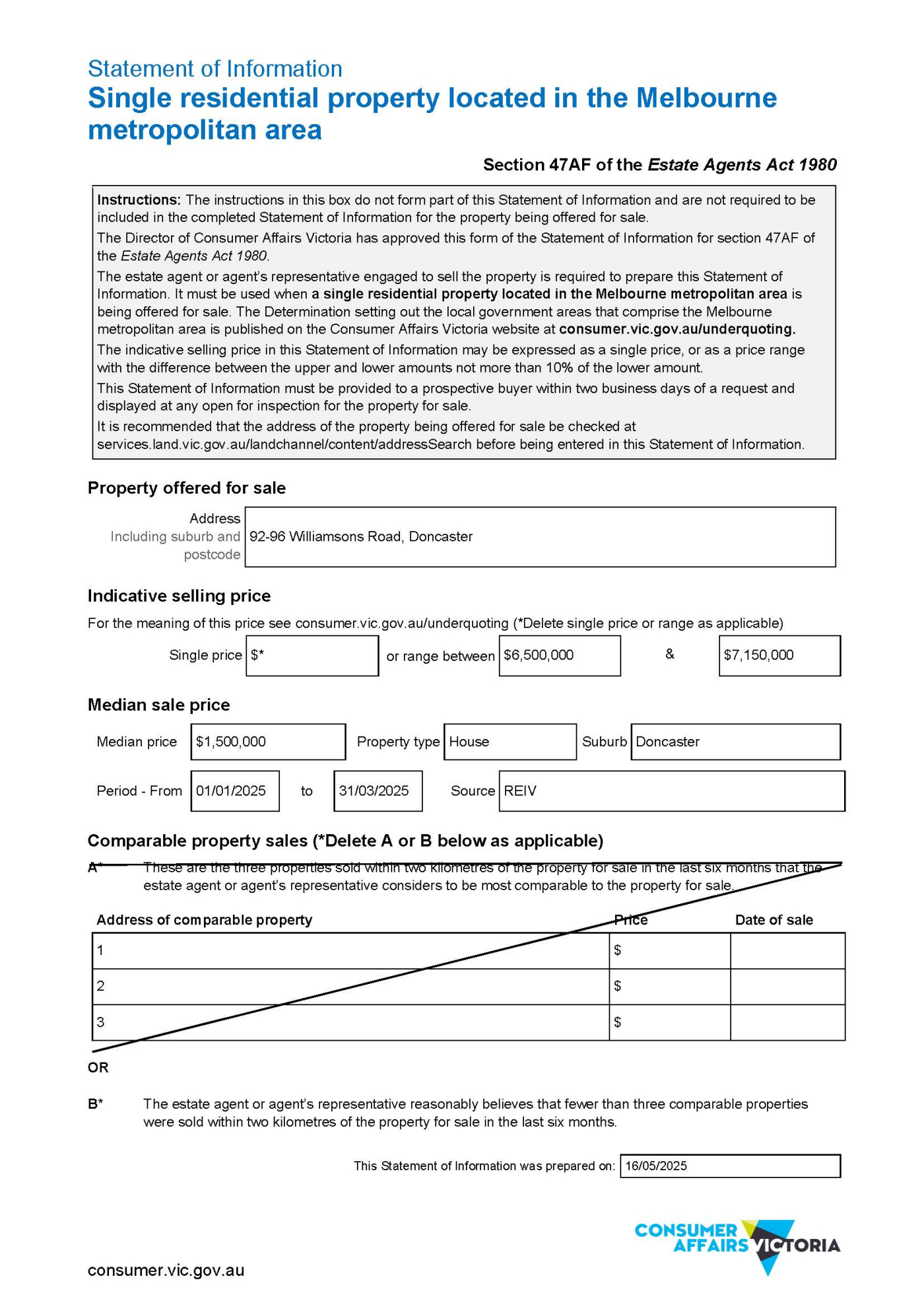
92-96 Williamsons Road, Doncaster, VIC 3108

+14 Photos

92-96 Williamsons Road, Doncaster, VIC 3108

Doncaster

×
Sold Check
+16 Photos

92-96 Williamsons Road, Doncaster, VIC 3108

Doncaster

SOLD
92-96 Williamsons Road, Doncaster, VIC 3108

92-96 Williamsons Road, Doncaster, VIC 3108

Properties / Sold / Victoria / Doncaster
Development Approved
Property Type
Residential
Sub Type
Apartment Sites
Land Area
3,918 m² (*approx)
Zoning
GRZ2 Residential Growth
LGA
Manningham City
Selling Method
EOI: Contact Agent
EOI Closing Date
15 May 2025 03:00PM
Show All
Substantial landholding with approval for 4 level residential development prominently positioned adjacent to “Doncaster Hill” Activity Centre

***UNDER CONTRACT***

Gross Waddell ICR and Australian Professionals Property Service are delighted to offer to the market 92-96 Williamsons Road, Doncaster.

Located close to a number of enviable lifestyle amenities including Westfield Doncaster (400m* away), public transport, parks & recreation facilities, schools, easy Eastern Freeway access and more.

Property highlights include:

- Permit approved for 79 apartments with associated car parking featuring an NSA of 5,540sqm*

- Growth Residential (GRZ2) zoned site of 3,918sqm* featuring significant 55m* frontage

- Superbly designed plans by renowned Plus Architecture

- Sought after residential location with median house price of $1,500,000^ and unit price of $630,000^

- One of the highest points in Melbourne’s eastern suburbs providing potential panoramic views including Dandenong Ranges, Kinglake and city skyline

- May suit other development outcomes such as townhouses, aged care and more (STCA)

For Sale by Expressions of Interest closing Thursday 15 May 2025 at 3pm (AEST).

For further information, please contact the exclusive sales agents from Gross Waddell ICR.

In conjunction with Australian Professionals Property Service Pty Ltd.

*Approximate

^Source: Corelogic

Remember to mention you found this property on DevelopmentReady

Read More
Development Approved

92-96 Williamsons Road Development Site Summary

Property Type
Residential
Sub-type
Apartment Sites
Land Area
3,918 m² (*approx)
GRZ2 Residential Growth
Manningham City
Selling method
EOI: Contact Agent
EOI Closing Date
15 May 2025 03:00PM

Development Site Highlights

Substantial landholding with approval for 4 level residential development prominently positioned adjacent to “Doncaster Hill” Activity Centre

***UNDER CONTRACT***

Gross Waddell ICR and Australian Professionals Property Service are delighted to offer to the market 92-96 Williamsons Road, Doncaster.

Located close to a number of enviable lifestyle amenities including Westfield Doncaster (400m* away), public transport, parks & recreation facilities, schools, easy Eastern Freeway access and more.

Property highlights include:

- Permit approved for 79 apartments with associated car parking featuring an NSA of 5,540sqm*

- Growth Residential (GRZ2) zoned site of 3,918sqm* featuring significant 55m* frontage

- Superbly designed plans by renowned Plus Architecture

- Sought after residential location with median house price of $1,500,000^ and unit price of $630,000^

- One of the highest points in Melbourne’s eastern suburbs providing potential panoramic views including Dandenong Ranges, Kinglake and city skyline

- May suit other development outcomes such as townhouses, aged care and more (STCA)

For Sale by Expressions of Interest closing Thursday 15 May 2025 at 3pm (AEST).

For further information, please contact the exclusive sales agents from Gross Waddell ICR.

In conjunction with Australian Professionals Property Service Pty Ltd.

*Approximate

^Source: Corelogic

Remember to mention you found this property on DevelopmentReady

Read More
Development Approved

Finance Calculator

92-96 Williamsons Road, Doncaster, VIC 3108

Secure/no obligation

Step 1

Loan Variables

Adjust the inputs to explore your indicative finance options.

You can adjust the inputs below by tapping ‘Adjust Variable Inputs’.

Estimated Purchase Price: $x,xxx,xxx
What you intend to pay for the property
Your Contribution: $x,xxx,xxx
The amount you’re investing
LVR: $x,xxx,xxx
Loan to Value Ratio

Estimated Purchase Price:*

What you intend to pay for the property

$

Your Contribution:

The amount you’re investing

Min: 0% - Max: 90% of purchase price.

$

LVR:

Loan to Value Ratio

Min: 10% - Max: 100% of purchase price.

%

Loan Analysis

Estimated Purchase Price:
Your expected purchase price. Final lender valuation may differ and will affect LVR and borrowing.
$x,xxx,xxx
Your Contribution:
Your funds toward the purchase (savings/equity/gift). Does not include costs like duty, legals or LMI.
$xxx,xxx
Loan to Value Ratio:
Calculated as Loan ÷ Price. Guidance only. Lender policy caps vary by property type, location and borrower profile.
xx%
Loan Amount:
Estimated loan based on your inputs. Excludes fees, LMI and costs. Subject to credit assessment and valuation.
in full report
Interest Only: Monthly Repayments
Estimate using interest-only at 5.85% p.a. Excludes fees. Rates can change without notice.
in full report
Principal & Interest: Monthly Repayments
Estimate at 5.85% p.a. over 15 years, monthly compounding. Excludes fees/LMI. Rates may change.
in full report
Stamp Duty: victoria
Indicative rate for victoria. Concessions/exemptions (e.g., first home) may apply and change the amount.
in full report
Stamp Duty Cost:
Estimate only. Check SRO victoria for the latest rules and any concessions that may reduce this figure.
in full report

Property Location of 92-96 Williamsons Road, Doncaster, VIC 3108

One moment please.

Retrieving map...

Due Diligence

Site Report Available

Download your free DistrictData site summary. Make sure you are logged into DevelopmentReady to allow access

Report Contains

  • Site Summary
  • Development Pipeline
  • Recent Transactions
  • Surrounding Amenity
Download Report
Download Report