Watch Watch
Your home of Development Ready videos
Watch Watch
Back
Sold Check

9 Cannes Grove Beaumaris, VIC, 3193

+6 Photos

9 Cannes Grove Beaumaris, VIC, 3193

Beaumaris

×
Sold Check
+8 Photos
9 Cannes Grove Beaumaris, VIC, 3193

9 Cannes Grove Beaumaris, VIC, 3193

Properties / Sold / Victoria / Beaumaris
Development Potential
Property Type
Residential
Sub Type
Townhouse Sites
Land Area
649 m² (*approx)
Selling Method
$AUD: $ 1,525,000
Show All

BROAD SUN & WIDE APPEAL IN THE ZONE

For Sale: $1,525,000 (Contact Agent)

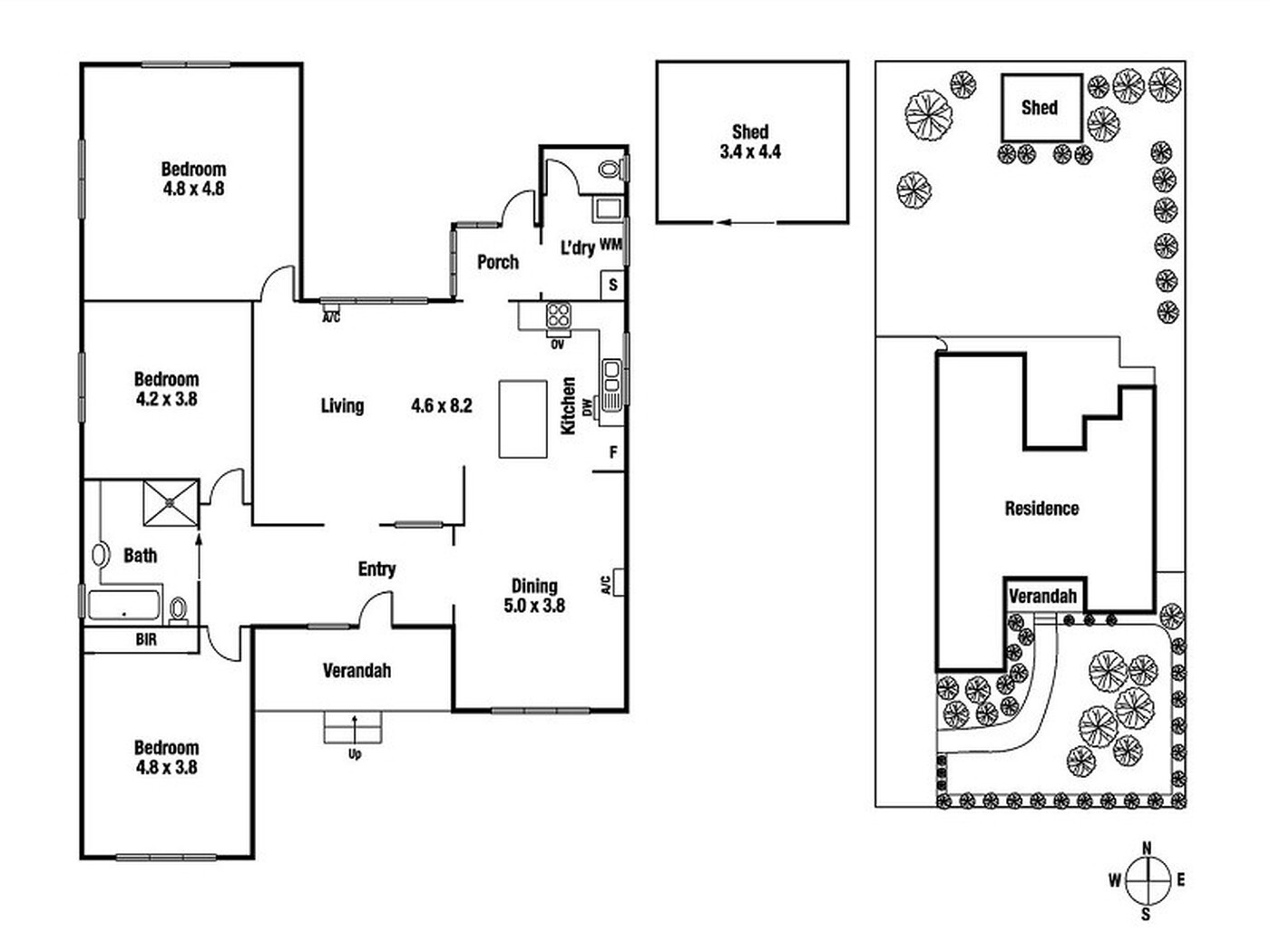
Broad in front, brilliantly sunny behind, this approx 649sqm property offers a wide welcome a prime Course-precinct, College Zone address. In a leafy low-traffic locale amongst the Golf Courses, this well-proportioned property comes with a generous approx 16.6m width to the front, north sun to the rear and a comfortable weatherboard home in between. 

See the sun, love the land and tee off with a high-impact streetfront development (subject to Council Approval)...or the biggest broadest family dream home. Just a few blocks from Seaview shopping, this prime site is ready to reward with a lifestyle location that has schools and the bay within a walk, the tall trees of the Course all around and Zoning for both Mentone Girls and the Beaumaris Secondary Colleges. 

But before you zone in on the value of this blue-chip beachside location, consider the value in the three bedroom, 1.5 bathroom mid-Century home already here. Updated with a stylish stainless-steel appliance kitchen (with drawer dishwasher), an extra-large family bathroom (plus second WC), and an easily extended floorplan, this inviting home offers an exceptionally liveable and renovateable options. At the very least, with ducted heating, an air-conditioner, polished hardwood floors and plentiful parking on a bluestone driveway, this accommodating home will pay its way with a rewarding rental until it's time to hit off into the future!

Remember to mention you found this property on DevelopmentReady

Read More
Development Potential

Development Site Summary

Property Type
Residential
Sub-type
Townhouse Sites
Land Area
649 m² (*approx)
Selling method
$AUD: $ 1,525,000

Development Site Highlights

BROAD SUN & WIDE APPEAL IN THE ZONE

For Sale: $1,525,000 (Contact Agent)

Broad in front, brilliantly sunny behind, this approx 649sqm property offers a wide welcome a prime Course-precinct, College Zone address. In a leafy low-traffic locale amongst the Golf Courses, this well-proportioned property comes with a generous approx 16.6m width to the front, north sun to the rear and a comfortable weatherboard home in between. 

See the sun, love the land and tee off with a high-impact streetfront development (subject to Council Approval)...or the biggest broadest family dream home. Just a few blocks from Seaview shopping, this prime site is ready to reward with a lifestyle location that has schools and the bay within a walk, the tall trees of the Course all around and Zoning for both Mentone Girls and the Beaumaris Secondary Colleges. 

But before you zone in on the value of this blue-chip beachside location, consider the value in the three bedroom, 1.5 bathroom mid-Century home already here. Updated with a stylish stainless-steel appliance kitchen (with drawer dishwasher), an extra-large family bathroom (plus second WC), and an easily extended floorplan, this inviting home offers an exceptionally liveable and renovateable options. At the very least, with ducted heating, an air-conditioner, polished hardwood floors and plentiful parking on a bluestone driveway, this accommodating home will pay its way with a rewarding rental until it's time to hit off into the future!

Remember to mention you found this property on DevelopmentReady

Read More
Development Potential

Finance Calculator

9 Cannes Grove Beaumaris, VIC, 3193

Secure/no obligation

Step 1

Loan Variables

Adjust the inputs to explore your indicative finance options.

You can adjust the inputs below by tapping ‘Adjust Variable Inputs’.

Estimated Purchase Price: $x,xxx,xxx
What you intend to pay for the property
Your Contribution: $x,xxx,xxx
The amount you’re investing
LVR: $x,xxx,xxx
Loan to Value Ratio

Estimated Purchase Price:*

What you intend to pay for the property

$

Your Contribution:

The amount you’re investing

Min: 0% - Max: 90% of purchase price.

$

LVR:

Loan to Value Ratio

Min: 10% - Max: 100% of purchase price.

%

Loan Analysis

Estimated Purchase Price:
Your expected purchase price. Final lender valuation may differ and will affect LVR and borrowing.
$x,xxx,xxx
Your Contribution:
Your funds toward the purchase (savings/equity/gift). Does not include costs like duty, legals or LMI.
$xxx,xxx
Loan to Value Ratio:
Calculated as Loan ÷ Price. Guidance only. Lender policy caps vary by property type, location and borrower profile.
xx%
Loan Amount:
Estimated loan based on your inputs. Excludes fees, LMI and costs. Subject to credit assessment and valuation.
in full report
Interest Only: Monthly Repayments
Estimate using interest-only at 5.85% p.a. Excludes fees. Rates can change without notice.
in full report
Principal & Interest: Monthly Repayments
Estimate at 5.85% p.a. over 15 years, monthly compounding. Excludes fees/LMI. Rates may change.
in full report
Stamp Duty: victoria
Indicative rate for victoria. Concessions/exemptions (e.g., first home) may apply and change the amount.
in full report
Stamp Duty Cost:
Estimate only. Check SRO victoria for the latest rules and any concessions that may reduce this figure.
in full report

Property Location

One moment please.

Retrieving map...