Watch Watch
Your home of Development Ready videos
Watch Watch
Back
Sold Check

86 Beddoe Avenue, Bentleigh East VIC 3165

+5 Photos

86 Beddoe Avenue, Bentleigh East VIC 3165

Bentleigh East

×
Sold Check
+7 Photos

86 Beddoe Avenue, Bentleigh East VIC 3165

Bentleigh East

SOLD
86 Beddoe Avenue, Bentleigh East VIC 3165

86 Beddoe Avenue, Bentleigh East VIC 3165

Properties / Sold / Victoria / Bentleigh East
Development Potential
Property Type
Residential
Land Area
587.80 m² (*approx)
LGA
Glen Eira City
Selling Method
Auction: Sat 19-May-18 11:00AM
Show All

THE LAND OF OPPORTUNITY

For Sale by Auction: Sat 19-May-18 11:00AM

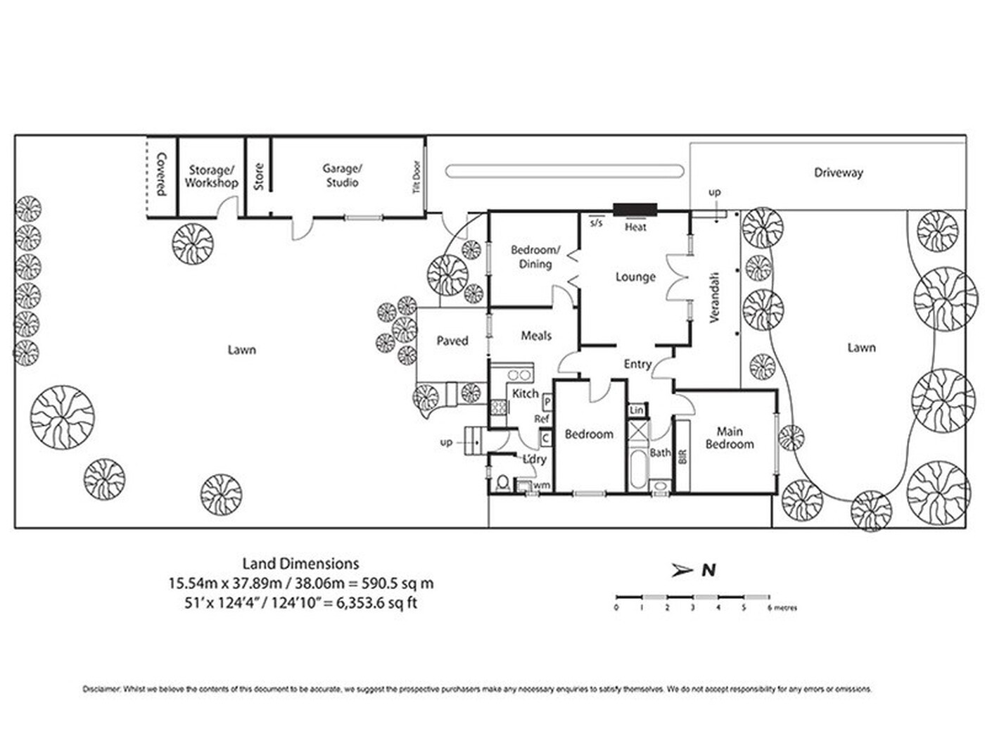
Very affordable Bentleigh East land in the Coatsville School precinct. Set in a quickly improving and developing location, this elevated allotment comes with a brick veneer home, ready to either renovate or demolish to make way for a new home or two townhouses (STCA). Set on land of 587.8 sqm/6,355 sq ft of land … with abundant possibilities.

Options include maximising the value in the existing three-bedroom home. Whether for investment or to live in, it is well-sited and with a garage. This mostly original home has the mid-century proportions and features to reward a clever renovation. Polish up the timber floors, highlight the timberwork, upgrade the kitchen and bathroom, and extend the existing 2-3 bedroom home up or out into the roomy rear garden.

Alternatively, start afresh and build your own new home or re-develop totally by potentially constructing two townhouses.

Look at the opportunity, see the well-proportioned land, consider the quality and growth of the area, and reap the rewards. Right in the heart of Glen Eira’s recreational precinct, close to the Mackie Road shopping strip, Baily Reserve, GSAC and in the Coatsville Primary School and St James College zones. 

Remember to mention you found this property on DevelopmentReady 

Read More
Development Potential

86 Beddoe Avenue Development Site Summary

Property Type
Residential
Land Area
587.80 m² (*approx)
Glen Eira City
Selling method
Auction: Sat 19-May-18 11:00AM

Development Site Highlights

THE LAND OF OPPORTUNITY

For Sale by Auction: Sat 19-May-18 11:00AM

Very affordable Bentleigh East land in the Coatsville School precinct. Set in a quickly improving and developing location, this elevated allotment comes with a brick veneer home, ready to either renovate or demolish to make way for a new home or two townhouses (STCA). Set on land of 587.8 sqm/6,355 sq ft of land … with abundant possibilities.

Options include maximising the value in the existing three-bedroom home. Whether for investment or to live in, it is well-sited and with a garage. This mostly original home has the mid-century proportions and features to reward a clever renovation. Polish up the timber floors, highlight the timberwork, upgrade the kitchen and bathroom, and extend the existing 2-3 bedroom home up or out into the roomy rear garden.

Alternatively, start afresh and build your own new home or re-develop totally by potentially constructing two townhouses.

Look at the opportunity, see the well-proportioned land, consider the quality and growth of the area, and reap the rewards. Right in the heart of Glen Eira’s recreational precinct, close to the Mackie Road shopping strip, Baily Reserve, GSAC and in the Coatsville Primary School and St James College zones. 

Remember to mention you found this property on DevelopmentReady 

Read More
Development Potential

Finance Calculator

86 Beddoe Avenue, Bentleigh East VIC 3165

Secure/no obligation

Step 1

Loan Variables

Adjust the inputs to explore your indicative finance options.

You can adjust the inputs below by tapping ‘Adjust Variable Inputs’.

Estimated Purchase Price: $x,xxx,xxx
What you intend to pay for the property
Your Contribution: $x,xxx,xxx
The amount you’re investing
LVR: $x,xxx,xxx
Loan to Value Ratio

Estimated Purchase Price:*

What you intend to pay for the property

$

Your Contribution:

The amount you’re investing

Min: 0% - Max: 90% of purchase price.

$

LVR:

Loan to Value Ratio

Min: 10% - Max: 100% of purchase price.

%

Loan Analysis

Estimated Purchase Price:
Your expected purchase price. Final lender valuation may differ and will affect LVR and borrowing.
$x,xxx,xxx
Your Contribution:
Your funds toward the purchase (savings/equity/gift). Does not include costs like duty, legals or LMI.
$xxx,xxx
Loan to Value Ratio:
Calculated as Loan ÷ Price. Guidance only. Lender policy caps vary by property type, location and borrower profile.
xx%
Loan Amount:
Estimated loan based on your inputs. Excludes fees, LMI and costs. Subject to credit assessment and valuation.
in full report
Interest Only: Monthly Repayments
Estimate using interest-only at 5.85% p.a. Excludes fees. Rates can change without notice.
in full report
Principal & Interest: Monthly Repayments
Estimate at 5.85% p.a. over 15 years, monthly compounding. Excludes fees/LMI. Rates may change.
in full report
Stamp Duty: victoria
Indicative rate for victoria. Concessions/exemptions (e.g., first home) may apply and change the amount.
in full report
Stamp Duty Cost:
Estimate only. Check SRO victoria for the latest rules and any concessions that may reduce this figure.
in full report

Property Location of 86 Beddoe Avenue, Bentleigh East VIC 3165

One moment please.

Retrieving map...

Due Diligence

Developments and amenities within a 5km radius of this Residential opportunity at 86 Beddoe Avenue, Bentleigh East VIC 3165.

Site Report Available

Download your free DistrictData site summary. Make sure you are logged into DevelopmentReady to allow access

Report Contains

  • Site Summary
  • Development Pipeline
  • Recent Transactions
  • Surrounding Amenity
Download Report
Download Report