Watch Watch
Your home of Development Ready videos
Watch Watch
Back
Sold Check

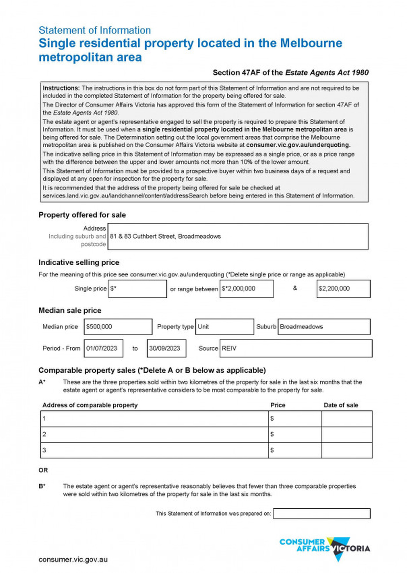
81 & 83 Cuthbert Street, Broadmeadows, VIC 3047

+21 Photos

81 & 83 Cuthbert Street, Broadmeadows, VIC 3047

Broadmeadows

×
Sold Check
+23 Photos

81 & 83 Cuthbert Street, Broadmeadows, VIC 3047

Broadmeadows

SOLD
81 & 83 Cuthbert Street, Broadmeadows, VIC 3047

81 & 83 Cuthbert Street, Broadmeadows, VIC 3047

Properties / Sold / Victoria / Broadmeadows
Development Potential
Property Type
Residential
Sub Type
Units, Land Site
Land Area
1,700 m² (*approx)
Selling Method
Auction: Contact Agent
Auction Date
19 Dec 2023 11:00AM
Show All
RECEIVERS AUCTION - INVEST / ADD-VALUE / REDEVELOP (STCA)

***SOLD***

Gross Waddell ICR inc conjunction with Australian Professionals Property Service are excited to offer to the market this rare opportunity to acquire a block of villa units in established residential area close to a host of amenities including numerous transport options, retail and parklands.

• 8 villa units with associated car parking on individual titles offered in one line

• All units feature 2 bedrooms, large living, kitchen with meals area, bathroom with separate toilet, laundry and courtyard garden

• Potential rental of $117,000* p.a. (on a fully let basis)

• Sizable landholding of 1,700sqm*

• Generous street frontage of over 37m*

• General Residential zoning – allowing a number of development outcomes (STCA)

Under Instructions from SV Partners

For Sale via Public Auction on Tuesday 19th December 2023 at 11am on-site.

For further information or to organise a inspection please contact Andrew Greenway 0409 547 626 or Alex Ham 0410 545 226 from Gross Waddell ICR.

*Approx.

Remember to mention you found this property on DevelopmentReady

Read More
Development Potential

81 & 83 Cuthbert Street Development Site Summary

Property Type
Residential
Sub-type
Units, Land Site
Land Area
1,700 m² (*approx)
Selling method
Auction: Contact Agent
Auction Date
19 Dec 2023 11:00AM

Development Site Highlights

RECEIVERS AUCTION - INVEST / ADD-VALUE / REDEVELOP (STCA)

***SOLD***

Gross Waddell ICR inc conjunction with Australian Professionals Property Service are excited to offer to the market this rare opportunity to acquire a block of villa units in established residential area close to a host of amenities including numerous transport options, retail and parklands.

• 8 villa units with associated car parking on individual titles offered in one line

• All units feature 2 bedrooms, large living, kitchen with meals area, bathroom with separate toilet, laundry and courtyard garden

• Potential rental of $117,000* p.a. (on a fully let basis)

• Sizable landholding of 1,700sqm*

• Generous street frontage of over 37m*

• General Residential zoning – allowing a number of development outcomes (STCA)

Under Instructions from SV Partners

For Sale via Public Auction on Tuesday 19th December 2023 at 11am on-site.

For further information or to organise a inspection please contact Andrew Greenway 0409 547 626 or Alex Ham 0410 545 226 from Gross Waddell ICR.

*Approx.

Remember to mention you found this property on DevelopmentReady

Read More

Supporting Information

The links below will open a new tab

Development Potential

Finance Calculator

81 & 83 Cuthbert Street, Broadmeadows, VIC 3047

Secure/no obligation

Step 1

Loan Variables

Adjust the inputs to explore your indicative finance options.

You can adjust the inputs below by tapping ‘Adjust Variable Inputs’.

Estimated Purchase Price: $x,xxx,xxx
What you intend to pay for the property
Your Contribution: $x,xxx,xxx
The amount you’re investing
LVR: $x,xxx,xxx
Loan to Value Ratio

Estimated Purchase Price:*

What you intend to pay for the property

$

Your Contribution:

The amount you’re investing

Min: 0% - Max: 90% of purchase price.

$

LVR:

Loan to Value Ratio

Min: 10% - Max: 100% of purchase price.

%

Loan Analysis

Estimated Purchase Price:
Your expected purchase price. Final lender valuation may differ and will affect LVR and borrowing.
$x,xxx,xxx
Your Contribution:
Your funds toward the purchase (savings/equity/gift). Does not include costs like duty, legals or LMI.
$xxx,xxx
Loan to Value Ratio:
Calculated as Loan ÷ Price. Guidance only. Lender policy caps vary by property type, location and borrower profile.
xx%
Loan Amount:
Estimated loan based on your inputs. Excludes fees, LMI and costs. Subject to credit assessment and valuation.
in full report
Interest Only: Monthly Repayments
Estimate using interest-only at 5.85% p.a. Excludes fees. Rates can change without notice.
in full report
Principal & Interest: Monthly Repayments
Estimate at 5.85% p.a. over 15 years, monthly compounding. Excludes fees/LMI. Rates may change.
in full report
Stamp Duty: victoria
Indicative rate for victoria. Concessions/exemptions (e.g., first home) may apply and change the amount.
in full report
Stamp Duty Cost:
Estimate only. Check SRO victoria for the latest rules and any concessions that may reduce this figure.
in full report

Property Location of 81 & 83 Cuthbert Street, Broadmeadows, VIC 3047

One moment please.

Retrieving map...

Due Diligence

Site Report Available

Download your free DistrictData site summary. Make sure you are logged into DevelopmentReady to allow access

Report Contains

  • Site Summary
  • Development Pipeline
  • Recent Transactions
  • Surrounding Amenity
Download Report
Download Report
81 & 83 Cuthbert Street, Broadmeadows, VIC 3047 Broadmeadows