Watch Watch
Your home of Development Ready videos
Watch Watch
Back

The Josephson, 80 Josephson Street, Belconnen, ACT 2617

+2 Photos

The Josephson, 80 Josephson Street, Belconnen, ACT 2617

Belconnen

×
+4 Photos
The Josephson, 80 Josephson Street, Belconnen, ACT 2617

The Josephson, 80 Josephson Street, Belconnen, ACT 2617

Properties / Buy / Australian Capital Territory / Belconnen
Development Potential
Property Type
Residential, Commercial, Mixed Use
Sub Type
Apartment Sites, Hotel Sites, Land Site
Land Area
27,550
Zoning
CZ2 Business Zone
Local Government
ACT Government
Selling Method
EOI: Contact Agents
DOCUMENTS AVAILABLE
EOI Closing Date
23 Oct 2025 12:00PM
Show All
Whole of site Acquisition
  • Whole of site Aquisition
  • Premium Location
  • Mixed use with Hotel

This outstanding development site has all the hard work done and is ready for a builder/ developer to reap the rewards

The plans, which are currently lodged for DA contain a mix of commercial

and residential use, and have been prepared and lodged by leading ACT

design and architecture firm of Stewart Architects.

The proposal comprises three Class 2 residential buildings sharing a

common residential podium; and one Class 3 commercial dwelling which

can be utilised in a variety of ways, including serviced apartments, hotel,

build to rent, or possibly a retirement village.

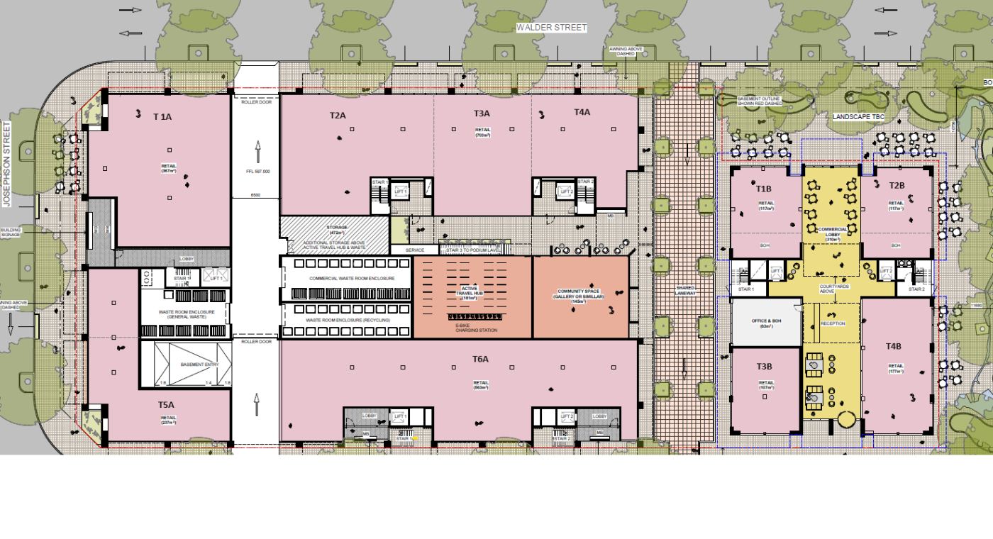
The entire ground floor of all buildings provides commercial tenancies which

can be divided to suit a variety of sizes and uses. All buildings share a 2-level

basement, with building D having an additional car park level which can be

used as paid public parking.

The four buildings are identified as:

Building A at the western end of the site addressing Josephson Street which

comprises of Commercial on the ground floor and 7 levels of residential above.

Building B to the north of the site addressing Walder Street which comprises of

Commercial on the ground floor and 7 levels of residential above.

Building C to the south of the site addressing Purdue Street which comprises

of Commercial on the ground floor and 7 levels of residential above.

Building D to the east of the site addressing Rae Street which comprises of

Commercial on the ground floor and 8 levels of residential above.

The proposal includes 182 residential dwellings proposed across Buildings, A, B,

and C; and 112 commercial dwellings in Building D.

Total GFA of 27,550m2

The commercial dwelling building (Building D) has been designed to allow all

units to be adapted to Class 2 residential units in future if required.

1. Premium central position

2. Connection to public transport and bus interchange

3. Close to Belconnen Westfield Shopping Centre

4. Walking distance to Lake Ginninderra and lakeshore parkland

5. Near to the University of Canberra and major hospitals

6. Part of a government and education employment hub

7. Part of an evolving neighbourhood

Please enquire for a full set of plans and QS report.

Remember to mention you found this property on DevelopmentReady

Read More
Dataroom
Development Potential

80 Josephson Street Development Site Summary

Property Type
Residential, Commercial, Mixed Use
Sub-type
Apartment Sites, Hotel Sites, Land Site
Land Area
27,550
CZ2 Business Zone
Local Government
ACT Government
Selling method
EOI: Contact Agents
DOCUMENTS AVAILABLE
Gain Access
EOI Closing Date
23 Oct 2025 12:00PM

Development Site Highlights

Whole of site Acquisition
  • Whole of site Aquisition
  • Premium Location
  • Mixed use with Hotel

This outstanding development site has all the hard work done and is ready for a builder/ developer to reap the rewards

The plans, which are currently lodged for DA contain a mix of commercial

and residential use, and have been prepared and lodged by leading ACT

design and architecture firm of Stewart Architects.

The proposal comprises three Class 2 residential buildings sharing a

common residential podium; and one Class 3 commercial dwelling which

can be utilised in a variety of ways, including serviced apartments, hotel,

build to rent, or possibly a retirement village.

The entire ground floor of all buildings provides commercial tenancies which

can be divided to suit a variety of sizes and uses. All buildings share a 2-level

basement, with building D having an additional car park level which can be

used as paid public parking.

The four buildings are identified as:

Building A at the western end of the site addressing Josephson Street which

comprises of Commercial on the ground floor and 7 levels of residential above.

Building B to the north of the site addressing Walder Street which comprises of

Commercial on the ground floor and 7 levels of residential above.

Building C to the south of the site addressing Purdue Street which comprises

of Commercial on the ground floor and 7 levels of residential above.

Building D to the east of the site addressing Rae Street which comprises of

Commercial on the ground floor and 8 levels of residential above.

The proposal includes 182 residential dwellings proposed across Buildings, A, B,

and C; and 112 commercial dwellings in Building D.

Total GFA of 27,550m2

The commercial dwelling building (Building D) has been designed to allow all

units to be adapted to Class 2 residential units in future if required.

1. Premium central position

2. Connection to public transport and bus interchange

3. Close to Belconnen Westfield Shopping Centre

4. Walking distance to Lake Ginninderra and lakeshore parkland

5. Near to the University of Canberra and major hospitals

6. Part of a government and education employment hub

7. Part of an evolving neighbourhood

Please enquire for a full set of plans and QS report.

Remember to mention you found this property on DevelopmentReady

Read More
Dataroom
Development Potential

Finance Calculator

The Josephson, 80 Josephson Street, Belconnen, ACT 2617

Secure/no obligation

Step 1

Loan Variables

Adjust the inputs to explore your indicative finance options.

You can adjust the inputs below by tapping ‘Adjust Variable Inputs’.

Estimated Purchase Price: $x,xxx,xxx
What you intend to pay for the property
Your Contribution: $x,xxx,xxx
The amount you’re investing
LVR: $x,xxx,xxx
Loan to Value Ratio

Estimated Purchase Price:*

What you intend to pay for the property

$

Your Contribution:

The amount you’re investing

Min: 0% - Max: 90% of purchase price.

$

LVR:

Loan to Value Ratio

Min: 10% - Max: 100% of purchase price.

%

Loan Analysis

Estimated Purchase Price:
Your expected purchase price. Final lender valuation may differ and will affect LVR and borrowing.
$x,xxx,xxx
Your Contribution:
Your funds toward the purchase (savings/equity/gift). Does not include costs like duty, legals or LMI.
$xxx,xxx
Loan to Value Ratio:
Calculated as Loan ÷ Price. Guidance only. Lender policy caps vary by property type, location and borrower profile.
xx%
Loan Amount:
Estimated loan based on your inputs. Excludes fees, LMI and costs. Subject to credit assessment and valuation.
in full report
Interest Only: Monthly Repayments
Estimate using interest-only at 5.85% p.a. Excludes fees. Rates can change without notice.
in full report
Principal & Interest: Monthly Repayments
Estimate at 5.85% p.a. over 15 years, monthly compounding. Excludes fees/LMI. Rates may change.
in full report
Stamp Duty: australian capital territory
Indicative rate for australian capital territory. Concessions/exemptions (e.g., first home) may apply and change the amount.
in full report
Stamp Duty Cost:
Estimate only. Check SRO australian capital territory for the latest rules and any concessions that may reduce this figure.
in full report

Property Location of The Josephson, 80 Josephson Street, Belconnen, ACT 2617

One moment please.

Retrieving map...

Market Intelligence Report

Developments and amenities within a 5km radius of the asset.

View Full Report - Dataroom
5km radius max
Distance
Asset Type

One moment please.

Retrieving latest data...

5km radius max
Distance
The Josephson, 80 Josephson Street, Belconnen, ACT 2617 Belconnen
Enquire