Watch Watch
Your home of Development Ready videos
Watch Watch
Back
Sold Check

700 Orrong Road Toorak, VIC, 3142

+2 Photos

700 Orrong Road Toorak, VIC, 3142

Toorak

×
Sold Check
+4 Photos
700 Orrong Road Toorak, VIC, 3142

700 Orrong Road Toorak, VIC, 3142

Properties / Sold / Victoria / Toorak
Development Approved
Property Type
Residential
Land Area
881 m² (*approx)
Selling Method
SOLD:
Show All

SOLD

MARK 700

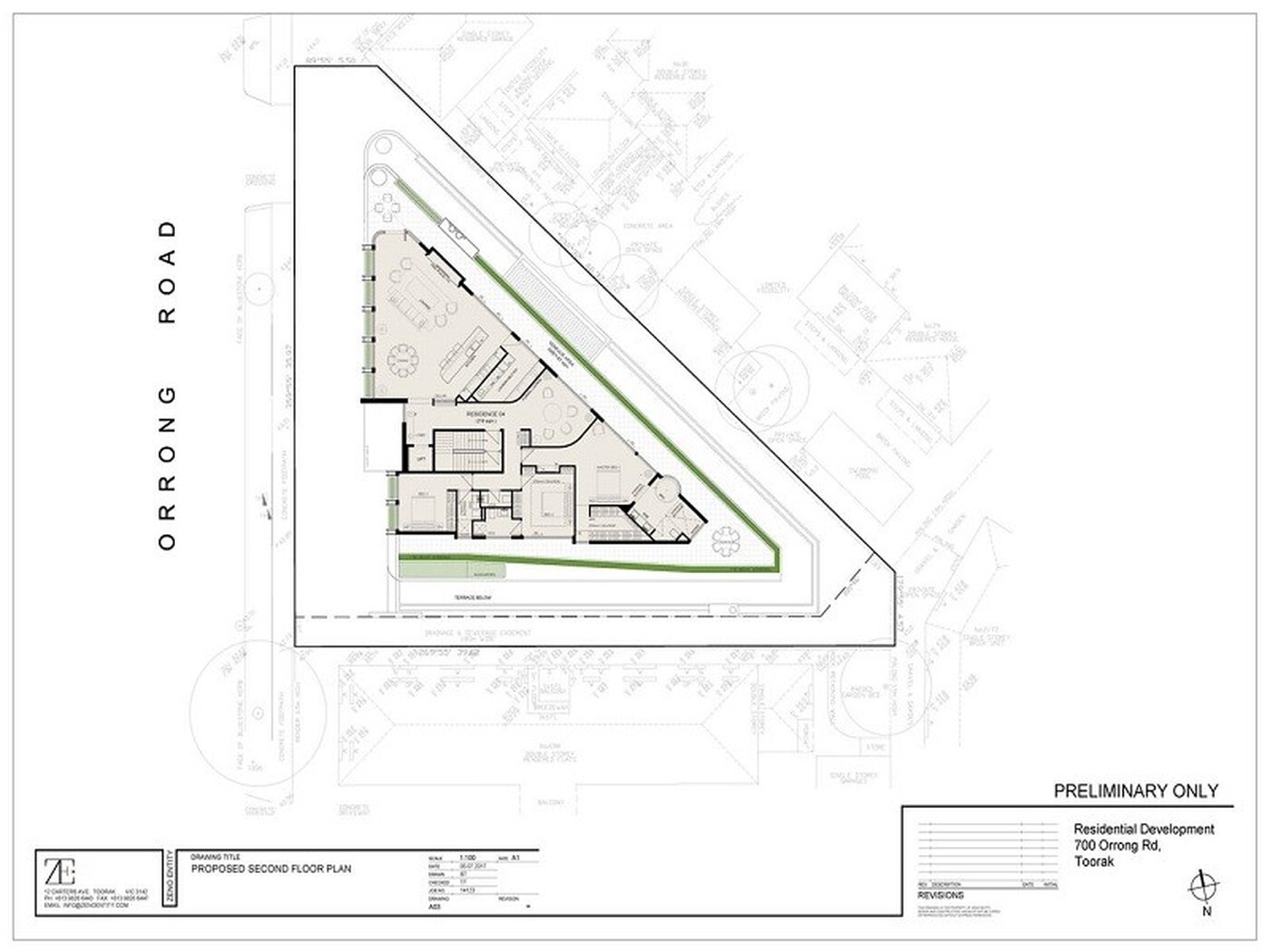
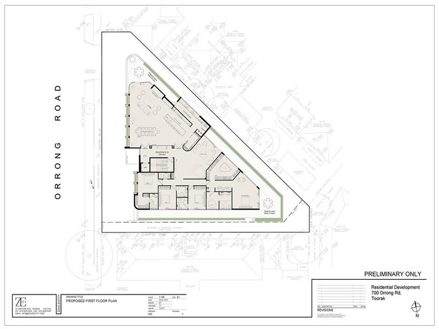
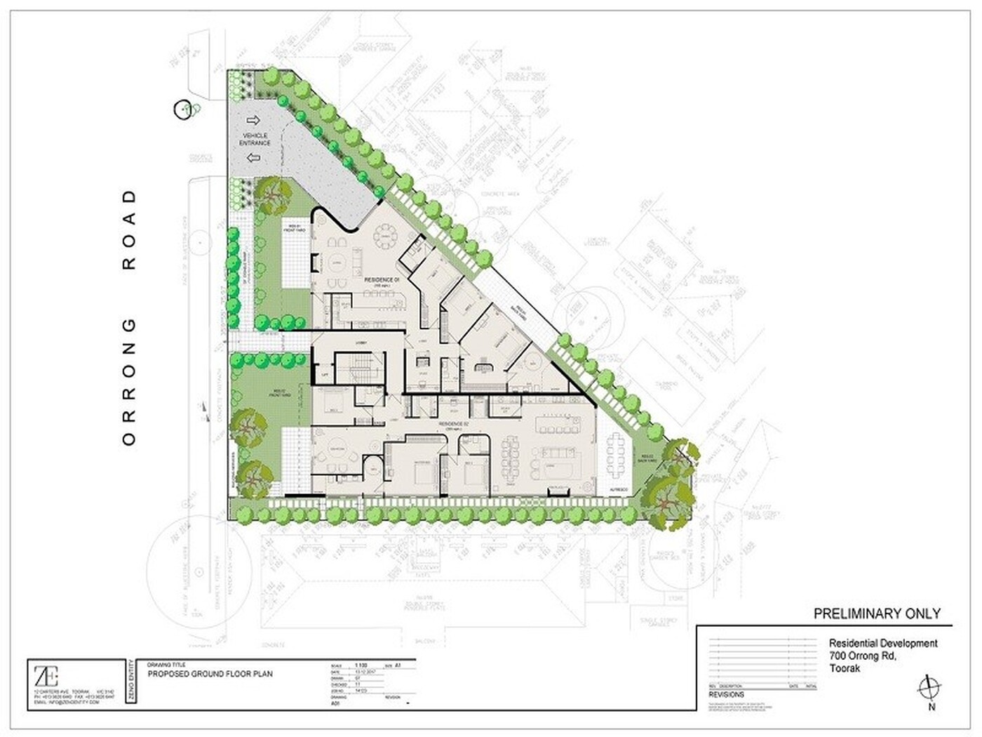
Plans and permits exist to build these 4 luxurious balconied art deco style apartments all with wrap-around terraces in a boutique development and elevated position with outstanding 360 degree views from the penthouse and rooftop terrace, all within a short stroll to Toorak Village and Beatty Avenue shops. Land size 881m2 approx.
 
Apartments 1 and 2 situated on the first floor both comprising 3 bedrooms and opening to extensive terraces, Apartment 3 on the second floor with 4 bedrooms, opens to large north facing terrace and level three penthouse with 3 bedrooms and rooftop pool and entertainment area, basement garaging totalling 11 cars, store rooms and lift access throughout.

Remember to mention you found this property on DevelopmentReady

Read More
Development Approved

Development Site Summary

Property Type
Residential
Land Area
881 m² (*approx)
Selling method
SOLD:

Development Site Highlights

SOLD

MARK 700

Plans and permits exist to build these 4 luxurious balconied art deco style apartments all with wrap-around terraces in a boutique development and elevated position with outstanding 360 degree views from the penthouse and rooftop terrace, all within a short stroll to Toorak Village and Beatty Avenue shops. Land size 881m2 approx.
 
Apartments 1 and 2 situated on the first floor both comprising 3 bedrooms and opening to extensive terraces, Apartment 3 on the second floor with 4 bedrooms, opens to large north facing terrace and level three penthouse with 3 bedrooms and rooftop pool and entertainment area, basement garaging totalling 11 cars, store rooms and lift access throughout.

Remember to mention you found this property on DevelopmentReady

Read More
Development Approved

Finance Calculator

700 Orrong Road Toorak, VIC, 3142

Secure/no obligation

Step 1

Loan Variables

Adjust the inputs to explore your indicative finance options.

You can adjust the inputs below by tapping ‘Adjust Variable Inputs’.

Estimated Purchase Price: $x,xxx,xxx
What you intend to pay for the property
Your Contribution: $x,xxx,xxx
The amount you’re investing
LVR: $x,xxx,xxx
Loan to Value Ratio

Estimated Purchase Price:*

What you intend to pay for the property

$

Your Contribution:

The amount you’re investing

Min: 0% - Max: 90% of purchase price.

$

LVR:

Loan to Value Ratio

Min: 10% - Max: 100% of purchase price.

%

Loan Analysis

Estimated Purchase Price:
Your expected purchase price. Final lender valuation may differ and will affect LVR and borrowing.
$x,xxx,xxx
Your Contribution:
Your funds toward the purchase (savings/equity/gift). Does not include costs like duty, legals or LMI.
$xxx,xxx
Loan to Value Ratio:
Calculated as Loan ÷ Price. Guidance only. Lender policy caps vary by property type, location and borrower profile.
xx%
Loan Amount:
Estimated loan based on your inputs. Excludes fees, LMI and costs. Subject to credit assessment and valuation.
in full report
Interest Only: Monthly Repayments
Estimate using interest-only at 5.85% p.a. Excludes fees. Rates can change without notice.
in full report
Principal & Interest: Monthly Repayments
Estimate at 5.85% p.a. over 15 years, monthly compounding. Excludes fees/LMI. Rates may change.
in full report
Stamp Duty: victoria
Indicative rate for victoria. Concessions/exemptions (e.g., first home) may apply and change the amount.
in full report
Stamp Duty Cost:
Estimate only. Check SRO victoria for the latest rules and any concessions that may reduce this figure.
in full report

Property Location

One moment please.

Retrieving map...