Watch Watch
Your home of Development Ready videos
Watch Watch
Back
Sold Check

7 McCrory Street Coburg, VIC, 3058

7 McCrory Street Coburg, VIC, 3058

Coburg

×
Sold Check
+1 Photos
7 McCrory Street Coburg, VIC, 3058

7 McCrory Street Coburg, VIC, 3058

Properties / Sold / Victoria / Coburg
Development Approved
Property Type
Residential
Sub Type
Townhouse Sites
Selling Method
SOLD:
Show All

VICTORIOUS WITH THIS VICTORIAN

SOLD!

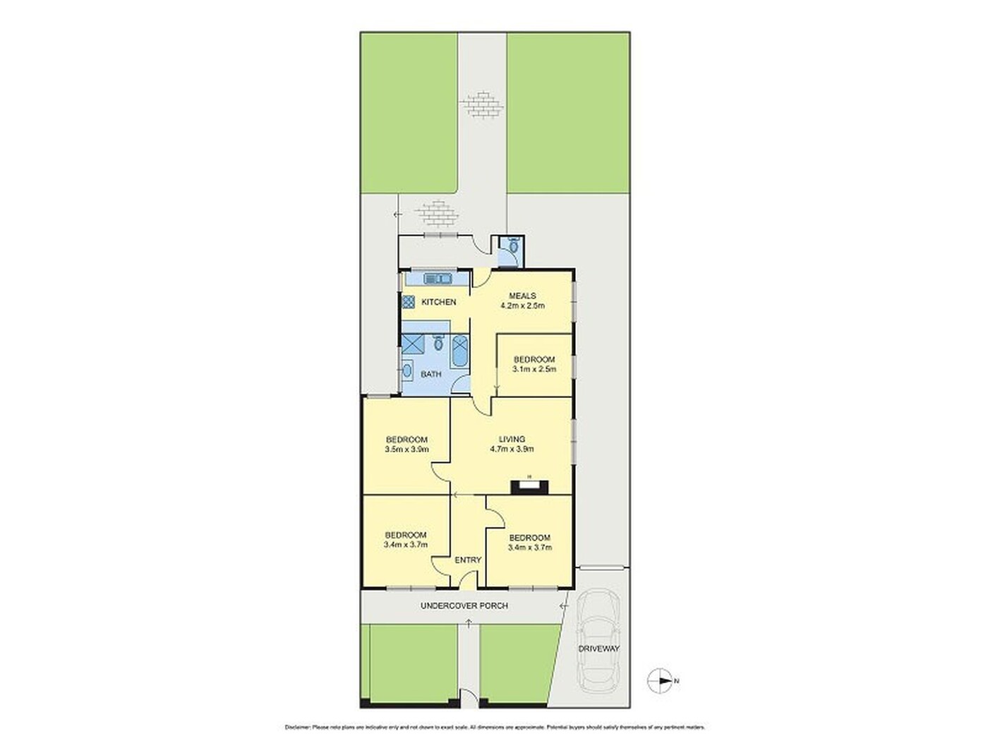
Looking to the future, this three bedroom plus study Victorian home is ready for new vision. Renovate the existing home and build two new 2 bedroom townhouses facing Inca Way - All plans & permits have been approved.

A stone throw away from Sydney Road shops & cafes, No 19 tram, Coburg train station, Harding Street bus line, Coburg Primary school, Coburg Aquatic centre or take a quick drive to CityLink to reach the CBD in next to no time. With everything nearby, advantages await the smart buyer.

Feel free to contact me on 0408 588 680 to discuss the property or pop into the office to view the plans...

Remember to mention you found this property on DevelopmentReady

Read More
Development Approved

Development Site Summary

Property Type
Residential
Sub-type
Townhouse Sites
Selling method
SOLD:

Development Site Highlights

VICTORIOUS WITH THIS VICTORIAN

SOLD!

Looking to the future, this three bedroom plus study Victorian home is ready for new vision. Renovate the existing home and build two new 2 bedroom townhouses facing Inca Way - All plans & permits have been approved.

A stone throw away from Sydney Road shops & cafes, No 19 tram, Coburg train station, Harding Street bus line, Coburg Primary school, Coburg Aquatic centre or take a quick drive to CityLink to reach the CBD in next to no time. With everything nearby, advantages await the smart buyer.

Feel free to contact me on 0408 588 680 to discuss the property or pop into the office to view the plans...

Remember to mention you found this property on DevelopmentReady

Read More
Development Approved

Finance Calculator

7 McCrory Street Coburg, VIC, 3058

Secure/no obligation

Step 1

Loan Variables

Adjust the inputs to explore your indicative finance options.

You can adjust the inputs below by tapping ‘Adjust Variable Inputs’.

Estimated Purchase Price: $x,xxx,xxx
What you intend to pay for the property
Your Contribution: $x,xxx,xxx
The amount you’re investing
LVR: $x,xxx,xxx
Loan to Value Ratio

Estimated Purchase Price:*

What you intend to pay for the property

$

Your Contribution:

The amount you’re investing

Min: 0% - Max: 90% of purchase price.

$

LVR:

Loan to Value Ratio

Min: 10% - Max: 100% of purchase price.

%

Loan Analysis

Estimated Purchase Price:
Your expected purchase price. Final lender valuation may differ and will affect LVR and borrowing.
$x,xxx,xxx
Your Contribution:
Your funds toward the purchase (savings/equity/gift). Does not include costs like duty, legals or LMI.
$xxx,xxx
Loan to Value Ratio:
Calculated as Loan ÷ Price. Guidance only. Lender policy caps vary by property type, location and borrower profile.
xx%
Loan Amount:
Estimated loan based on your inputs. Excludes fees, LMI and costs. Subject to credit assessment and valuation.
in full report
Interest Only: Monthly Repayments
Estimate using interest-only at 5.85% p.a. Excludes fees. Rates can change without notice.
in full report
Principal & Interest: Monthly Repayments
Estimate at 5.85% p.a. over 15 years, monthly compounding. Excludes fees/LMI. Rates may change.
in full report
Stamp Duty: victoria
Indicative rate for victoria. Concessions/exemptions (e.g., first home) may apply and change the amount.
in full report
Stamp Duty Cost:
Estimate only. Check SRO victoria for the latest rules and any concessions that may reduce this figure.
in full report

Property Location

One moment please.

Retrieving map...