Watch Watch
Your home of Development Ready videos
Watch Watch
Back

68 Cubberla Street, Fig Tree Pocket, QLD 4069

+8 Photos

68 Cubberla Street, Fig Tree Pocket, QLD 4069

Fig Tree Pocket

×
+10 Photos
68 Cubberla Street, Fig Tree Pocket, QLD 4069

68 Cubberla Street, Fig Tree Pocket, QLD 4069

Properties / Buy / Queensland / Fig Tree Pocket
Development Approved
Property Type
Residential
Sub Type
Land Site, Subdivision
Land Area
8,399 m² (*approx)
Zoning
Low Density Residential
Selling Method
EOI: EOI Closing 27 November 2025 4pm (AEST)
Show All
Approved 4 Lot Subdivision | Fig Tree Pocket, Brisbane

• Land Area: 8,399m²*

• Zoned Low Density Residential

• DA Approval for 4 Lot residential subdivision (average lot size 1,676m²*)

• Located 11.5km* from Brisbane CBD

• One of the most sought after suburbs in Brisbane surrounded by the Brisbane River offering premium achievable revenues in a market heavily constrained for supply

• Generous lot sizes of 2,607m²*, 1,940m²*, 1,101m²* and 1,056m²* (avg: 1,676m²*)

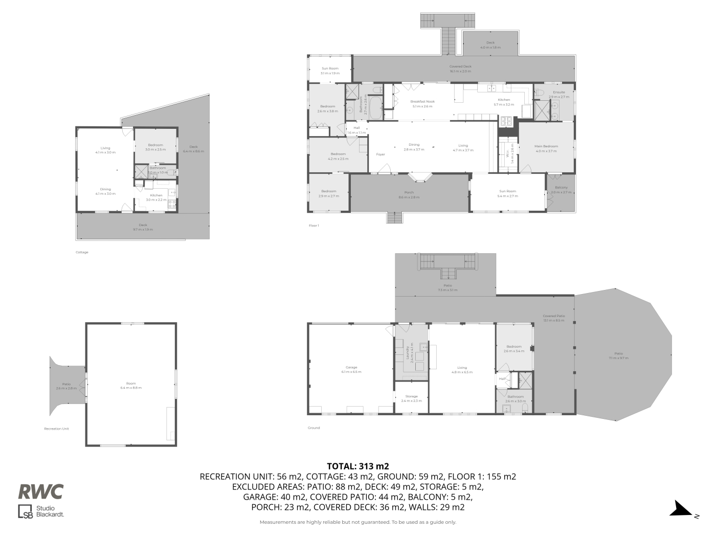
• Existing 5 bedroom house to be retained on future Lot 1 and cottage located on future Lot 4

• 2 Street frontage to Jesmond Rd & Cubberla Street

• Adjoining Fig Tree Pocket State School and located nearby highly regarded educational establishments including Indooroopilly State School (5.5km*), Ambrose Treacy College (2.5km*) St Peters Lutheran College (7km*), and The University of Queensland (10km*)

• Limited internal road construction reducing delivery cost

• Well positioned to local amenity being only 4km* to Indooroopilly Shopping Centre, 7km* to Indooroopilly train station, 7.3km* to Toowong Village, and 8km* to Indooroopilly Golf Club

For Sale via Expressions of Interest

Closing Thursday 27 November 2025 4pm (AEST)

*Approximately

Remember to mention you found this property on DevelopmentReady

Read More
Development Approved

68 Cubberla Street Development Site Summary

Property Type
Residential
Sub-type
Land Site, Subdivision
Land Area
8,399 m² (*approx)
Low Density Residential
Selling method
EOI: EOI Closing 27 November 2025 4pm (AEST)

Development Site Highlights

Approved 4 Lot Subdivision | Fig Tree Pocket, Brisbane

• Land Area: 8,399m²*

• Zoned Low Density Residential

• DA Approval for 4 Lot residential subdivision (average lot size 1,676m²*)

• Located 11.5km* from Brisbane CBD

• One of the most sought after suburbs in Brisbane surrounded by the Brisbane River offering premium achievable revenues in a market heavily constrained for supply

• Generous lot sizes of 2,607m²*, 1,940m²*, 1,101m²* and 1,056m²* (avg: 1,676m²*)

• Existing 5 bedroom house to be retained on future Lot 1 and cottage located on future Lot 4

• 2 Street frontage to Jesmond Rd & Cubberla Street

• Adjoining Fig Tree Pocket State School and located nearby highly regarded educational establishments including Indooroopilly State School (5.5km*), Ambrose Treacy College (2.5km*) St Peters Lutheran College (7km*), and The University of Queensland (10km*)

• Limited internal road construction reducing delivery cost

• Well positioned to local amenity being only 4km* to Indooroopilly Shopping Centre, 7km* to Indooroopilly train station, 7.3km* to Toowong Village, and 8km* to Indooroopilly Golf Club

For Sale via Expressions of Interest

Closing Thursday 27 November 2025 4pm (AEST)

*Approximately

Remember to mention you found this property on DevelopmentReady

Read More
Development Approved

Property Location of 68 Cubberla Street, Fig Tree Pocket, QLD 4069

Property Map

Due Diligence

Site Report Available

Download your free DistrictData site summary. Make sure you are logged into DevelopmentReady to allow access

Report Contains

  • Site Summary
  • Development Pipeline
  • Recent Transactions
  • Surrounding Amenity
Download Report
Download Report
68 Cubberla Street, Fig Tree Pocket, QLD 4069 Fig Tree Pocket
Enquire