Watch Watch
Your home of Development Ready videos
Watch Watch
Back
Sold Check

675-677 Basin-Olinda Road, Olinda VIC 3788

+23 Photos

675-677 Basin-Olinda Road, Olinda VIC 3788

Olinda

×
Sold Check
+25 Photos

675-677 Basin-Olinda Road, Olinda VIC 3788

Olinda

SOLD
675-677 Basin-Olinda Road, Olinda VIC 3788

675-677 Basin-Olinda Road, Olinda VIC 3788

Properties / Sold / Victoria / Olinda
Development Potential
Property Type
Commercial, Health/Medical
Sub Type
Office, Medical
Land Area
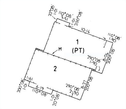
207 m² (*approx)
Selling Method
For Sale: $800,000 - $850,000 + GST
Show All
Vendor Must Sell! All Offers Considered

Tucked just behind the main thoroughfare of tourist-favourite Mount Dandenong – where flower-filled teahouses and charming boutiques attract a steady stream of day-trippers and loyal locals. Each store holds its own title, providing flexible options for investors or business owners alike. Sold with vacant possession and brimming with character, this is a Hills opportunity with heart – and exceptional potential.

With soaring ceilings, exposed beams, clerestory windows, and architectural quirks that make these no ordinary commercial offerings, these adjoining buildings are poised for a creative revival. Think co-working hub, health and wellness clinic, medical premises, creative hub, offices or community space - the possibilities are wide open.

Both shops (#675 and #677) feature flexible floorplans with street-facing bay windows, generous front reception rooms, two dedicated offices, large rear conference rooms to fit a large board room table, kitchenettes, bathrooms, and great storage options. #675 adds rustic flair with a Coonara wood fire warming the front room - perfect for welcoming clients or creating an ambient studio space.

Whether you're an investor looking to lease out both premises or a small business owner seeking to occupy one and lease the other, there’s scope here to adapt and thrive. With off-street parking at the front and rear, plus split systems and ducted heating for year-round comfort, the practicalities are well covered.

Positioned footsteps from the Mount Dandenong village, and just moments from neighbouring Olinda and Sassafras, this is a prime patch of commercial land where the natural beauty of the Dandenongs meets business opportunity.

At a Glance:

- Two versatile commercial premises
- Sold with vacant possession - ready for owner-occupiers or investors
- Ideal for co-working spaces, wellness clinics, creative studios, small business offices, medical or community use
- #675: street-facing reception room with Coonara wood heater, two offices, large conference room, kitchenette, bathroom, storage
- #677: matching flexible layout with street-facing reception room, two offices, large conference room, kitchenette, bathroom, storage
- Soaring ceilings and clerestory windows enhance natural light and space
- Split system heating/cooling in both buildings plus ducted heating in #677
- Off-street parking
- Footsteps to Olinda Village shops and cafes
- High-profile tourist location with strong foot traffic
- Short drive to Mt Dandenong, Olinda and and Sassafras
- Tremendous investment or business opportunity in a tightly held precinct


Disclaimer: All information provided has been obtained from sources we believe to be accurate, however, we cannot guarantee the information is accurate and we accept no liability for any errors or omissions (including but not limited to a property's land size, floor plans and size, building age and condition) Interested parties should make their own enquiries and obtain their own legal advice.

Read More
Development Potential

675-677 Basin-Olinda Road Development Site Summary

Property Type
Commercial, Health/Medical
Sub-type
Office, Medical
Land Area
207 m² (*approx)
Selling method
For Sale: $800,000 - $850,000 + GST

Development Site Highlights

Vendor Must Sell! All Offers Considered

Tucked just behind the main thoroughfare of tourist-favourite Mount Dandenong – where flower-filled teahouses and charming boutiques attract a steady stream of day-trippers and loyal locals. Each store holds its own title, providing flexible options for investors or business owners alike. Sold with vacant possession and brimming with character, this is a Hills opportunity with heart – and exceptional potential.

With soaring ceilings, exposed beams, clerestory windows, and architectural quirks that make these no ordinary commercial offerings, these adjoining buildings are poised for a creative revival. Think co-working hub, health and wellness clinic, medical premises, creative hub, offices or community space - the possibilities are wide open.

Both shops (#675 and #677) feature flexible floorplans with street-facing bay windows, generous front reception rooms, two dedicated offices, large rear conference rooms to fit a large board room table, kitchenettes, bathrooms, and great storage options. #675 adds rustic flair with a Coonara wood fire warming the front room - perfect for welcoming clients or creating an ambient studio space.

Whether you're an investor looking to lease out both premises or a small business owner seeking to occupy one and lease the other, there’s scope here to adapt and thrive. With off-street parking at the front and rear, plus split systems and ducted heating for year-round comfort, the practicalities are well covered.

Positioned footsteps from the Mount Dandenong village, and just moments from neighbouring Olinda and Sassafras, this is a prime patch of commercial land where the natural beauty of the Dandenongs meets business opportunity.

At a Glance:

- Two versatile commercial premises
- Sold with vacant possession - ready for owner-occupiers or investors
- Ideal for co-working spaces, wellness clinics, creative studios, small business offices, medical or community use
- #675: street-facing reception room with Coonara wood heater, two offices, large conference room, kitchenette, bathroom, storage
- #677: matching flexible layout with street-facing reception room, two offices, large conference room, kitchenette, bathroom, storage
- Soaring ceilings and clerestory windows enhance natural light and space
- Split system heating/cooling in both buildings plus ducted heating in #677
- Off-street parking
- Footsteps to Olinda Village shops and cafes
- High-profile tourist location with strong foot traffic
- Short drive to Mt Dandenong, Olinda and and Sassafras
- Tremendous investment or business opportunity in a tightly held precinct


Disclaimer: All information provided has been obtained from sources we believe to be accurate, however, we cannot guarantee the information is accurate and we accept no liability for any errors or omissions (including but not limited to a property's land size, floor plans and size, building age and condition) Interested parties should make their own enquiries and obtain their own legal advice.

Read More
Development Potential

Finance Calculator

675-677 Basin-Olinda Road, Olinda VIC 3788

Secure/no obligation

Step 1

Loan Variables

Adjust the inputs to explore your indicative finance options.

You can adjust the inputs below by tapping ‘Adjust Variable Inputs’.

Estimated Purchase Price: $x,xxx,xxx
What you intend to pay for the property
Your Contribution: $x,xxx,xxx
The amount you’re investing
LVR: $x,xxx,xxx
Loan to Value Ratio

Estimated Purchase Price:*

What you intend to pay for the property

$

Your Contribution:

The amount you’re investing

Min: 0% - Max: 90% of purchase price.

$

LVR:

Loan to Value Ratio

Min: 10% - Max: 100% of purchase price.

%

Loan Analysis

Estimated Purchase Price:
Your expected purchase price. Final lender valuation may differ and will affect LVR and borrowing.
$x,xxx,xxx
Your Contribution:
Your funds toward the purchase (savings/equity/gift). Does not include costs like duty, legals or LMI.
$xxx,xxx
Loan to Value Ratio:
Calculated as Loan ÷ Price. Guidance only. Lender policy caps vary by property type, location and borrower profile.
xx%
Loan Amount:
Estimated loan based on your inputs. Excludes fees, LMI and costs. Subject to credit assessment and valuation.
in full report
Interest Only: Monthly Repayments
Estimate using interest-only at 5.85% p.a. Excludes fees. Rates can change without notice.
in full report
Principal & Interest: Monthly Repayments
Estimate at 5.85% p.a. over 15 years, monthly compounding. Excludes fees/LMI. Rates may change.
in full report
Stamp Duty: victoria
Indicative rate for victoria. Concessions/exemptions (e.g., first home) may apply and change the amount.
in full report
Stamp Duty Cost:
Estimate only. Check SRO victoria for the latest rules and any concessions that may reduce this figure.
in full report

Property Location of 675-677 Basin-Olinda Road, Olinda VIC 3788

One moment please.

Retrieving map...

Due Diligence

Site Report Available

Download your free DistrictData site summary. Make sure you are logged into DevelopmentReady to allow access

Report Contains

  • Site Summary
  • Development Pipeline
  • Recent Transactions
  • Surrounding Amenity
Download Report
Download Report
675-677 Basin-Olinda Road, Olinda VIC 3788 Olinda