Watch Watch
Your home of Development Ready videos
Watch Watch
Back
Sold Check

6 Marmion Parade, Taringa, QLD 4068

+3 Photos

6 Marmion Parade, Taringa, QLD 4068

Taringa

×
Sold Check
+5 Photos
6 Marmion Parade, Taringa, QLD 4068

6 Marmion Parade, Taringa, QLD 4068

Properties / Sold / Queensland / Taringa
Development Potential
Property Type
Residential, Health/Medical
Sub Type
Apartment Sites, Townhouse Sites, Duplex / Dual Occ, Aged Care
Land Area
1,513 m² (*approx)
LGA
Brisbane City
Selling Method
For Sale: EOI closing 4pm Wednesday the 8th March 2023
Show All
1,513sqm Double Block located in the Heart of Taringa
  • Untapped development opportunity
  • Significant double block
  • Stone’s throw from the heart of Taringa

Savills are delighted to offer for sale for the first time in almost 35 years, this large 1,513sq m* double block located at 4 - 6 Marmion Parade, Taringa.

The underutilised site is nestled on a quiet street, just a stone’s throw from the heart of Taringa providing strong connection to transport and a range of amenities. Rarely do opportunities become available to purchase land of this size with 38.4m* of frontage, positioned only 5 kilometres* from the Brisbane CBD.

The site is zoned LMR2 Low-medium density residential (2 or 3 storey mix) within the Taringa Neighbourhood Plan offering untapped development opportunity with a variety of potential land uses.

The site is currently improved with a two-storey detached residential dwelling which includes a pool and tennis court offering a charming family home, strong land holding or future development opportunity.

Highlights

• Significant double block which in amalgamation forms a 1,513sq m* inner city development site located 1km* from Toowong Village and 5km*from the Brisbane CBD

• Zoned LMR2 Low-medium density residential (2 or 3 storey mix) within the Taringa Neighbourhood Plan offering untapped development opportunity.

• Development potential: the site could accommodate; caretaker’s accommodation, dual occupancy; residential care facility, aged care facility, rooming accommodation or subdivision for freehold lots or multiple dwellings of up to 2 to 3 storey’s (subject to Council approval)

• Median house price within Taringa is over $1.5 million with 10.2% growth over the last 12 months.

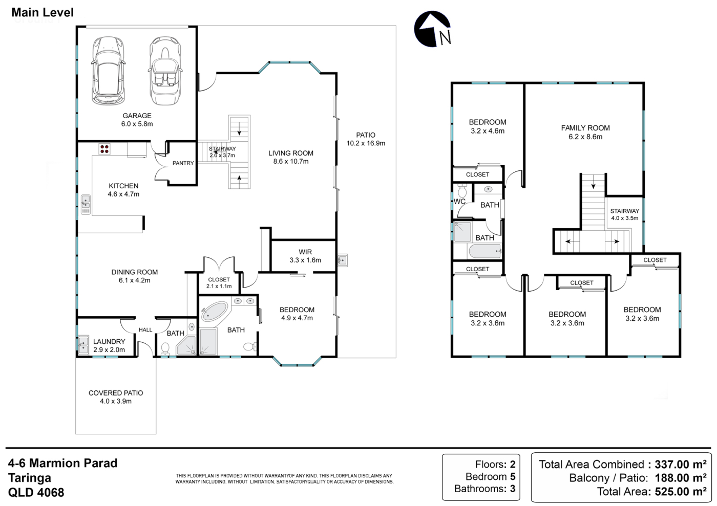
• Existing improvements include a two-storey detached 5-bedroom, 3-bathroom residential dwelling, with a pool and tennis court.

• Positioned in a leafy corridor, the property is within walking distance to a number of schools, public parks, cafes and transport options. The core characteristics of the location are highly desirable attributes offering an idyllic lifestyle setting resulting in strong demand within the area.

• Brisbane is experiencing significant growth following considerable Public and Private spending on key infrastructure projects across the region in addition to the recent successful tendering of the 2032 Olympic Games

*Approximately

Remember to mention you found this property on DevelopmentReady

Read More
Development Potential

6 Marmion Parade Development Site Summary

Property Type
Residential, Health/Medical
Sub-type
Apartment Sites, Townhouse Sites, Duplex / Dual Occ, Aged Care
Land Area
1,513 m² (*approx)
Brisbane City
Selling method
For Sale: EOI closing 4pm Wednesday the 8th March 2023

Development Site Highlights

1,513sqm Double Block located in the Heart of Taringa
  • Untapped development opportunity
  • Significant double block
  • Stone’s throw from the heart of Taringa

Savills are delighted to offer for sale for the first time in almost 35 years, this large 1,513sq m* double block located at 4 - 6 Marmion Parade, Taringa.

The underutilised site is nestled on a quiet street, just a stone’s throw from the heart of Taringa providing strong connection to transport and a range of amenities. Rarely do opportunities become available to purchase land of this size with 38.4m* of frontage, positioned only 5 kilometres* from the Brisbane CBD.

The site is zoned LMR2 Low-medium density residential (2 or 3 storey mix) within the Taringa Neighbourhood Plan offering untapped development opportunity with a variety of potential land uses.

The site is currently improved with a two-storey detached residential dwelling which includes a pool and tennis court offering a charming family home, strong land holding or future development opportunity.

Highlights

• Significant double block which in amalgamation forms a 1,513sq m* inner city development site located 1km* from Toowong Village and 5km*from the Brisbane CBD

• Zoned LMR2 Low-medium density residential (2 or 3 storey mix) within the Taringa Neighbourhood Plan offering untapped development opportunity.

• Development potential: the site could accommodate; caretaker’s accommodation, dual occupancy; residential care facility, aged care facility, rooming accommodation or subdivision for freehold lots or multiple dwellings of up to 2 to 3 storey’s (subject to Council approval)

• Median house price within Taringa is over $1.5 million with 10.2% growth over the last 12 months.

• Existing improvements include a two-storey detached 5-bedroom, 3-bathroom residential dwelling, with a pool and tennis court.

• Positioned in a leafy corridor, the property is within walking distance to a number of schools, public parks, cafes and transport options. The core characteristics of the location are highly desirable attributes offering an idyllic lifestyle setting resulting in strong demand within the area.

• Brisbane is experiencing significant growth following considerable Public and Private spending on key infrastructure projects across the region in addition to the recent successful tendering of the 2032 Olympic Games

*Approximately

Remember to mention you found this property on DevelopmentReady

Read More
Development Potential

Finance Calculator

6 Marmion Parade, Taringa, QLD 4068

Secure/no obligation

Step 1

Loan Variables

Adjust the inputs to explore your indicative finance options.

You can adjust the inputs below by tapping ‘Adjust Variable Inputs’.

Estimated Purchase Price: $x,xxx,xxx
What you intend to pay for the property
Your Contribution: $x,xxx,xxx
The amount you’re investing
LVR: $x,xxx,xxx
Loan to Value Ratio

Estimated Purchase Price:*

What you intend to pay for the property

$

Your Contribution:

The amount you’re investing

Min: 0% - Max: 90% of purchase price.

$

LVR:

Loan to Value Ratio

Min: 10% - Max: 100% of purchase price.

%

Loan Analysis

Estimated Purchase Price:
Your expected purchase price. Final lender valuation may differ and will affect LVR and borrowing.
$x,xxx,xxx
Your Contribution:
Your funds toward the purchase (savings/equity/gift). Does not include costs like duty, legals or LMI.
$xxx,xxx
Loan to Value Ratio:
Calculated as Loan ÷ Price. Guidance only. Lender policy caps vary by property type, location and borrower profile.
xx%
Loan Amount:
Estimated loan based on your inputs. Excludes fees, LMI and costs. Subject to credit assessment and valuation.
in full report
Interest Only: Monthly Repayments
Estimate using interest-only at 5.85% p.a. Excludes fees. Rates can change without notice.
in full report
Principal & Interest: Monthly Repayments
Estimate at 5.85% p.a. over 15 years, monthly compounding. Excludes fees/LMI. Rates may change.
in full report
Stamp Duty: queensland
Indicative rate for queensland. Concessions/exemptions (e.g., first home) may apply and change the amount.
in full report
Stamp Duty Cost:
Estimate only. Check SRO queensland for the latest rules and any concessions that may reduce this figure.
in full report

Property Location of 6 Marmion Parade, Taringa, QLD 4068

One moment please.

Retrieving map...

Due Diligence

Developments and amenities within a 5km radius of this Residential opportunity at 6 Marmion Parade, Taringa, QLD 4068.

Site Report Available

Download your free DistrictData site summary. Make sure you are logged into DevelopmentReady to allow access

Report Contains

  • Site Summary
  • Development Pipeline
  • Recent Transactions
  • Surrounding Amenity
Download Report
Download Report