Watch Watch
Your home of Development Ready videos
Watch Watch
Back
Sold Check

6-10 Rutland Road, Box Hill, VIC 3128

+18 Photos

6-10 Rutland Road, Box Hill, VIC 3128

Box Hill

×
Sold Check
+20 Photos
6-10 Rutland Road, Box Hill, VIC 3128

6-10 Rutland Road, Box Hill, VIC 3128

Properties / Sold / Victoria / Box Hill
Development Potential
Property Type
Commercial
Sub Type
Office
Land Area
517 m² (*approx)
Zoning
Commercial 1
Local Government
City of Whitehorse
Selling Method
EOI: Closing on Thursday 29th August 2024 at 2pm
EOI Closing Date
29 Aug 2024 02:00PM
Show All
BOX HILL ACTIVITY CENTRE DEVELOPMENT SITE
  • Exceptional development opportunity STCA
  • Three street frontages
  • Flexible Commercial 1 Zone

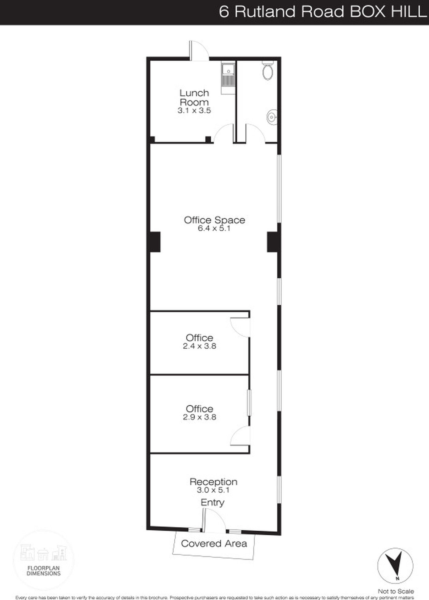
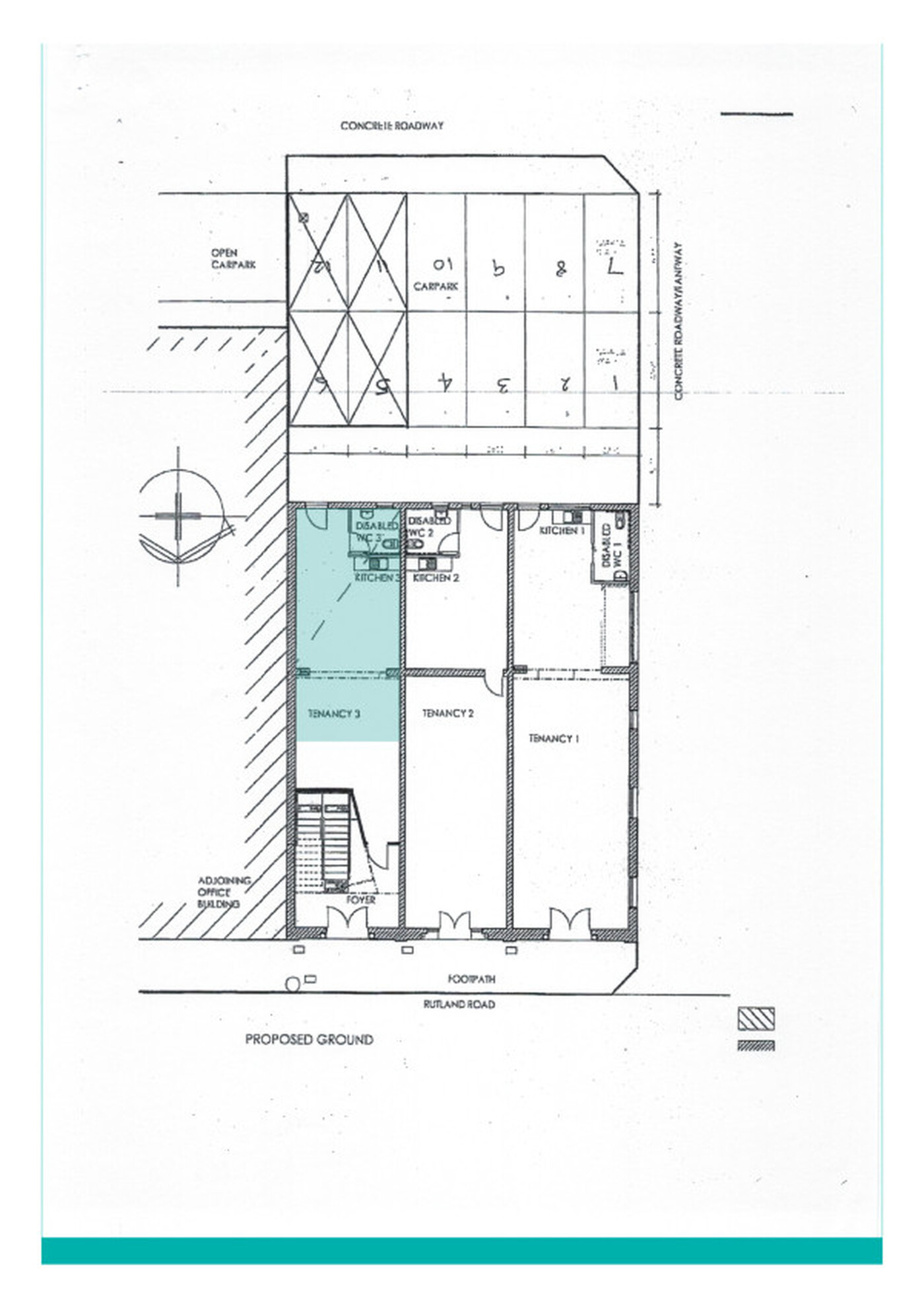
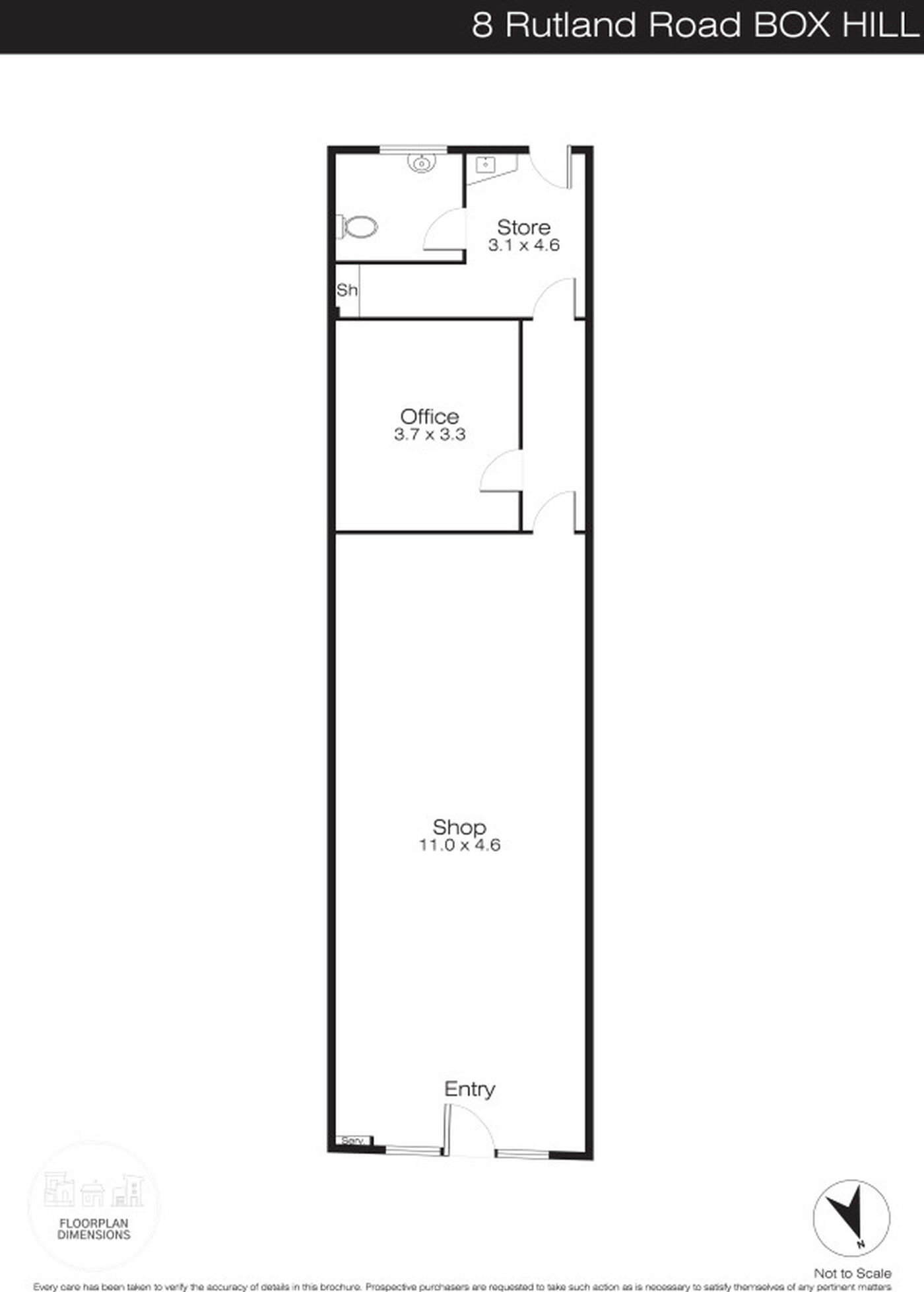
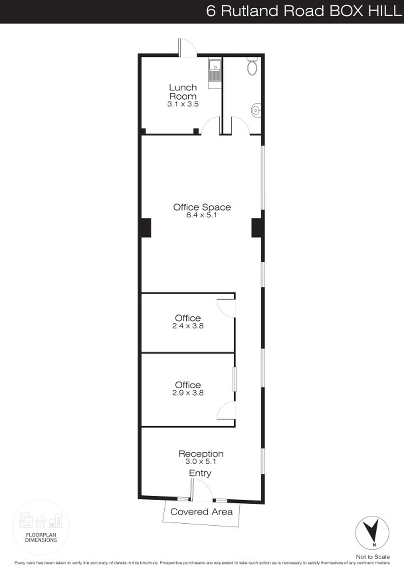
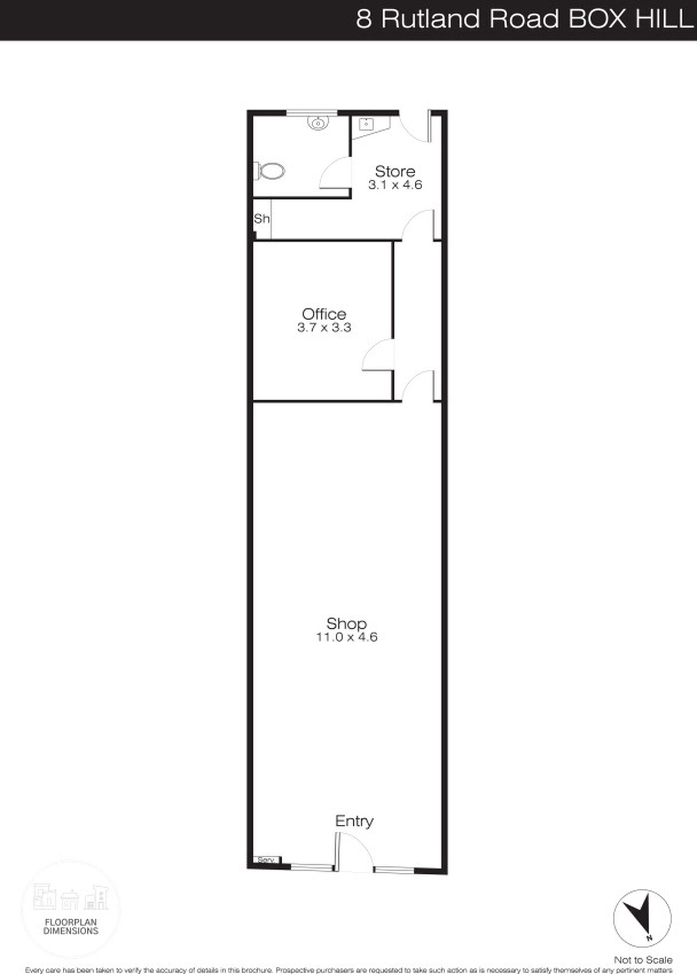
Gorman Commercial is excited to present 6-10 Rutland Road, Box Hill for sale via an Expressions of Interest campaign closing on Thursday 29th August 2024 at 2pm.

This property presents an exceptional development opportunity with outstanding north facing views containing three separate tenancies.

Key highlights include:

* Income $163,232.16 pa + GST and outgoings

* Land area: 517 sqm approx.

* Three street frontages

* Proposed height for 8-9 levels (STCA)

* Flexible Commercial 1 zoning

Situated within the Box Hill Activity Centre opposite Box Hill Central and Box Hill Station.

Remember to mention you found this property on DevelopmentReady

Read More
Development Potential

6-10 Rutland Road Development Site Summary

Property Type
Commercial
Sub-type
Office
Land Area
517 m² (*approx)
Commercial 1
Local Government
City of Whitehorse
Selling method
EOI: Closing on Thursday 29th August 2024 at 2pm
EOI Closing Date
29 Aug 2024 02:00PM

Development Site Highlights

BOX HILL ACTIVITY CENTRE DEVELOPMENT SITE
  • Exceptional development opportunity STCA
  • Three street frontages
  • Flexible Commercial 1 Zone

Gorman Commercial is excited to present 6-10 Rutland Road, Box Hill for sale via an Expressions of Interest campaign closing on Thursday 29th August 2024 at 2pm.

This property presents an exceptional development opportunity with outstanding north facing views containing three separate tenancies.

Key highlights include:

* Income $163,232.16 pa + GST and outgoings

* Land area: 517 sqm approx.

* Three street frontages

* Proposed height for 8-9 levels (STCA)

* Flexible Commercial 1 zoning

Situated within the Box Hill Activity Centre opposite Box Hill Central and Box Hill Station.

Remember to mention you found this property on DevelopmentReady

Read More
Development Potential

Finance Calculator

6-10 Rutland Road, Box Hill, VIC 3128

Secure/no obligation

Step 1

Loan Variables

Adjust the inputs to explore your indicative finance options.

You can adjust the inputs below by tapping ‘Adjust Variable Inputs’.

Estimated Purchase Price: $x,xxx,xxx
What you intend to pay for the property
Your Contribution: $x,xxx,xxx
The amount you’re investing
LVR: $x,xxx,xxx
Loan to Value Ratio

Estimated Purchase Price:*

What you intend to pay for the property

$

Your Contribution:

The amount you’re investing

Min: 0% - Max: 90% of purchase price.

$

LVR:

Loan to Value Ratio

Min: 10% - Max: 100% of purchase price.

%

Loan Analysis

Estimated Purchase Price:
Your expected purchase price. Final lender valuation may differ and will affect LVR and borrowing.
$x,xxx,xxx
Your Contribution:
Your funds toward the purchase (savings/equity/gift). Does not include costs like duty, legals or LMI.
$xxx,xxx
Loan to Value Ratio:
Calculated as Loan ÷ Price. Guidance only. Lender policy caps vary by property type, location and borrower profile.
xx%
Loan Amount:
Estimated loan based on your inputs. Excludes fees, LMI and costs. Subject to credit assessment and valuation.
in full report
Interest Only: Monthly Repayments
Estimate using interest-only at 5.85% p.a. Excludes fees. Rates can change without notice.
in full report
Principal & Interest: Monthly Repayments
Estimate at 5.85% p.a. over 15 years, monthly compounding. Excludes fees/LMI. Rates may change.
in full report
Stamp Duty: victoria
Indicative rate for victoria. Concessions/exemptions (e.g., first home) may apply and change the amount.
in full report
Stamp Duty Cost:
Estimate only. Check SRO victoria for the latest rules and any concessions that may reduce this figure.
in full report

Property Location of 6-10 Rutland Road, Box Hill, VIC 3128

One moment please.

Retrieving map...

Due Diligence

Site Report Available

Download your free DistrictData site summary. Make sure you are logged into DevelopmentReady to allow access

Report Contains

  • Site Summary
  • Development Pipeline
  • Recent Transactions
  • Surrounding Amenity
Download Report
Download Report