Watch Watch
Your home of Development Ready videos
Watch Watch
Back
Sold Check

59 Timbarra Way, Red Cliffs, VIC 3496

+5 Photos

59 Timbarra Way, Red Cliffs, VIC 3496

Red Cliffs

×
Sold Check
+7 Photos
59 Timbarra Way, Red Cliffs, VIC 3496

59 Timbarra Way, Red Cliffs, VIC 3496

Properties / Sold / Victoria / Red Cliffs
Development Approved
Property Type
Health/Medical
Sub Type
Child Care, Land Site
Land Area
3,000 m² (*approx)
Zoning
General Residential
Local Government
Red Cliffs
Selling Method
For Sale: $670,000 - $730,000
Show All
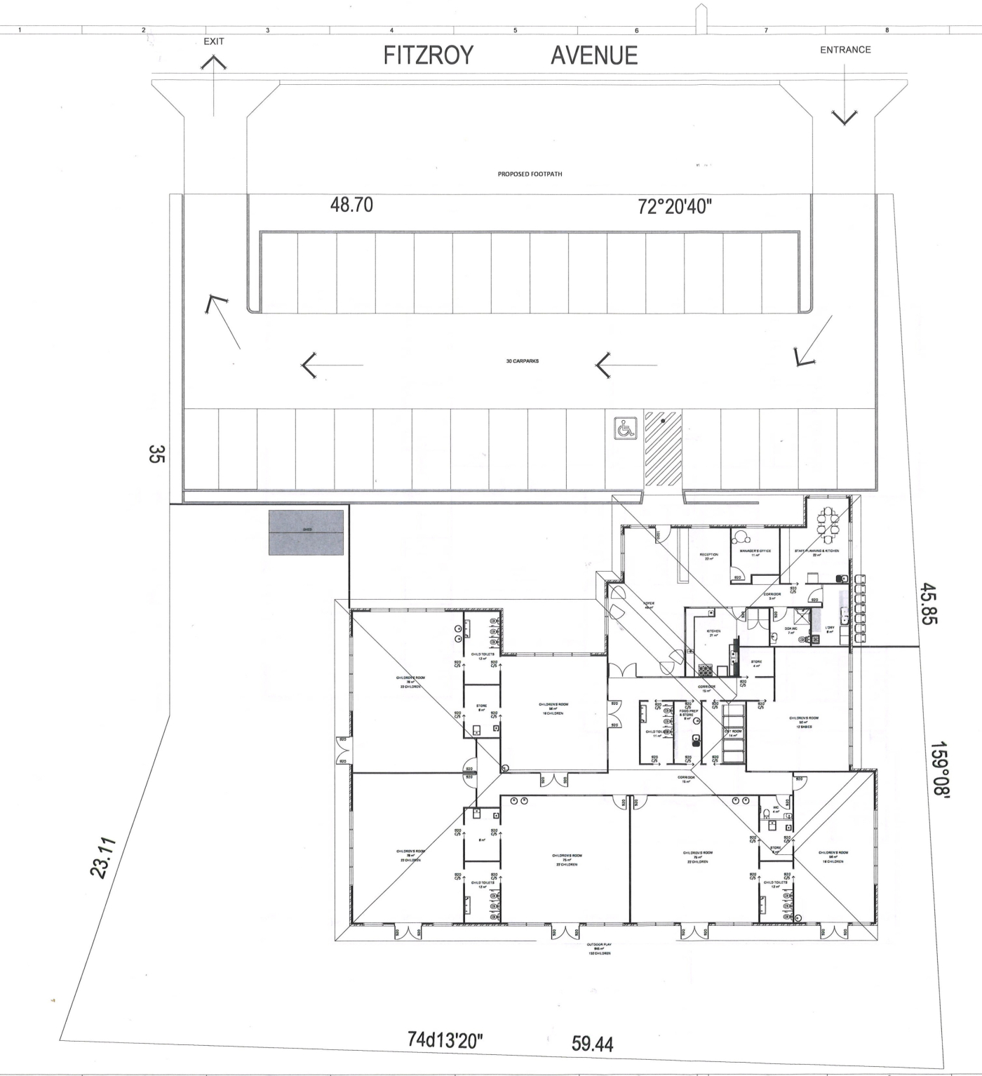
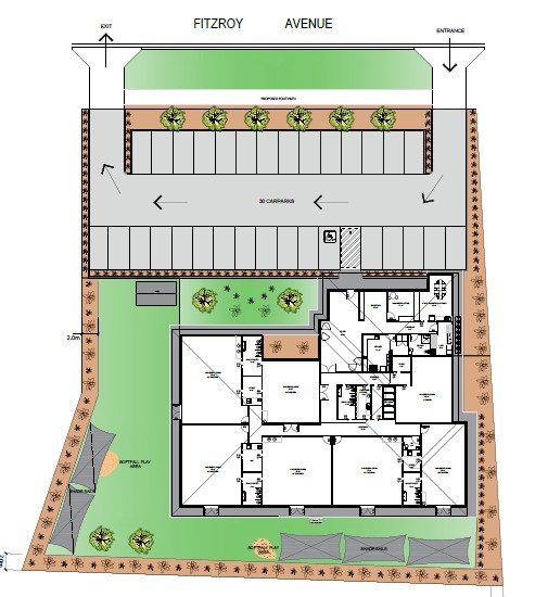
Approved Childcare Centre Site in Prime Red Cliffs Location!

Superbly located across from Red Cliffs Secondary College, with wide frontage (nearly 50m) and prominent location, just a short stroll to St Joseph’s Primary School, Red Cliffs City centre, parkland, and playgrounds is this fully approved Daycare Centre site. With permit just finalised for 132 Child, Childcare Centre, with approved well-designed layout allowing easy pick-up and drop-off. Alongside popular new residential subdivisions with young families building their dream family homes, and with Red Cliffs growing population, there is strong demand for a centre such as this in Red Cliffs - don't miss this great opportunity!

Remember to mention you found this property on DevelopmentReady

Read More
Development Approved

59 Timbarra Way Development Site Summary

Property Type
Health/Medical
Sub-type
Child Care, Land Site
Land Area
3,000 m² (*approx)
General Residential
Local Government
Red Cliffs
Selling method
For Sale: $670,000 - $730,000

Development Site Highlights

Approved Childcare Centre Site in Prime Red Cliffs Location!

Superbly located across from Red Cliffs Secondary College, with wide frontage (nearly 50m) and prominent location, just a short stroll to St Joseph’s Primary School, Red Cliffs City centre, parkland, and playgrounds is this fully approved Daycare Centre site. With permit just finalised for 132 Child, Childcare Centre, with approved well-designed layout allowing easy pick-up and drop-off. Alongside popular new residential subdivisions with young families building their dream family homes, and with Red Cliffs growing population, there is strong demand for a centre such as this in Red Cliffs - don't miss this great opportunity!

Remember to mention you found this property on DevelopmentReady

Read More
Development Approved

Finance Calculator

59 Timbarra Way, Red Cliffs, VIC 3496

Secure/no obligation

Step 1

Loan Variables

Adjust the inputs to explore your indicative finance options.

You can adjust the inputs below by tapping ‘Adjust Variable Inputs’.

Estimated Purchase Price: $x,xxx,xxx
What you intend to pay for the property
Your Contribution: $x,xxx,xxx
The amount you’re investing
LVR: $x,xxx,xxx
Loan to Value Ratio

Estimated Purchase Price:*

What you intend to pay for the property

$

Your Contribution:

The amount you’re investing

Min: 0% - Max: 90% of purchase price.

$

LVR:

Loan to Value Ratio

Min: 10% - Max: 100% of purchase price.

%

Loan Analysis

Estimated Purchase Price:
Your expected purchase price. Final lender valuation may differ and will affect LVR and borrowing.
$x,xxx,xxx
Your Contribution:
Your funds toward the purchase (savings/equity/gift). Does not include costs like duty, legals or LMI.
$xxx,xxx
Loan to Value Ratio:
Calculated as Loan ÷ Price. Guidance only. Lender policy caps vary by property type, location and borrower profile.
xx%
Loan Amount:
Estimated loan based on your inputs. Excludes fees, LMI and costs. Subject to credit assessment and valuation.
in full report
Interest Only: Monthly Repayments
Estimate using interest-only at 5.85% p.a. Excludes fees. Rates can change without notice.
in full report
Principal & Interest: Monthly Repayments
Estimate at 5.85% p.a. over 15 years, monthly compounding. Excludes fees/LMI. Rates may change.
in full report
Stamp Duty: victoria
Indicative rate for victoria. Concessions/exemptions (e.g., first home) may apply and change the amount.
in full report
Stamp Duty Cost:
Estimate only. Check SRO victoria for the latest rules and any concessions that may reduce this figure.
in full report

Property Location of 59 Timbarra Way, Red Cliffs, VIC 3496

One moment please.

Retrieving map...

Due Diligence

Site Report Available

Download your free DistrictData site summary. Make sure you are logged into DevelopmentReady to allow access

Report Contains

  • Site Summary
  • Development Pipeline
  • Recent Transactions
  • Surrounding Amenity
Download Report
Download Report
59 Timbarra Way, Red Cliffs, VIC 3496 Red Cliffs
Explore other suburbs in this area
Explore other suburbs in this area