Watch Watch
Your home of Development Ready videos
Watch Watch
Back

52-58 Moorabool Street, Geelong VIC

+13 Photos

52-58 Moorabool Street, Geelong VIC

Geelong

×
+15 Photos
52-58 Moorabool Street, Geelong VIC

52-58 Moorabool Street, Geelong VIC

Properties / Buy / Victoria / Geelong
Development Potential
Property Type
Commercial, Mixed Use
Sub Type
Office, Retail/Shopping Centre, Land Site
Land Area
950 m² (*approx)
LGA
Greater Geelong City
Selling Method
EOI: Contact Agent
EOI Closing Date
3 Dec 2024 12:00PM
Show All
A rare three street frontage opportunity
  • Metres from Geelong Waterfront
  • Located in the heart of the CBD

This brilliantly located site offers a rare opportunity to secure a prime Geelong CBD site for future development (STCA). Geelong is one of the fastest growing regional cities in Australia and is the second largest city in Victoria.

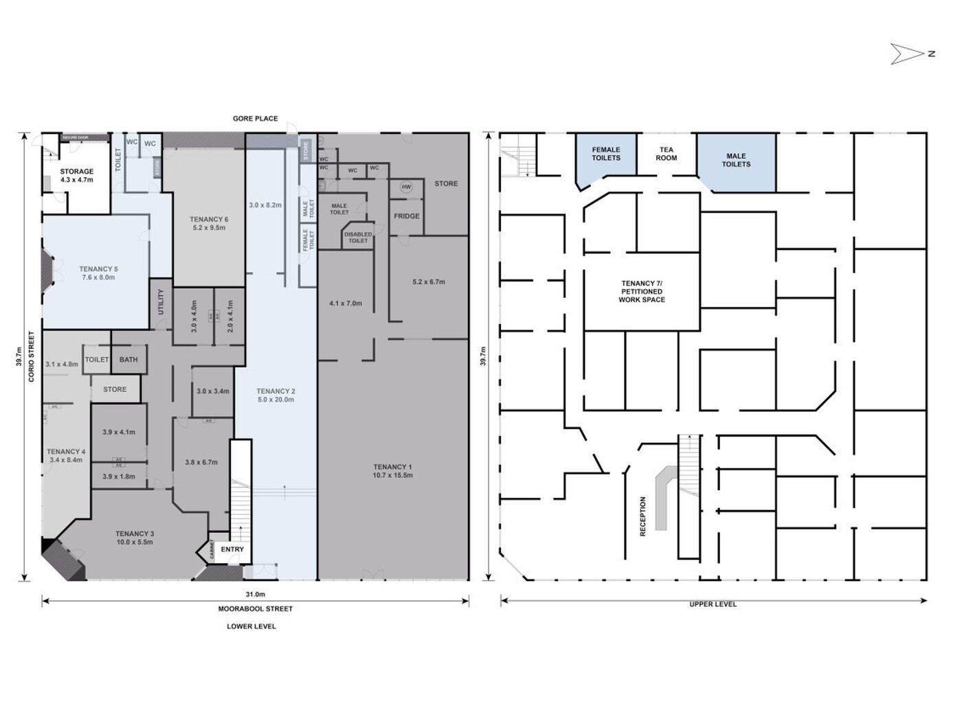
The property is zoned Activity Centre allowing for a multitude of potential uses. It currently comprises four separate titles totaling 950m2 (approximate) of prime land.

Bounded by three streets it is very unique indeed. Moorabool Street bounds the eastern boundary, Corio Street the south boundary and Gore Place fronts the western boundary.

Population growth is very strong, currently at 289,272 in 2024 and to grow to 396,388 by 2041 (approximately 37% increase). By 2050 it is expected to climb as high as 500,000.

Infrastructure improvements such as the West Gate Tunnel Project and the mooted Fast Train from Geelong to Melbourne will only serve to accelerate this growth.

Being divided between Melbourne and the Surf coast and the Bellarine adds to the attraction of living in and doing business in the Greater Geelong area.

Geelong was referred to as “The Pivot” in the 1860’s, owing to it being a rail and shipping hub for Western Victoria. This is no less true today.

Read More
Development Potential

52-58 Moorabool Street Development Site Summary

Property Type
Commercial, Mixed Use
Sub-type
Office, Retail/Shopping Centre, Land Site
Land Area
950 m² (*approx)
Greater Geelong City
Selling method
EOI: Contact Agent
EOI Closing Date
3 Dec 2024 12:00PM

Development Site Highlights

A rare three street frontage opportunity
  • Metres from Geelong Waterfront
  • Located in the heart of the CBD

This brilliantly located site offers a rare opportunity to secure a prime Geelong CBD site for future development (STCA). Geelong is one of the fastest growing regional cities in Australia and is the second largest city in Victoria.

The property is zoned Activity Centre allowing for a multitude of potential uses. It currently comprises four separate titles totaling 950m2 (approximate) of prime land.

Bounded by three streets it is very unique indeed. Moorabool Street bounds the eastern boundary, Corio Street the south boundary and Gore Place fronts the western boundary.

Population growth is very strong, currently at 289,272 in 2024 and to grow to 396,388 by 2041 (approximately 37% increase). By 2050 it is expected to climb as high as 500,000.

Infrastructure improvements such as the West Gate Tunnel Project and the mooted Fast Train from Geelong to Melbourne will only serve to accelerate this growth.

Being divided between Melbourne and the Surf coast and the Bellarine adds to the attraction of living in and doing business in the Greater Geelong area.

Geelong was referred to as “The Pivot” in the 1860’s, owing to it being a rail and shipping hub for Western Victoria. This is no less true today.

Read More
Development Potential

Finance Calculator

52-58 Moorabool Street, Geelong VIC

Secure/no obligation

Step 1

Loan Variables

Adjust the inputs to explore your indicative finance options.

You can adjust the inputs below by tapping ‘Adjust Variable Inputs’.

Estimated Purchase Price: $x,xxx,xxx
What you intend to pay for the property
Your Contribution: $x,xxx,xxx
The amount you’re investing
LVR: $x,xxx,xxx
Loan to Value Ratio

Estimated Purchase Price:*

What you intend to pay for the property

$

Your Contribution:

The amount you’re investing

Min: 0% - Max: 90% of purchase price.

$

LVR:

Loan to Value Ratio

Min: 10% - Max: 100% of purchase price.

%

Loan Analysis

Estimated Purchase Price:
Your expected purchase price. Final lender valuation may differ and will affect LVR and borrowing.
$x,xxx,xxx
Your Contribution:
Your funds toward the purchase (savings/equity/gift). Does not include costs like duty, legals or LMI.
$xxx,xxx
Loan to Value Ratio:
Calculated as Loan ÷ Price. Guidance only. Lender policy caps vary by property type, location and borrower profile.
xx%
Loan Amount:
Estimated loan based on your inputs. Excludes fees, LMI and costs. Subject to credit assessment and valuation.
in full report
Interest Only: Monthly Repayments
Estimate using interest-only at 5.85% p.a. Excludes fees. Rates can change without notice.
in full report
Principal & Interest: Monthly Repayments
Estimate at 5.85% p.a. over 15 years, monthly compounding. Excludes fees/LMI. Rates may change.
in full report
Stamp Duty: victoria
Indicative rate for victoria. Concessions/exemptions (e.g., first home) may apply and change the amount.
in full report
Stamp Duty Cost:
Estimate only. Check SRO victoria for the latest rules and any concessions that may reduce this figure.
in full report

Property Location of 52-58 Moorabool Street, Geelong VIC

One moment please.

Retrieving map...

Due Diligence

Developments and amenities within a 5km radius of this Commercial opportunity at 52-58 Moorabool Street, Geelong VIC.

Site Report Available

Download your free DistrictData site summary. Make sure you are logged into DevelopmentReady to allow access

Report Contains

  • Site Summary
  • Development Pipeline
  • Recent Transactions
  • Surrounding Amenity
Download Report
Download Report
Enquire