 
                 
            
                 
            
                 
            
                 
                             
                    
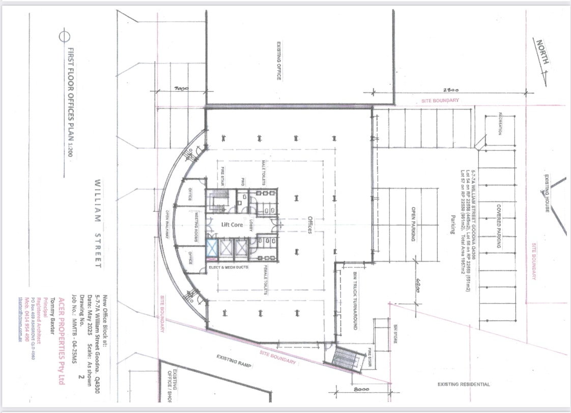
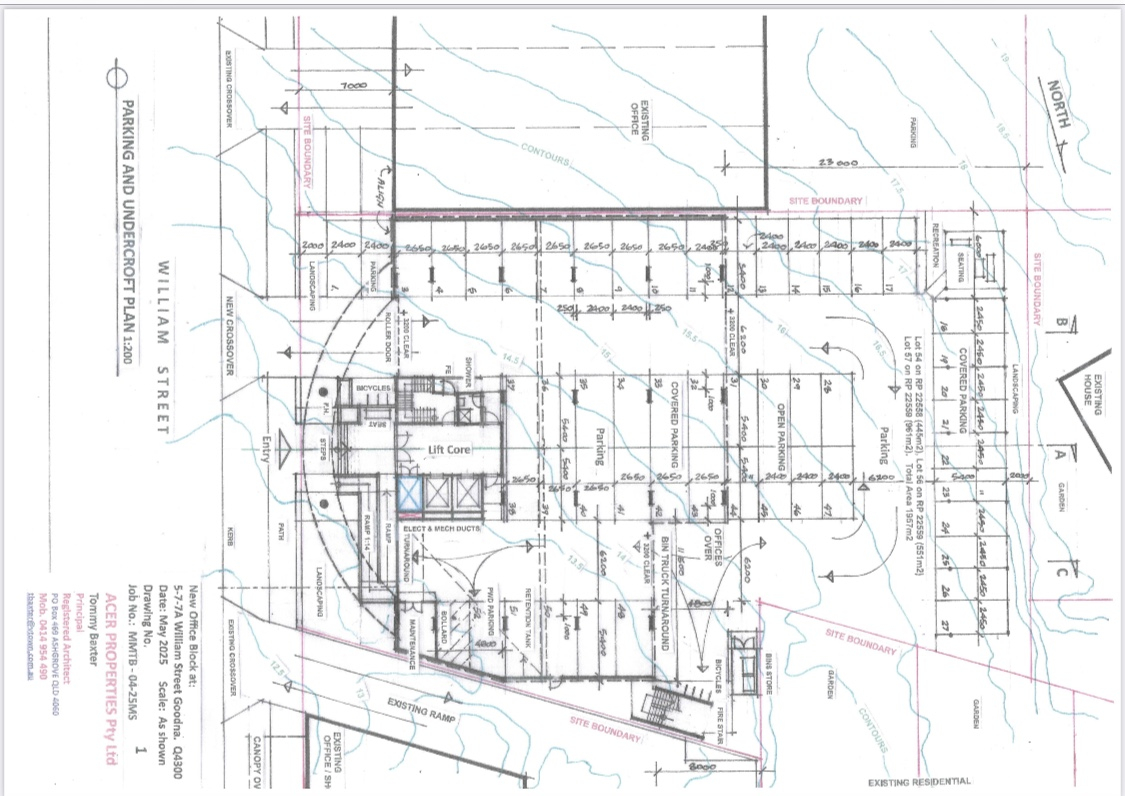
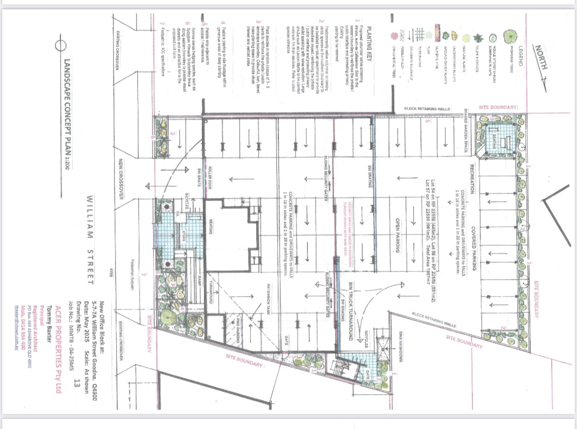
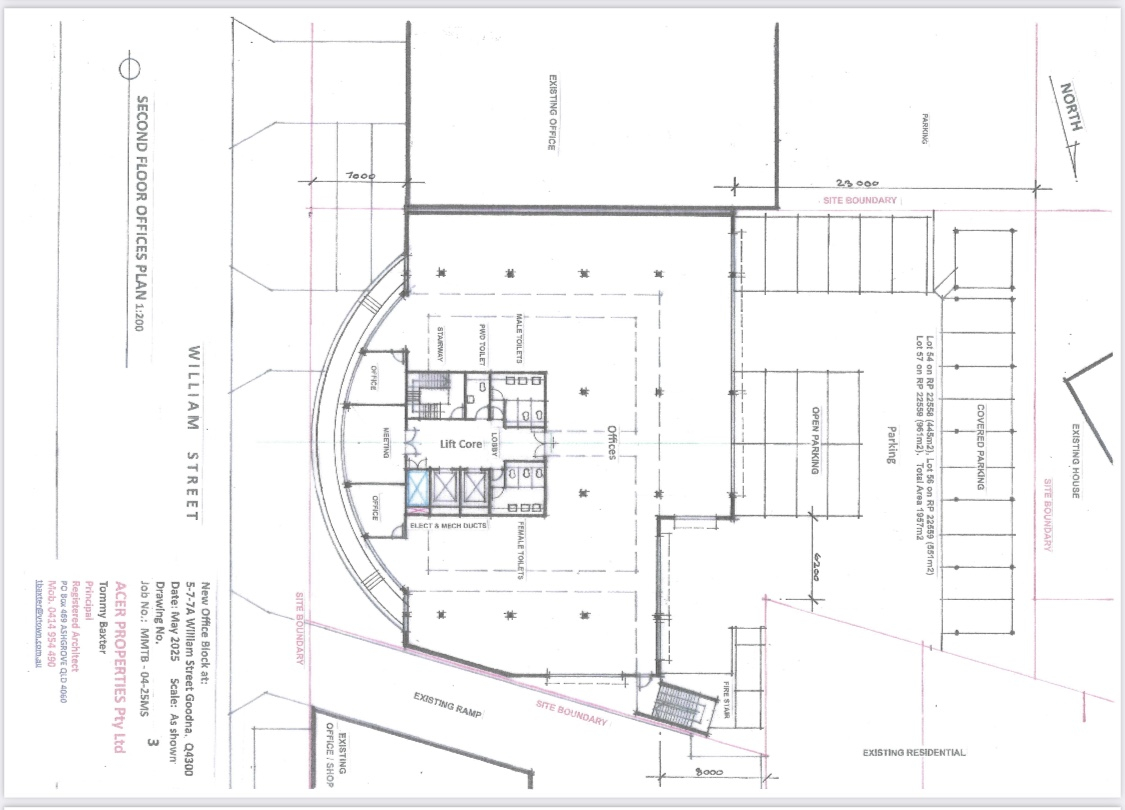
            The DA. Approval for this Office Development is with ICC. (STCA)..3 storeys ( 50 onsite car parking space's at ground level and 2 levels of offices above totalling 1500m2 NLA ) see plans. This is a rare commercial vacant site 1957m2 in Goodna Town Centre. It is zoned "Major Centre" and so offers many development options.
Offices, Shops, Childcare Centre, Healthcare, Community Use, Hotel, Bar, Mixed use.
There is either side of this vacant land, a fitness centre and commercial offices.
This site is right in the mix, floor levels are "flood free" because of its fringe location and also because the new office floor levels are above the DFE ( defined flood event) It is directly opposite MacDonalds and has direct access to the motorway.
Perfect spot for that business.
Contact : Tommy Baxter 0414954490
The DA. Approval for this Office Development is with ICC. (STCA)..3 storeys ( 50 onsite car parking space's at ground level and 2 levels of offices above totalling 1500m2 NLA ) see plans. This is a rare commercial vacant site 1957m2 in Goodna Town Centre. It is zoned "Major Centre" and so offers many development options.
Offices, Shops, Childcare Centre, Healthcare, Community Use, Hotel, Bar, Mixed use.
There is either side of this vacant land, a fitness centre and commercial offices.
This site is right in the mix, floor levels are "flood free" because of its fringe location and also because the new office floor levels are above the DFE ( defined flood event) It is directly opposite MacDonalds and has direct access to the motorway.
Perfect spot for that business.
Contact : Tommy Baxter 0414954490
 
                    