Watch Watch
Your home of Development Ready videos
Watch Watch
Back
Sold Check

472 DONCASTER ROAD, Doncaster, VIC, 3108

+9 Photos

472 DONCASTER ROAD, Doncaster, VIC, 3108

Doncaster

×
Sold Check
+11 Photos

472 DONCASTER ROAD, Doncaster, VIC, 3108

Doncaster

SOLD
472 DONCASTER ROAD, Doncaster, VIC, 3108

472 DONCASTER ROAD, Doncaster, VIC, 3108

Properties / Sold / Victoria / Doncaster
Development Potential
Property Type
Residential
Sub Type
Townhouse Sites
Land Area
652 m² (*approx)
LGA
Manningham City
Selling Method
SOLD:
Show All

PERFECT FAMILY HOME IN RGZ/DD08 WITH POTENTIAL TO BUILD 6 LUXURY TOWNHOUSES (STCA)!

SOLD!

A beautiful family home in a blue chip location close to everything with a potential to build 6 luxury townhouses(STCA). 

For those who value the balance of quality living in a renowned area with close proximity to popular amenities, this property goes above and beyond to provide just this and more! Not to mention a wealth of potential to build, as based on an architect's representation, you may build SIX large luxury townhouses (STCA) on this premium block of land. It is also firmly placed in the most sought after Residential Growth Zone (RGZ) within the coveted high density mixed development area (DDO8) of Doncaster - a true blue-chip opportunity to grab!

If development is not your initial intention, cultivating a peaceful abode is easy in this Doncaster property. Located on an inside service lane with pristine green surroundings, it makes for the perfect environment for a family to grow. This beautifully designed home makes a bold statement with a double story layout, generous offerings of space and spectacular outdoor recreation areas. As you enter through the grand porch, the windows usher in plenty of natural light, revealing the large space within. 

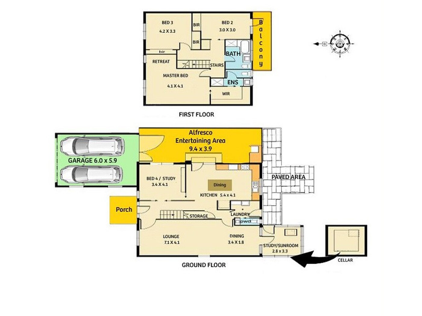
You are sure to unwind in this four bedroom home with Ensuite upstairs and a toilet below. For the wine connoisseur, there is a cellar complete with a versatile study and sun rooms, featuring views of nature while you relax in its warmth.

The modern kitchen provides all you need for a growing family. Spacious Kitchen with stainless steel appliances and lots of storage space. Large French-doors open to guide you into the stunning alfresco dining and BBQ area, ideal for enjoying quality time outdoors with family & friends. This beautiful exterior continues into the pristine backyard, with more areas to enjoy drinks while overlooking its magnificence.

Not only the house is spacious and well built, the location is exceptional too! Walkable distance to the Park+Ride and Freeway entrance and exits, 2 minutes to Westfield Doncaster, plenty of parks and reserves with the Koonung cycling and walking track close by and it is placed within popular school zones of Doncaster. 

Whether you redevelop, renovate or rent, investing in this property is a smart move!

DISCLAIMER.
PRELIMINARY CONCEPT DRAWINGS HAVE BEEN PREPARED BY AN ARCHITECT FOR DISCUSSION PURPOSES ONLY.
COMPLIANCE WITH ALL RELEVANT AUTHORITY REGULATIONS & CODES REQUIRE FURTHER INVESTIGATION AND SPECIALIST ADVICE. VERIFICATION OF ALL DIMENSIONS TO BE CONFIRMED.

Remember to mention you found this property on DevelopmentReady

Read More
Development Potential

Development Site Summary

Property Type
Residential
Sub-type
Townhouse Sites
Land Area
652 m² (*approx)
Manningham City
Selling method
SOLD:

Development Site Highlights

PERFECT FAMILY HOME IN RGZ/DD08 WITH POTENTIAL TO BUILD 6 LUXURY TOWNHOUSES (STCA)!

SOLD!

A beautiful family home in a blue chip location close to everything with a potential to build 6 luxury townhouses(STCA). 

For those who value the balance of quality living in a renowned area with close proximity to popular amenities, this property goes above and beyond to provide just this and more! Not to mention a wealth of potential to build, as based on an architect's representation, you may build SIX large luxury townhouses (STCA) on this premium block of land. It is also firmly placed in the most sought after Residential Growth Zone (RGZ) within the coveted high density mixed development area (DDO8) of Doncaster - a true blue-chip opportunity to grab!

If development is not your initial intention, cultivating a peaceful abode is easy in this Doncaster property. Located on an inside service lane with pristine green surroundings, it makes for the perfect environment for a family to grow. This beautifully designed home makes a bold statement with a double story layout, generous offerings of space and spectacular outdoor recreation areas. As you enter through the grand porch, the windows usher in plenty of natural light, revealing the large space within. 

You are sure to unwind in this four bedroom home with Ensuite upstairs and a toilet below. For the wine connoisseur, there is a cellar complete with a versatile study and sun rooms, featuring views of nature while you relax in its warmth.

The modern kitchen provides all you need for a growing family. Spacious Kitchen with stainless steel appliances and lots of storage space. Large French-doors open to guide you into the stunning alfresco dining and BBQ area, ideal for enjoying quality time outdoors with family & friends. This beautiful exterior continues into the pristine backyard, with more areas to enjoy drinks while overlooking its magnificence.

Not only the house is spacious and well built, the location is exceptional too! Walkable distance to the Park+Ride and Freeway entrance and exits, 2 minutes to Westfield Doncaster, plenty of parks and reserves with the Koonung cycling and walking track close by and it is placed within popular school zones of Doncaster. 

Whether you redevelop, renovate or rent, investing in this property is a smart move!

DISCLAIMER.
PRELIMINARY CONCEPT DRAWINGS HAVE BEEN PREPARED BY AN ARCHITECT FOR DISCUSSION PURPOSES ONLY.
COMPLIANCE WITH ALL RELEVANT AUTHORITY REGULATIONS & CODES REQUIRE FURTHER INVESTIGATION AND SPECIALIST ADVICE. VERIFICATION OF ALL DIMENSIONS TO BE CONFIRMED.

Remember to mention you found this property on DevelopmentReady

Read More
Development Potential

Finance Calculator

472 DONCASTER ROAD, Doncaster, VIC, 3108

Secure/no obligation

Step 1

Loan Variables

Adjust the inputs to explore your indicative finance options.

You can adjust the inputs below by tapping ‘Adjust Variable Inputs’.

Estimated Purchase Price: $x,xxx,xxx
What you intend to pay for the property
Your Contribution: $x,xxx,xxx
The amount you’re investing
LVR: $x,xxx,xxx
Loan to Value Ratio

Estimated Purchase Price:*

What you intend to pay for the property

$

Your Contribution:

The amount you’re investing

Min: 0% - Max: 90% of purchase price.

$

LVR:

Loan to Value Ratio

Min: 10% - Max: 100% of purchase price.

%

Loan Analysis

Estimated Purchase Price:
Your expected purchase price. Final lender valuation may differ and will affect LVR and borrowing.
$x,xxx,xxx
Your Contribution:
Your funds toward the purchase (savings/equity/gift). Does not include costs like duty, legals or LMI.
$xxx,xxx
Loan to Value Ratio:
Calculated as Loan ÷ Price. Guidance only. Lender policy caps vary by property type, location and borrower profile.
xx%
Loan Amount:
Estimated loan based on your inputs. Excludes fees, LMI and costs. Subject to credit assessment and valuation.
in full report
Interest Only: Monthly Repayments
Estimate using interest-only at 5.85% p.a. Excludes fees. Rates can change without notice.
in full report
Principal & Interest: Monthly Repayments
Estimate at 5.85% p.a. over 15 years, monthly compounding. Excludes fees/LMI. Rates may change.
in full report
Stamp Duty: victoria
Indicative rate for victoria. Concessions/exemptions (e.g., first home) may apply and change the amount.
in full report
Stamp Duty Cost:
Estimate only. Check SRO victoria for the latest rules and any concessions that may reduce this figure.
in full report

Property Location

One moment please.

Retrieving map...

472 DONCASTER ROAD, Doncaster, VIC, 3108 Doncaster