Watch Watch
Your home of Development Ready videos
Watch Watch
Back

44 Bluemetal Drive, Bridgewater

+10 Photos

44 Bluemetal Drive, Bridgewater

Bridgewater

×
+12 Photos
44 Bluemetal Drive, Bridgewater

44 Bluemetal Drive, Bridgewater

Properties / Buy / Tasmania / Bridgewater
Development Potential
Property Type
Industrial
Sub Type
Land Site
Land Area
8.10 hectares (*approx)
Zoning
General Industrial
LGA
Brighton Council
Selling Method
$AUD: By Offer
DOCUMENTS AVAILABLE
Show All
Significant Industrial Asset with Income & Development Upside
  • Highway Frontage Industrial Land
  • B-Double Access
  • Significant Improvements insitu

RWC Tasmania is privileged to be offering 44 Bluemetal Drive, Bridgewater to the market for sale. 

The property is situated on the fringe of the Brighton Highway, providing fantastic exposure and convenient accessibility for those commuting North and South. 

This 8 hectare opportunity presents itself as one of the largest industrial land offerings in greater Hobart and comes with endless opportunities for future owners. 

Key property highlights are as follows: 
• Fantastic development potential suiting a range of commercial and industrial uses 
• Possibility to strata and sell down (STCA) 
• Two crossovers providing dual entry / exit 
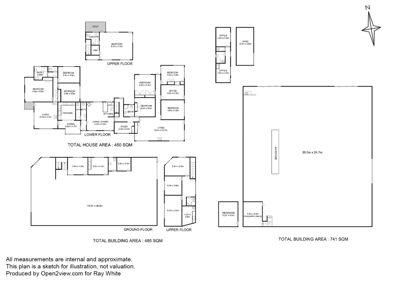
• 60m* road frontage to Bluemetal Drive, 340m* in width and 350m* in length (at boundaries) 
• Improvements include two industrial warehouses (GLA of 1,226m²*) and a large versatile home office 
• Current net holding income of approximately $189,059 with plenty of upside due to current monthly arrangements 
• Near-level land across the entire property, attractive for future development and use (STCA) 
• Access off Bluemetal Drive is B-Double approved ideal for heavy vehicle use 
• Functioning weighbridge, vehicle wash bay and fuelling station.

For more information or to arrange an inspection, please contact the undersigned selling agents.

 

*Approximate

Read More
Dataroom
Development Potential

44 Bluemetal Drive Development Site Summary

Property Type
Industrial
Sub-type
Land Site
Land Area
8.10 hectares (*approx)
General Industrial
Brighton Council
Selling method
$AUD: By Offer
DOCUMENTS AVAILABLE
Gain Access

Development Site Highlights

Significant Industrial Asset with Income & Development Upside
  • Highway Frontage Industrial Land
  • B-Double Access
  • Significant Improvements insitu

RWC Tasmania is privileged to be offering 44 Bluemetal Drive, Bridgewater to the market for sale. 

The property is situated on the fringe of the Brighton Highway, providing fantastic exposure and convenient accessibility for those commuting North and South. 

This 8 hectare opportunity presents itself as one of the largest industrial land offerings in greater Hobart and comes with endless opportunities for future owners. 

Key property highlights are as follows: 
• Fantastic development potential suiting a range of commercial and industrial uses 
• Possibility to strata and sell down (STCA) 
• Two crossovers providing dual entry / exit 
• 60m* road frontage to Bluemetal Drive, 340m* in width and 350m* in length (at boundaries) 
• Improvements include two industrial warehouses (GLA of 1,226m²*) and a large versatile home office 
• Current net holding income of approximately $189,059 with plenty of upside due to current monthly arrangements 
• Near-level land across the entire property, attractive for future development and use (STCA) 
• Access off Bluemetal Drive is B-Double approved ideal for heavy vehicle use 
• Functioning weighbridge, vehicle wash bay and fuelling station.

For more information or to arrange an inspection, please contact the undersigned selling agents.

 

*Approximate

Read More
Dataroom
Development Potential

Finance Calculator

44 Bluemetal Drive, Bridgewater

Secure/no obligation

Step 1

Loan Variables

Adjust the inputs to explore your indicative finance options.

You can adjust the inputs below by tapping ‘Adjust Variable Inputs’.

Estimated Purchase Price: $x,xxx,xxx
What you intend to pay for the property
Your Contribution: $x,xxx,xxx
The amount you’re investing
LVR: $x,xxx,xxx
Loan to Value Ratio

Estimated Purchase Price:*

What you intend to pay for the property

$

Your Contribution:

The amount you’re investing

Min: 0% - Max: 90% of purchase price.

$

LVR:

Loan to Value Ratio

Min: 10% - Max: 100% of purchase price.

%

Loan Analysis

Estimated Purchase Price:
Your expected purchase price. Final lender valuation may differ and will affect LVR and borrowing.
$x,xxx,xxx
Your Contribution:
Your funds toward the purchase (savings/equity/gift). Does not include costs like duty, legals or LMI.
$xxx,xxx
Loan to Value Ratio:
Calculated as Loan ÷ Price. Guidance only. Lender policy caps vary by property type, location and borrower profile.
xx%
Loan Amount:
Estimated loan based on your inputs. Excludes fees, LMI and costs. Subject to credit assessment and valuation.
in full report
Interest Only: Monthly Repayments
Estimate using interest-only at 5.85% p.a. Excludes fees. Rates can change without notice.
in full report
Principal & Interest: Monthly Repayments
Estimate at 5.85% p.a. over 15 years, monthly compounding. Excludes fees/LMI. Rates may change.
in full report
Stamp Duty: tasmania
Indicative rate for tasmania. Concessions/exemptions (e.g., first home) may apply and change the amount.
in full report
Stamp Duty Cost:
Estimate only. Check SRO tasmania for the latest rules and any concessions that may reduce this figure.
in full report

Property Location of 44 Bluemetal Drive, Bridgewater

One moment please.

Retrieving map...

Market Intelligence Report

Developments and amenities within a 5km radius of this Industrial opportunity at 44 Bluemetal Drive, Bridgewater.

View Full Report - Dataroom
5km radius max
Distance
Asset Type

One moment please.

Retrieving latest data...

5km radius max
Distance
Enquire