Watch Watch
Your home of Development Ready videos
Watch Watch
Back
Sold Check

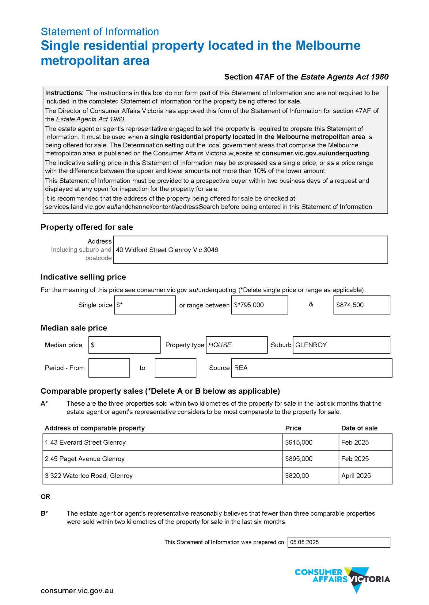
40 Widford Street, Glenroy, VIC 3046

+9 Photos

40 Widford Street, Glenroy, VIC 3046

Glenroy

×
Sold Check
+11 Photos
40 Widford Street, Glenroy, VIC 3046

40 Widford Street, Glenroy, VIC 3046

Properties / Sold / Victoria / Glenroy
Development Potential
Property Type
Residential
Sub Type
Townhouse Sites, House, Land Site
Land Area
701 m² (*approx)
Zoning
RGZ
Selling Method
Sale by Negotiation: $835,000
Show All
Prime Development Opportunity in the Heart of Glenroy

***UNDER CONTRACT***

Unlock the future at 40 Widford Street, Glenroy – a rare and exciting opportunity for developers, investors, or visionary buyers looking to capitalise in a high-growth pocket of Melbourne’s north.

Set on a generous block of 701sqm approx this property presents endless potential for redevelopment (STCA), whether you’re thinking multi-unit development, townhouses, or a brand-new dream home site.

Key Highlights:

• Large, flat block in Residential Growth Zone (RGZ)

• Ideal for townhouse or multi-unit development (STCA)

• Existing home offers rental income potential while you plan

• Walking distance to Glenroy Station, Pascoe Vale Road shops, schools, and local amenities

Moments from major transport links, schools, parklands, and just 12km from the Melbourne CBD – this location ticks all the boxes for long-term growth and development value.

Opportunities like this don’t last. Secure your next project site today!

For further information, please contact the team at Gross Waddell ICR directly.

Louise Catanese | 0413 659 185

Richard Lowe | 0425 742 777

*approximate

STCA - Subject to Council Approval

Remember to mention you found this property on DevelopmentReady

Read More
Development Potential

40 Widford Street Development Site Summary

Property Type
Residential
Sub-type
Townhouse Sites, House, Land Site
Land Area
701 m² (*approx)
RGZ
Selling method
Sale by Negotiation: $835,000

Development Site Highlights

Prime Development Opportunity in the Heart of Glenroy

***UNDER CONTRACT***

Unlock the future at 40 Widford Street, Glenroy – a rare and exciting opportunity for developers, investors, or visionary buyers looking to capitalise in a high-growth pocket of Melbourne’s north.

Set on a generous block of 701sqm approx this property presents endless potential for redevelopment (STCA), whether you’re thinking multi-unit development, townhouses, or a brand-new dream home site.

Key Highlights:

• Large, flat block in Residential Growth Zone (RGZ)

• Ideal for townhouse or multi-unit development (STCA)

• Existing home offers rental income potential while you plan

• Walking distance to Glenroy Station, Pascoe Vale Road shops, schools, and local amenities

Moments from major transport links, schools, parklands, and just 12km from the Melbourne CBD – this location ticks all the boxes for long-term growth and development value.

Opportunities like this don’t last. Secure your next project site today!

For further information, please contact the team at Gross Waddell ICR directly.

Louise Catanese | 0413 659 185

Richard Lowe | 0425 742 777

*approximate

STCA - Subject to Council Approval

Remember to mention you found this property on DevelopmentReady

Read More
Development Potential

Finance Calculator

40 Widford Street, Glenroy, VIC 3046

Secure/no obligation

Step 1

Loan Variables

Adjust the inputs to explore your indicative finance options.

You can adjust the inputs below by tapping ‘Adjust Variable Inputs’.

Estimated Purchase Price: $x,xxx,xxx
What you intend to pay for the property
Your Contribution: $x,xxx,xxx
The amount you’re investing
LVR: $x,xxx,xxx
Loan to Value Ratio

Estimated Purchase Price:*

What you intend to pay for the property

$

Your Contribution:

The amount you’re investing

Min: 0% - Max: 90% of purchase price.

$

LVR:

Loan to Value Ratio

Min: 10% - Max: 100% of purchase price.

%

Loan Analysis

Estimated Purchase Price:
Your expected purchase price. Final lender valuation may differ and will affect LVR and borrowing.
$x,xxx,xxx
Your Contribution:
Your funds toward the purchase (savings/equity/gift). Does not include costs like duty, legals or LMI.
$xxx,xxx
Loan to Value Ratio:
Calculated as Loan ÷ Price. Guidance only. Lender policy caps vary by property type, location and borrower profile.
xx%
Loan Amount:
Estimated loan based on your inputs. Excludes fees, LMI and costs. Subject to credit assessment and valuation.
in full report
Interest Only: Monthly Repayments
Estimate using interest-only at 5.85% p.a. Excludes fees. Rates can change without notice.
in full report
Principal & Interest: Monthly Repayments
Estimate at 5.85% p.a. over 15 years, monthly compounding. Excludes fees/LMI. Rates may change.
in full report
Stamp Duty: victoria
Indicative rate for victoria. Concessions/exemptions (e.g., first home) may apply and change the amount.
in full report
Stamp Duty Cost:
Estimate only. Check SRO victoria for the latest rules and any concessions that may reduce this figure.
in full report

Property Location of 40 Widford Street, Glenroy, VIC 3046

One moment please.

Retrieving map...

Due Diligence

Site Report Available

Download your free DistrictData site summary. Make sure you are logged into DevelopmentReady to allow access

Report Contains

  • Site Summary
  • Development Pipeline
  • Recent Transactions
  • Surrounding Amenity
Download Report
Download Report
40 Widford Street, Glenroy, VIC 3046 Glenroy