Watch Watch
Your home of Development Ready videos
Watch Watch
Back

389 Sevenoaks Street, Beckenham, WA 6107

+2 Photos

389 Sevenoaks Street, Beckenham, WA 6107

Beckenham

×
+4 Photos
389 Sevenoaks Street, Beckenham, WA 6107

389 Sevenoaks Street, Beckenham, WA 6107

Properties / Buy / Western Australia / Beckenham
Development Potential
Property Type
Residential, Commercial, Industrial, Mixed Use
Sub Type
Retail/Shopping Centre, Land Site
Land Area
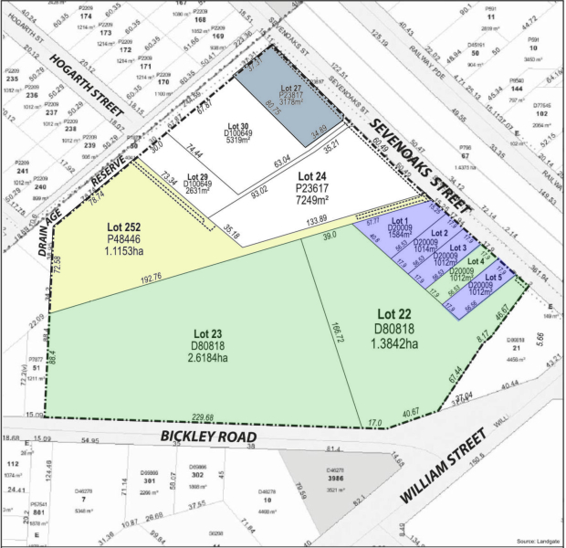
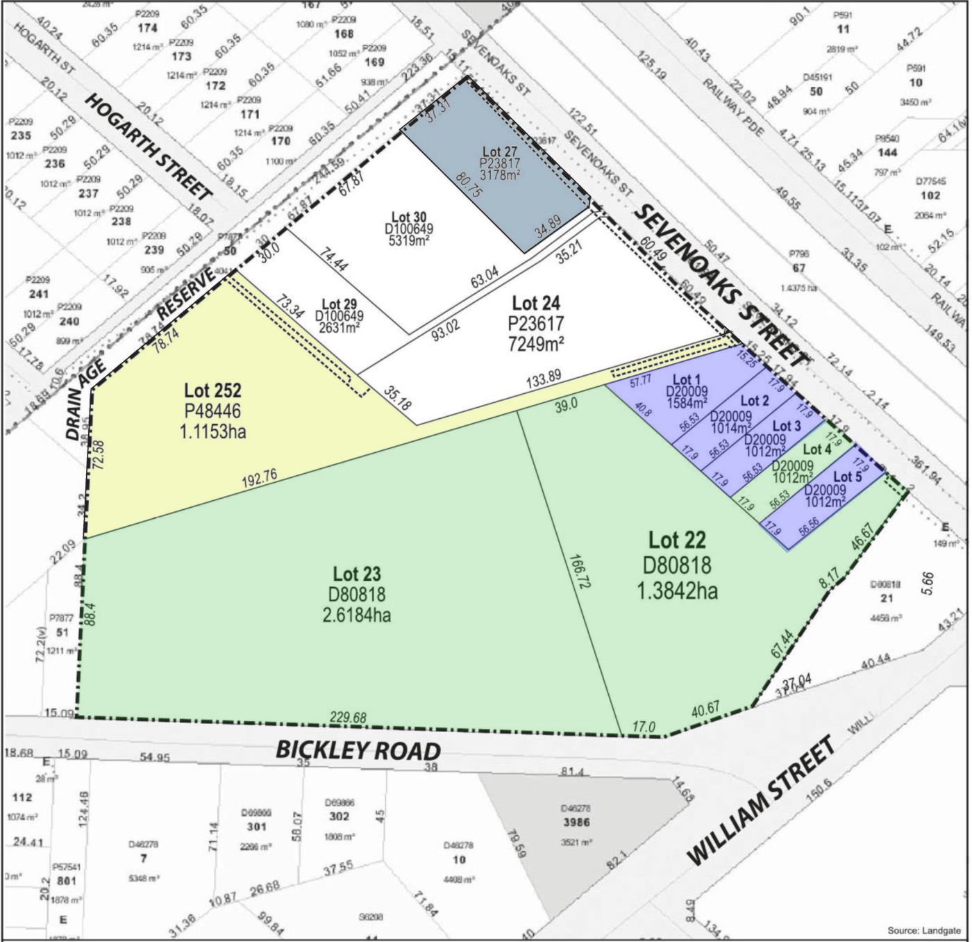
11,153 m² (*approx)
Zoning
Activity Centre R160
Selling Method
For Sale: $7,500,000
DOCUMENTS AVAILABLE
Show All
Prime Commercial Development Opportunity

Welcome to the ultimate investment and residential hub in Beckenham! With easy connectivity to Perth CBD, top shopping centers, schools, and newly developed MetroNet transport links, This site is one of the most diverse opportunities available.

• Zoning & Mixed-Use Opportunities: Zoned as R160 under the City of Gosnells' Activity Centre Plan, supports up to 17-story mixed-use buildings. This high-density zoning maximizes flexibility, enabling residential, commercial, and retail developments.

• Lot Diversity: This lot has many potential uses, from potentially: Storage units to commercial warehouse/offices or the current planned Retirement Living. The opportunities with this lot is endless, and priced from only $600.psqm

• Integrating with the adjoining MetroSeven Development: With over 1,500 homes projected across four phases, MetroSeven offers a complete lifestyle experience, featuring cafes, health facilities, grocery outlets, childcare, and more.

Be part of Perth's largest development, along Perth's main artery of transport, offering some of the most diverse development opportunities seen in many years.

As Perth evolves into a more connected urban landscape, this unparalleled opportunity stands as a ground-breaking investment in WA's future.

Remember to mention you found this property on DevelopmentReady

Read More
Dataroom
Development Potential

389 Sevenoaks Street Development Site Summary

Property Type
Residential, Commercial, Industrial, Mixed Use
Sub-type
Retail/Shopping Centre, Land Site
Land Area
11,153 m² (*approx)
Activity Centre R160
Selling method
For Sale: $7,500,000
DOCUMENTS AVAILABLE
Gain Access

Development Site Highlights

Prime Commercial Development Opportunity

Welcome to the ultimate investment and residential hub in Beckenham! With easy connectivity to Perth CBD, top shopping centers, schools, and newly developed MetroNet transport links, This site is one of the most diverse opportunities available.

• Zoning & Mixed-Use Opportunities: Zoned as R160 under the City of Gosnells' Activity Centre Plan, supports up to 17-story mixed-use buildings. This high-density zoning maximizes flexibility, enabling residential, commercial, and retail developments.

• Lot Diversity: This lot has many potential uses, from potentially: Storage units to commercial warehouse/offices or the current planned Retirement Living. The opportunities with this lot is endless, and priced from only $600.psqm

• Integrating with the adjoining MetroSeven Development: With over 1,500 homes projected across four phases, MetroSeven offers a complete lifestyle experience, featuring cafes, health facilities, grocery outlets, childcare, and more.

Be part of Perth's largest development, along Perth's main artery of transport, offering some of the most diverse development opportunities seen in many years.

As Perth evolves into a more connected urban landscape, this unparalleled opportunity stands as a ground-breaking investment in WA's future.

Remember to mention you found this property on DevelopmentReady

Read More
Dataroom
Development Potential

Property Location of 389 Sevenoaks Street, Beckenham, WA 6107

One moment please.

Retrieving map...

Market Intelligence Report

Developments and amenities within a 5km radius of the asset.

View Full Report - Dataroom
5km radius max
Distance
Asset Type

One moment please.

Retrieving latest data...

5km radius max
Distance
389 Sevenoaks Street, Beckenham, WA 6107 Beckenham
Enquire