Watch Watch
Your home of Development Ready videos
Watch Watch
Back
Sold Check

385-393 Fitzroy Street, Fitzroy

+11 Photos

385-393 Fitzroy Street, Fitzroy

Fitzroy

×
Sold Check
+13 Photos
385-393 Fitzroy Street, Fitzroy

385-393 Fitzroy Street, Fitzroy

Properties / Sold / Victoria / Fitzroy
Development Potential
Property Type
Commercial, Mixed Use
Sub Type
Hotel Sites, Other, Land Site
Land Area
min - 472, max - 472 m² (*approx)
LGA
Yarra City
Selling Method
SOLD:
Show All
SOLD

Strategic Redevelopment Opportunity - Mortgagee Sale


Sutherland Farrelly in conjunction with Nelson Alexander are pleased to present 385-393 Fitzroy Street (Cnr Kerr Street), Fitzroy under instructions from Rodgers Reidy.

Key features include:

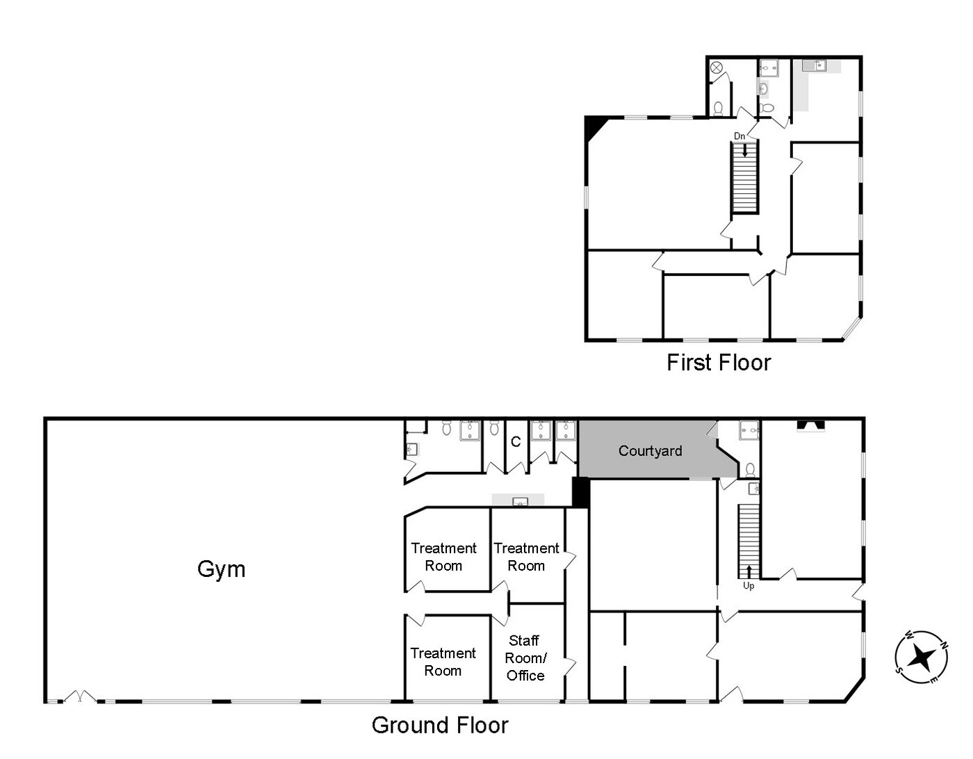
- Land 472 sqm*

- Road frontages 50 metres*

- Zoning Mixed Use

- Existing building area 585 sqm*

- Former Hotel & a separate Fitness Centre

- Partially leased with a redevelopment clause

- Only 100 metres* from Brunswick Street

Mortgagee Sale by Expressions of Interest closing

Wednesday 20 November 2024 at 3:00 pm

For further information, please contact the exclusive conjunctional agents, Sutherland Farrelly and Nelson Alexander.

Nelson Alexander

179 Johnston Street

FITZROY VIC 3065

+613 9417 1956

Luke Chisholm 0439 392 887

*approx.

Read More
Development Potential

Development Site Summary

Property Type
Commercial, Mixed Use
Sub-type
Hotel Sites, Other, Land Site
Land Area
min - 472, max - 472 m² (*approx)
Yarra City
Selling method
SOLD:

Development Site Highlights

SOLD

Strategic Redevelopment Opportunity - Mortgagee Sale


Sutherland Farrelly in conjunction with Nelson Alexander are pleased to present 385-393 Fitzroy Street (Cnr Kerr Street), Fitzroy under instructions from Rodgers Reidy.

Key features include:

- Land 472 sqm*

- Road frontages 50 metres*

- Zoning Mixed Use

- Existing building area 585 sqm*

- Former Hotel & a separate Fitness Centre

- Partially leased with a redevelopment clause

- Only 100 metres* from Brunswick Street

Mortgagee Sale by Expressions of Interest closing

Wednesday 20 November 2024 at 3:00 pm

For further information, please contact the exclusive conjunctional agents, Sutherland Farrelly and Nelson Alexander.

Nelson Alexander

179 Johnston Street

FITZROY VIC 3065

+613 9417 1956

Luke Chisholm 0439 392 887

*approx.

Read More
Development Potential

Finance Calculator

385-393 Fitzroy Street, Fitzroy

Secure/no obligation

Step 1

Loan Variables

Adjust the inputs to explore your indicative finance options.

You can adjust the inputs below by tapping ‘Adjust Variable Inputs’.

Estimated Purchase Price: $x,xxx,xxx
What you intend to pay for the property
Your Contribution: $x,xxx,xxx
The amount you’re investing
LVR: $x,xxx,xxx
Loan to Value Ratio

Estimated Purchase Price:*

What you intend to pay for the property

$

Your Contribution:

The amount you’re investing

Min: 0% - Max: 90% of purchase price.

$

LVR:

Loan to Value Ratio

Min: 10% - Max: 100% of purchase price.

%

Loan Analysis

Estimated Purchase Price:
Your expected purchase price. Final lender valuation may differ and will affect LVR and borrowing.
$x,xxx,xxx
Your Contribution:
Your funds toward the purchase (savings/equity/gift). Does not include costs like duty, legals or LMI.
$xxx,xxx
Loan to Value Ratio:
Calculated as Loan ÷ Price. Guidance only. Lender policy caps vary by property type, location and borrower profile.
xx%
Loan Amount:
Estimated loan based on your inputs. Excludes fees, LMI and costs. Subject to credit assessment and valuation.
in full report
Interest Only: Monthly Repayments
Estimate using interest-only at 5.85% p.a. Excludes fees. Rates can change without notice.
in full report
Principal & Interest: Monthly Repayments
Estimate at 5.85% p.a. over 15 years, monthly compounding. Excludes fees/LMI. Rates may change.
in full report
Stamp Duty: victoria
Indicative rate for victoria. Concessions/exemptions (e.g., first home) may apply and change the amount.
in full report
Stamp Duty Cost:
Estimate only. Check SRO victoria for the latest rules and any concessions that may reduce this figure.
in full report

Property Location of 385-393 Fitzroy Street, Fitzroy

One moment please.

Retrieving map...

Due Diligence

Developments and amenities within a 5km radius of this Commercial opportunity at 385-393 Fitzroy Street, Fitzroy.

Site Report Available

Download your free DistrictData site summary. Make sure you are logged into DevelopmentReady to allow access

Report Contains

  • Site Summary
  • Development Pipeline
  • Recent Transactions
  • Surrounding Amenity
Download Report
Download Report