Watch Watch
Your home of Development Ready videos
Watch Watch
Back
Sold Check

31 Charlotte Street, Bangalow, NSW, 2479

+7 Photos

31 Charlotte Street, Bangalow, NSW, 2479

Bangalow

×
Sold Check
+9 Photos

31 Charlotte Street, Bangalow, NSW, 2479

Bangalow

SOLD
31 Charlotte Street, Bangalow, NSW, 2479

31 Charlotte Street, Bangalow, NSW, 2479

Properties / Sold / New South Wales / Bangalow
Development Approved
Property Type
Residential
Land Area
1,228 m² (*approx)
LGA
Byron Shire Council
Selling Method
SOLD:
Show All

LARGE VIEW LOT NEAR BANGALOW CBD

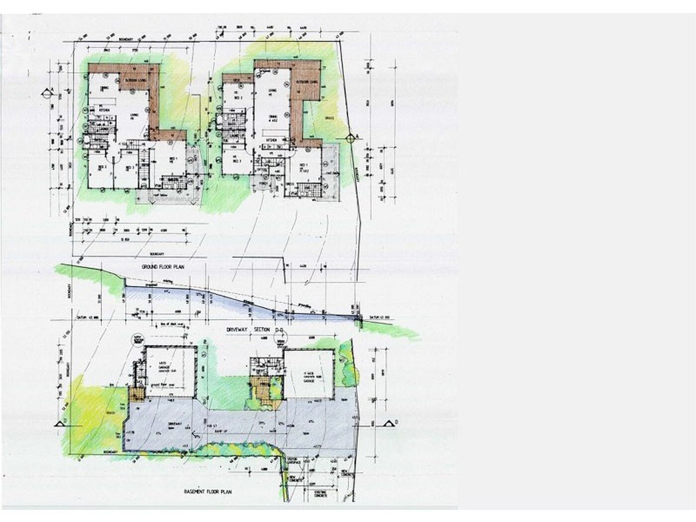
This 1228 m2 lot is located just 600 m from the main street of Bangalow. It has council approved fully engineered plans for two free-standing dwellings designed by renowned architect, Rosalie Stollery and can be further subdivided (STCA) . This property represents an ideal opportunity for a builder or investor. All the hard work and lengthy delays of the council approval process has already been done, so no construction delays! 

Alternatively, it is a great lot to design and build a spacious home with plenty of room for gardens and pool. Stroll to Bangalow cafes, in just five minutes for your morning cuppa! Ring agent for further information or to arrange inspection. The vendor is committed to selling and will consider all offers.The concrete access driveway to the building envelope is already constructed. Elevated position with views of the surrounding farmland, this lot is well positioned on Charlotte Street; Bangalow's premier address.

Remember to mention you found this property on DevelopmentReady

Read More
Development Approved

Development Site Summary

Property Type
Residential
Land Area
1,228 m² (*approx)
Byron Shire Council
Selling method
SOLD:

Development Site Highlights

LARGE VIEW LOT NEAR BANGALOW CBD

This 1228 m2 lot is located just 600 m from the main street of Bangalow. It has council approved fully engineered plans for two free-standing dwellings designed by renowned architect, Rosalie Stollery and can be further subdivided (STCA) . This property represents an ideal opportunity for a builder or investor. All the hard work and lengthy delays of the council approval process has already been done, so no construction delays! 

Alternatively, it is a great lot to design and build a spacious home with plenty of room for gardens and pool. Stroll to Bangalow cafes, in just five minutes for your morning cuppa! Ring agent for further information or to arrange inspection. The vendor is committed to selling and will consider all offers.The concrete access driveway to the building envelope is already constructed. Elevated position with views of the surrounding farmland, this lot is well positioned on Charlotte Street; Bangalow's premier address.

Remember to mention you found this property on DevelopmentReady

Read More
Development Approved

Finance Calculator

31 Charlotte Street, Bangalow, NSW, 2479

Secure/no obligation

Step 1

Loan Variables

Adjust the inputs to explore your indicative finance options.

You can adjust the inputs below by tapping ‘Adjust Variable Inputs’.

Estimated Purchase Price: $x,xxx,xxx
What you intend to pay for the property
Your Contribution: $x,xxx,xxx
The amount you’re investing
LVR: $x,xxx,xxx
Loan to Value Ratio

Estimated Purchase Price:*

What you intend to pay for the property

$

Your Contribution:

The amount you’re investing

Min: 0% - Max: 90% of purchase price.

$

LVR:

Loan to Value Ratio

Min: 10% - Max: 100% of purchase price.

%

Loan Analysis

Estimated Purchase Price:
Your expected purchase price. Final lender valuation may differ and will affect LVR and borrowing.
$x,xxx,xxx
Your Contribution:
Your funds toward the purchase (savings/equity/gift). Does not include costs like duty, legals or LMI.
$xxx,xxx
Loan to Value Ratio:
Calculated as Loan ÷ Price. Guidance only. Lender policy caps vary by property type, location and borrower profile.
xx%
Loan Amount:
Estimated loan based on your inputs. Excludes fees, LMI and costs. Subject to credit assessment and valuation.
in full report
Interest Only: Monthly Repayments
Estimate using interest-only at 5.85% p.a. Excludes fees. Rates can change without notice.
in full report
Principal & Interest: Monthly Repayments
Estimate at 5.85% p.a. over 15 years, monthly compounding. Excludes fees/LMI. Rates may change.
in full report
Stamp Duty: new south wales
Indicative rate for new south wales. Concessions/exemptions (e.g., first home) may apply and change the amount.
in full report
Stamp Duty Cost:
Estimate only. Check SRO new south wales for the latest rules and any concessions that may reduce this figure.
in full report

Property Location

One moment please.

Retrieving map...