Watch Watch
Your home of Development Ready videos
Watch Watch
Back
Sold Check

30 & 30A Brewer Road, Bentleigh VIC

+14 Photos

30 & 30A Brewer Road, Bentleigh VIC

Bentleigh

×
Sold Check
+16 Photos
30 & 30A Brewer Road, Bentleigh VIC

30 & 30A Brewer Road, Bentleigh VIC

Properties / Sold / Victoria / Bentleigh
Development Potential
Property Type
Commercial
Sub Type
Office, Retail/Shopping Centre
Land Area
581 sqm (*approx)
Zoning
CZ1
LGA
Glen Eira City
Selling Method
$AUD:
Show All
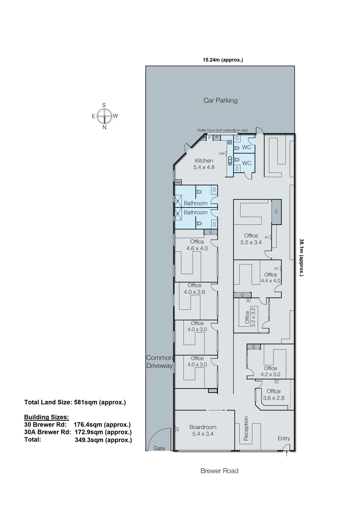
Rare 349sqm Office on 581sqm on the Brighton East Border (approx.) | Appealing Development Opportunity
  • Double-Fronted Offices
  • 9 Individual Offices
  • Fully-appointed Lunch Room

Occupy, invest, develop when the time is right, this prime approx 349sqm double-fronted office on approx 581sqm is the upscale base your business needs today.... with excellent upside for tomorrow - you could even consider a multi-storey development on the site (STCA), the options are endless! On the border of Brighton East in a blue-chip residential locale, this high-quality office is positioned for success on a boutique cafe strip.


Offering a rare opportunity to secure substantial single-level office space with double shopfront presence, the premises provide a total of 9 fully-enclosed offices with spacious reception and meeting-room, 2 full bathrooms plus 2 WC’s, a lunch-room with fully-appointed stone-finish kitchen (with espresso machine and Zip chill/boil tap,) and a sizeable storage room.


With individual reverse-cycle climate-control for almost every room, skylights for most spaces, and dual blinds for many windows, the property is secured by an alarm, and resourced with up to 6 carspaces in a rear lot. Configured with 2 rows of office space and amenities on both sides of the building, there’s room to grow business, scope to divide the premises as 2 separate investments, and enormous upside when extended or redeveloped for mixed retail and residential use (Subject to Council Approval).


Neighbouring the area’s most popular primary school, aged care and medical centres, this rare commercial position puts business in reach of a well-resourced clientele, with easy access to Centre Rd’s shops and transport, Brighton’s Church St and Bay St retail strips ...with the CBD just 25 minutes away. For more information about this rare office opportunity contact Adam Gillon at Buxton Hampton East on 0418 313 354

Read More
Development Potential

30 & 30A Brewer Road Development Site Summary

Property Type
Commercial
Sub-type
Office, Retail/Shopping Centre
Land Area
581 sqm (*approx)
Glen Eira City
Selling method
$AUD:

Development Site Highlights

Rare 349sqm Office on 581sqm on the Brighton East Border (approx.) | Appealing Development Opportunity
  • Double-Fronted Offices
  • 9 Individual Offices
  • Fully-appointed Lunch Room

Occupy, invest, develop when the time is right, this prime approx 349sqm double-fronted office on approx 581sqm is the upscale base your business needs today.... with excellent upside for tomorrow - you could even consider a multi-storey development on the site (STCA), the options are endless! On the border of Brighton East in a blue-chip residential locale, this high-quality office is positioned for success on a boutique cafe strip.


Offering a rare opportunity to secure substantial single-level office space with double shopfront presence, the premises provide a total of 9 fully-enclosed offices with spacious reception and meeting-room, 2 full bathrooms plus 2 WC’s, a lunch-room with fully-appointed stone-finish kitchen (with espresso machine and Zip chill/boil tap,) and a sizeable storage room.


With individual reverse-cycle climate-control for almost every room, skylights for most spaces, and dual blinds for many windows, the property is secured by an alarm, and resourced with up to 6 carspaces in a rear lot. Configured with 2 rows of office space and amenities on both sides of the building, there’s room to grow business, scope to divide the premises as 2 separate investments, and enormous upside when extended or redeveloped for mixed retail and residential use (Subject to Council Approval).


Neighbouring the area’s most popular primary school, aged care and medical centres, this rare commercial position puts business in reach of a well-resourced clientele, with easy access to Centre Rd’s shops and transport, Brighton’s Church St and Bay St retail strips ...with the CBD just 25 minutes away. For more information about this rare office opportunity contact Adam Gillon at Buxton Hampton East on 0418 313 354

Read More
Development Potential

Finance Calculator

30 & 30A Brewer Road, Bentleigh VIC

Secure/no obligation

Step 1

Loan Variables

Adjust the inputs to explore your indicative finance options.

You can adjust the inputs below by tapping ‘Adjust Variable Inputs’.

Estimated Purchase Price: $x,xxx,xxx
What you intend to pay for the property
Your Contribution: $x,xxx,xxx
The amount you’re investing
LVR: $x,xxx,xxx
Loan to Value Ratio

Estimated Purchase Price:*

What you intend to pay for the property

$

Your Contribution:

The amount you’re investing

Min: 0% - Max: 90% of purchase price.

$

LVR:

Loan to Value Ratio

Min: 10% - Max: 100% of purchase price.

%

Loan Analysis

Estimated Purchase Price:
Your expected purchase price. Final lender valuation may differ and will affect LVR and borrowing.
$x,xxx,xxx
Your Contribution:
Your funds toward the purchase (savings/equity/gift). Does not include costs like duty, legals or LMI.
$xxx,xxx
Loan to Value Ratio:
Calculated as Loan ÷ Price. Guidance only. Lender policy caps vary by property type, location and borrower profile.
xx%
Loan Amount:
Estimated loan based on your inputs. Excludes fees, LMI and costs. Subject to credit assessment and valuation.
in full report
Interest Only: Monthly Repayments
Estimate using interest-only at 5.85% p.a. Excludes fees. Rates can change without notice.
in full report
Principal & Interest: Monthly Repayments
Estimate at 5.85% p.a. over 15 years, monthly compounding. Excludes fees/LMI. Rates may change.
in full report
Stamp Duty: victoria
Indicative rate for victoria. Concessions/exemptions (e.g., first home) may apply and change the amount.
in full report
Stamp Duty Cost:
Estimate only. Check SRO victoria for the latest rules and any concessions that may reduce this figure.
in full report

Property Location of 30 & 30A Brewer Road, Bentleigh VIC

One moment please.

Retrieving map...

Due Diligence

Developments and amenities within a 5km radius of this Commercial opportunity at 30 & 30A Brewer Road, Bentleigh VIC.

Site Report Available

Download your free DistrictData site summary. Make sure you are logged into DevelopmentReady to allow access

Report Contains

  • Site Summary
  • Development Pipeline
  • Recent Transactions
  • Surrounding Amenity
Download Report
Download Report
30 & 30A Brewer Road, Bentleigh VIC Bentleigh