Support Support
Your hub for guides, tutorials and product support
Support Support
Back
Sold Check

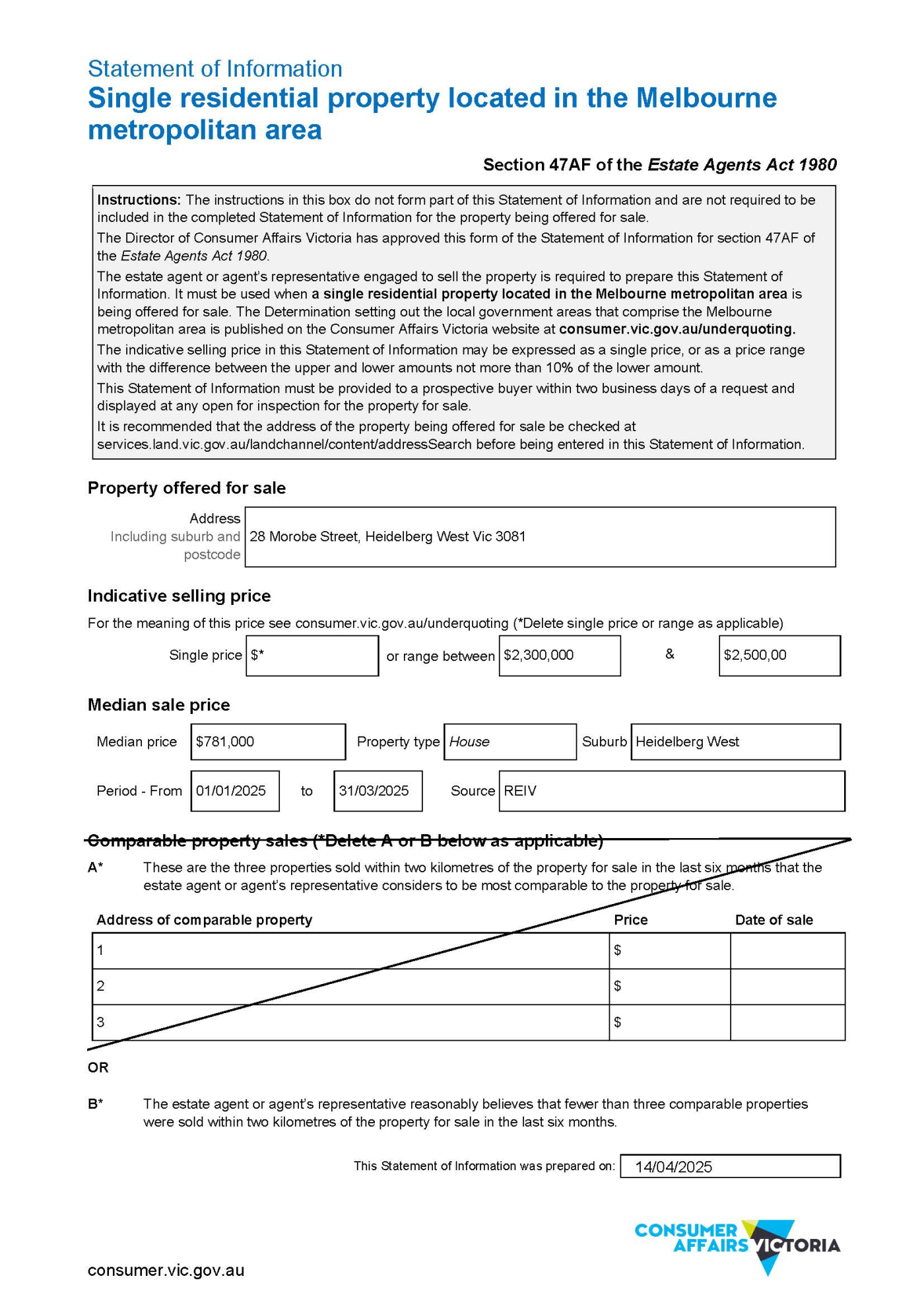
28 Morobe Street, Heidelberg West, VIC 3081

+11 Photos

28 Morobe Street, Heidelberg West, VIC 3081

Heidelberg West

×
Sold Check
+13 Photos

28 Morobe Street, Heidelberg West, VIC 3081

Heidelberg West

SOLD
28 Morobe Street, Heidelberg West, VIC 3081

28 Morobe Street, Heidelberg West, VIC 3081

Properties / Sold / Victoria / Heidelberg West
Development Potential
Property Type
Residential
Sub Type
Townhouse Sites, Land Site
Land Area
2,551 m² (*approx)
Zoning
GRZ1
LGA
Banyule City
Selling Method
EOI: Contact Agent
EOI Closing Date
14 May 2025 03:00PM
Show All
Dual Fronted Development Opportunity Well Suited to a Number of End Uses (STCA)

***OFFERS UNDER REVIEW***

Gross Waddell ICR is pleased to present this substantial development opportunity, located in the heart of Heidelberg West, offering exceptional potential for developers, special-use projects, and owner-occupiers alike.

Property highlights include:

- Large infill landholding of 2,551 sqm*

- Frontage to both Morobe and Catalina Streets totalling 78m*

- General Residential Zoning (GRZ1) ideal for a number of development outcomes including new homes sites, town houses and more (STCA)

- May suit non-residential uses such as childcare, religious and medical (STCA)

- Close to key amenities such as transport links, major road networks, Northland Shopping Centre and Latrobe University ensuring strong future demand

For Sale via Expressions of Interest closing Wednesday 14th May 2025 at 3pm (AEST).

For further information, please contact the exclusive sales agents from Gross Waddell ICR.

* Approximate

STCA – Subject to Council Approval

Remember to mention you found this property on DevelopmentReady

Read More
Development Potential

28 Morobe Street Development Site Summary

Property Type
Residential
Sub-type
Townhouse Sites, Land Site
Land Area
2,551 m² (*approx)
GRZ1
Banyule City
Selling method
EOI: Contact Agent
EOI Closing Date
14 May 2025 03:00PM

Development Site Highlights

Dual Fronted Development Opportunity Well Suited to a Number of End Uses (STCA)

***OFFERS UNDER REVIEW***

Gross Waddell ICR is pleased to present this substantial development opportunity, located in the heart of Heidelberg West, offering exceptional potential for developers, special-use projects, and owner-occupiers alike.

Property highlights include:

- Large infill landholding of 2,551 sqm*

- Frontage to both Morobe and Catalina Streets totalling 78m*

- General Residential Zoning (GRZ1) ideal for a number of development outcomes including new homes sites, town houses and more (STCA)

- May suit non-residential uses such as childcare, religious and medical (STCA)

- Close to key amenities such as transport links, major road networks, Northland Shopping Centre and Latrobe University ensuring strong future demand

For Sale via Expressions of Interest closing Wednesday 14th May 2025 at 3pm (AEST).

For further information, please contact the exclusive sales agents from Gross Waddell ICR.

* Approximate

STCA – Subject to Council Approval

Remember to mention you found this property on DevelopmentReady

Read More
Development Potential

Finance Calculator

28 Morobe Street, Heidelberg West, VIC 3081

Secure/no obligation

Step 1

Loan Variables

Adjust the inputs to explore your indicative finance options.

You can adjust the inputs below by tapping ‘Adjust Variable Inputs’.

Estimated Purchase Price: $x,xxx,xxx
What you intend to pay for the property
Your Contribution: $x,xxx,xxx
The amount you’re investing
LVR: $x,xxx,xxx
Loan to Value Ratio

Estimated Purchase Price:*

What you intend to pay for the property

$

Your Contribution:

The amount you’re investing

Min: 0% - Max: 90% of purchase price.

$

LVR:

Loan to Value Ratio

Min: 10% - Max: 100% of purchase price.

%

Loan Analysis

Estimated Purchase Price:
Your expected purchase price. Final lender valuation may differ and will affect LVR and borrowing.
$x,xxx,xxx
Your Contribution:
Your funds toward the purchase (savings/equity/gift). Does not include costs like duty, legals or LMI.
$xxx,xxx
Loan to Value Ratio:
Calculated as Loan ÷ Price. Guidance only. Lender policy caps vary by property type, location and borrower profile.
xx%
Loan Amount:
Estimated loan based on your inputs. Excludes fees, LMI and costs. Subject to credit assessment and valuation.
in full report
Interest Only: Monthly Repayments
Estimate using interest-only at 5.85% p.a. Excludes fees. Rates can change without notice.
in full report
Principal & Interest: Monthly Repayments
Estimate at 5.85% p.a. over 15 years, monthly compounding. Excludes fees/LMI. Rates may change.
in full report
Stamp Duty: victoria
Indicative rate for victoria. Concessions/exemptions (e.g., first home) may apply and change the amount.
in full report
Stamp Duty Cost:
Estimate only. Check SRO victoria for the latest rules and any concessions that may reduce this figure.
in full report

Property Location of 28 Morobe Street, Heidelberg West, VIC 3081

One moment please.

Retrieving map...

Due Diligence

Developments and amenities within a 5km radius of this Residential opportunity at 28 Morobe Street, Heidelberg West, VIC 3081.

Site Report Available

Download your free DistrictData site summary. Make sure you are logged into DevelopmentReady to allow access

Report Contains

  • Site Summary
  • Development Pipeline
  • Recent Transactions
  • Surrounding Amenity
Download Report
Download Report
28 Morobe Street, Heidelberg West, VIC 3081 Heidelberg West
Gross Waddell ICR
Gross Waddell ICR
Level 1, 30 Collins Street, Melbourne VIC 3000