Watch Watch
Your home of Development Ready videos
Watch Watch
Back

Lot, Yatara, 25 Shearsby Crescent, Yass, NSW 2582

+13 Photos

Lot, Yatara, 25 Shearsby Crescent, Yass, NSW 2582

Yass

×
+15 Photos
Lot, Yatara, 25 Shearsby Crescent, Yass, NSW 2582

Lot, Yatara, 25 Shearsby Crescent, Yass, NSW 2582

Properties / Buy / New South Wales / Yass
Development Potential
Property Type
Residential
Land Area
1,954,500 m² (*approx)
LGA
Yass Valley Council
Selling Method
EOI: Ask Agent - Expression of Interest
EOI Closing Date
27 May 2026 03:00PM
Show All
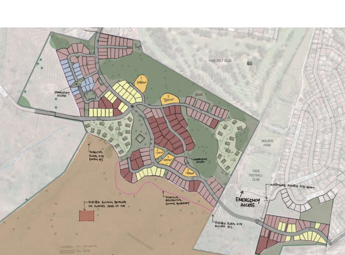
195ha Residential Subdivision Site - Yatara, Yass NSW
  • Over 256 potential dwellings in concept
  • 195Ha of land available
  • 46 Ha of R1 zoned residential land

Civium Property Group, in conjunction with Johns & Co., are excited to present this unbeatable residential subdivision development opportunity on the southern side of Yass. Yatara comprises of three blocks:

• Lot 5 – which comprises of 126.81 Ha of C4-zoned land, 42.49 Ha of R1-zoned residential developable land and 6 Ha of R5 large lot residential.

• Lot 4 – comprising of 15.29 Ha of R5-zoned land.

• Lot 104 – comprising of 4.85 Ha of R1 and RE1 land.

The R1-zoned (residential) land is elevated with a northerly aspect and includes open areas with views across Yass. The C4-zoned portion is mostly cleared and contains timbered woodland across approximately 126.81 hectares.

The site adjoins a range of local uses: an electrical substation to the south, Walker Park to the east, Yass Golf Course to the north and rural residential land to the west. The land adjoining Yass Golf Club is zoned for, and would be the ideal setting for, residential land subdivision and development.

A current concept plan outlines the potential for residential development across the main parent lot (Lot 5) and other R1‑zoned areas. The plan suggests around 256 dwellings made up of standard residential lots, cluster housing and possible medium‑density options within a community‑title layout. There is also the possibility of incorporating adjoining land to increase the overall development area and dwelling yield. There are over 200 single title residential blocks in this initial concept.

A current concept plan for the potential development suggests around 256 dwellings made up of standard residential lots, cluster housing and possible medium-density options within a community-title layout. There is also the possibility of incorporating adjoining land to increase

the overall development area and dwelling yield. There are over 200 single title residential blocks in this initial concept.

As Canberra’s appetite for detached housing continues to grow and available land becomes increasingly limited, buyers are looking beyond the city for space, value, and lifestyle. Yass has emerged as a natural choice; a thriving regional centre benefiting from its proximity to the Capital. The future duplication of the Barton Highway will reduce travel times for commuters.

Yatara offers developers a rare chance to shape the future of this growing region and contribute to the next chapter of the Capital Region’s residential expansion.

This development opportunity is offered for sale by Expressions of Interest, closing 3pm 27 May 2026. For more information, or to arrange a site visit, contact:

Andrew Smith - [email protected] 0409 600 471

Dominic Johns - [email protected] 0481 211 767

Remember to mention you found this property on DevelopmentReady

Read More
Development Potential

25 Shearsby Crescent Development Site Summary

Property Type
Residential
Land Area
1,954,500 m² (*approx)
Yass Valley Council
Selling method
EOI: Ask Agent - Expression of Interest
EOI Closing Date
27 May 2026 03:00PM

Development Site Highlights

195ha Residential Subdivision Site - Yatara, Yass NSW
  • Over 256 potential dwellings in concept
  • 195Ha of land available
  • 46 Ha of R1 zoned residential land

Civium Property Group, in conjunction with Johns & Co., are excited to present this unbeatable residential subdivision development opportunity on the southern side of Yass. Yatara comprises of three blocks:

• Lot 5 – which comprises of 126.81 Ha of C4-zoned land, 42.49 Ha of R1-zoned residential developable land and 6 Ha of R5 large lot residential.

• Lot 4 – comprising of 15.29 Ha of R5-zoned land.

• Lot 104 – comprising of 4.85 Ha of R1 and RE1 land.

The R1-zoned (residential) land is elevated with a northerly aspect and includes open areas with views across Yass. The C4-zoned portion is mostly cleared and contains timbered woodland across approximately 126.81 hectares.

The site adjoins a range of local uses: an electrical substation to the south, Walker Park to the east, Yass Golf Course to the north and rural residential land to the west. The land adjoining Yass Golf Club is zoned for, and would be the ideal setting for, residential land subdivision and development.

A current concept plan outlines the potential for residential development across the main parent lot (Lot 5) and other R1‑zoned areas. The plan suggests around 256 dwellings made up of standard residential lots, cluster housing and possible medium‑density options within a community‑title layout. There is also the possibility of incorporating adjoining land to increase the overall development area and dwelling yield. There are over 200 single title residential blocks in this initial concept.

A current concept plan for the potential development suggests around 256 dwellings made up of standard residential lots, cluster housing and possible medium-density options within a community-title layout. There is also the possibility of incorporating adjoining land to increase

the overall development area and dwelling yield. There are over 200 single title residential blocks in this initial concept.

As Canberra’s appetite for detached housing continues to grow and available land becomes increasingly limited, buyers are looking beyond the city for space, value, and lifestyle. Yass has emerged as a natural choice; a thriving regional centre benefiting from its proximity to the Capital. The future duplication of the Barton Highway will reduce travel times for commuters.

Yatara offers developers a rare chance to shape the future of this growing region and contribute to the next chapter of the Capital Region’s residential expansion.

This development opportunity is offered for sale by Expressions of Interest, closing 3pm 27 May 2026. For more information, or to arrange a site visit, contact:

Andrew Smith - [email protected] 0409 600 471

Dominic Johns - [email protected] 0481 211 767

Remember to mention you found this property on DevelopmentReady

Read More
Development Potential

Finance Calculator

Lot, Yatara, 25 Shearsby Crescent, Yass, NSW 2582

Secure/no obligation

Step 1

Loan Variables

Adjust the inputs to explore your indicative finance options.

You can adjust the inputs below by tapping ‘Adjust Variable Inputs’.

Estimated Purchase Price: $x,xxx,xxx
What you intend to pay for the property
Your Contribution: $x,xxx,xxx
The amount you’re investing
LVR: $x,xxx,xxx
Loan to Value Ratio

Estimated Purchase Price:*

What you intend to pay for the property

$

Your Contribution:

The amount you’re investing

Min: 0% - Max: 90% of purchase price.

$

LVR:

Loan to Value Ratio

Min: 10% - Max: 100% of purchase price.

%

Loan Analysis

Estimated Purchase Price:
Your expected purchase price. Final lender valuation may differ and will affect LVR and borrowing.
$x,xxx,xxx
Your Contribution:
Your funds toward the purchase (savings/equity/gift). Does not include costs like duty, legals or LMI.
$xxx,xxx
Loan to Value Ratio:
Calculated as Loan ÷ Price. Guidance only. Lender policy caps vary by property type, location and borrower profile.
xx%
Loan Amount:
Estimated loan based on your inputs. Excludes fees, LMI and costs. Subject to credit assessment and valuation.
in full report
Interest Only: Monthly Repayments
Estimate using interest-only at 5.85% p.a. Excludes fees. Rates can change without notice.
in full report
Principal & Interest: Monthly Repayments
Estimate at 5.85% p.a. over 15 years, monthly compounding. Excludes fees/LMI. Rates may change.
in full report
Stamp Duty: new south wales
Indicative rate for new south wales. Concessions/exemptions (e.g., first home) may apply and change the amount.
in full report
Stamp Duty Cost:
Estimate only. Check SRO new south wales for the latest rules and any concessions that may reduce this figure.
in full report

Property Location of Lot, Yatara, 25 Shearsby Crescent, Yass, NSW 2582

One moment please.

Retrieving map...

Due Diligence

Site Report Available

Download your free DistrictData site summary. Make sure you are logged into DevelopmentReady to allow access

Report Contains

  • Site Summary
  • Development Pipeline
  • Recent Transactions
  • Surrounding Amenity
Download Report
Download Report
Lot, Yatara, 25 Shearsby Crescent, Yass, NSW 2582 Yass
Civium Property Group – Commercial
Civium Property Group – Commercial
3, Lonsdale Street, Braddon, Australian Capital Territory, Australia, 2612
Enquire