Watch Watch
Your home of Development Ready videos
Watch Watch
Back
Sold Check

231 Barkly Street, Fitzroy North, VIC, 3068

+5 Photos

231 Barkly Street, Fitzroy North, VIC, 3068

Fitzroy North

×
Sold Check
+7 Photos

231 Barkly Street, Fitzroy North, VIC, 3068

Fitzroy North

SOLD
231 Barkly Street, Fitzroy North, VIC, 3068

231 Barkly Street, Fitzroy North, VIC, 3068

Properties / Sold / Victoria / Fitzroy North
Development Approved
Property Type
Residential
Sub Type
Townhouse Sites, House
Land Area
231 m² (*approx)
Selling Method
For Sale: Contact Agent
Show All
Vacant Block With Approved Plans

An outstanding opportunity in a location that puts Fitzroy North Village, local cafes, transport, Merri Creek and Capital City bike trails at your door, this 231m2 (approx.) allotment comes with approved plans for two state-of-the-art contemporary dwellings. Another option would be to put a single dwelling on the site with easy access for development.

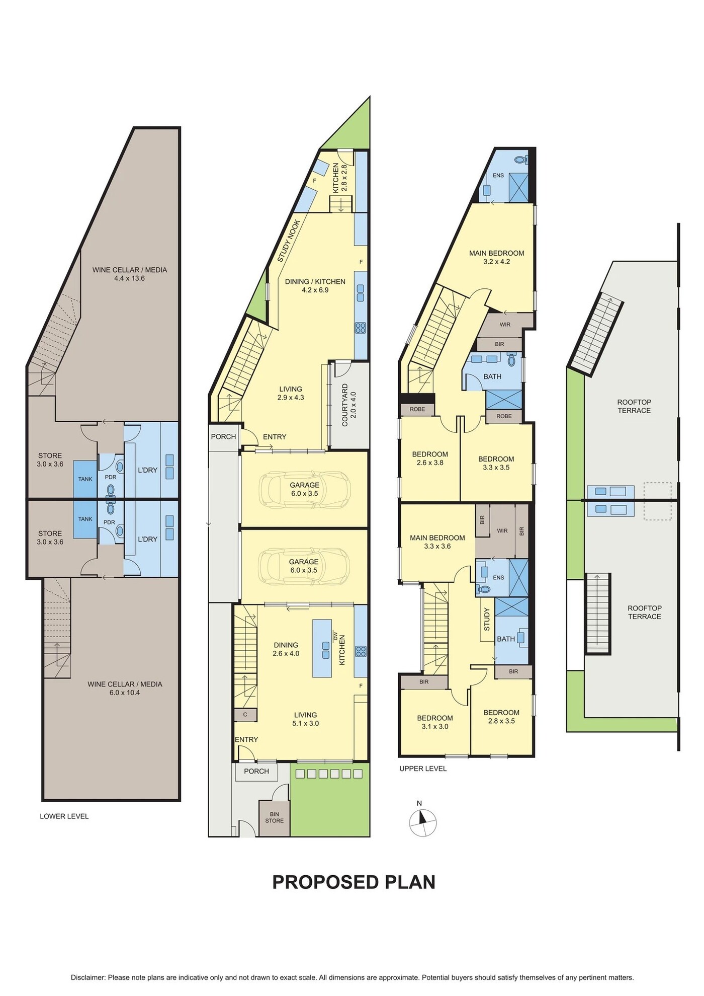
A clean slate that is currently a carpark, this singular offering holds fabulous appeal for the astute buyer or developer with plans for two designer homes arranged over four expansive levels. Each dwelling comprises three bedrooms with robes, two bathrooms, master with a walk-in robe and ensuite, spacious open plan living with designer kitchens, media and store rooms that might make an ideal cellar plus a garage and expansive entertainers rooftop with panoramic views.

Offering a low-maintenance inner-city lifestyle near Edinburgh Park, Brunswick and Smith Street shopping and entertainment precincts, Merri Creek parklands, transport and highly-regarded schools zoned to Northcote High, it presents a premier opportunity in a location that will be difficult to resist.

* Please note the images are for illustrative purposes only*

Read More
Development Approved

231 Barkly Street Development Site Summary

Property Type
Residential
Sub-type
Townhouse Sites, House
Land Area
231 m² (*approx)
Selling method
For Sale: Contact Agent

Development Site Highlights

Vacant Block With Approved Plans

An outstanding opportunity in a location that puts Fitzroy North Village, local cafes, transport, Merri Creek and Capital City bike trails at your door, this 231m2 (approx.) allotment comes with approved plans for two state-of-the-art contemporary dwellings. Another option would be to put a single dwelling on the site with easy access for development.

A clean slate that is currently a carpark, this singular offering holds fabulous appeal for the astute buyer or developer with plans for two designer homes arranged over four expansive levels. Each dwelling comprises three bedrooms with robes, two bathrooms, master with a walk-in robe and ensuite, spacious open plan living with designer kitchens, media and store rooms that might make an ideal cellar plus a garage and expansive entertainers rooftop with panoramic views.

Offering a low-maintenance inner-city lifestyle near Edinburgh Park, Brunswick and Smith Street shopping and entertainment precincts, Merri Creek parklands, transport and highly-regarded schools zoned to Northcote High, it presents a premier opportunity in a location that will be difficult to resist.

* Please note the images are for illustrative purposes only*

Read More
Development Approved

Finance Calculator

231 Barkly Street, Fitzroy North, VIC, 3068

Secure/no obligation

Step 1

Loan Variables

Adjust the inputs to explore your indicative finance options.

You can adjust the inputs below by tapping ‘Adjust Variable Inputs’.

Estimated Purchase Price: $x,xxx,xxx
What you intend to pay for the property
Your Contribution: $x,xxx,xxx
The amount you’re investing
LVR: $x,xxx,xxx
Loan to Value Ratio

Estimated Purchase Price:*

What you intend to pay for the property

$

Your Contribution:

The amount you’re investing

Min: 0% - Max: 90% of purchase price.

$

LVR:

Loan to Value Ratio

Min: 10% - Max: 100% of purchase price.

%

Loan Analysis

Estimated Purchase Price:
Your expected purchase price. Final lender valuation may differ and will affect LVR and borrowing.
$x,xxx,xxx
Your Contribution:
Your funds toward the purchase (savings/equity/gift). Does not include costs like duty, legals or LMI.
$xxx,xxx
Loan to Value Ratio:
Calculated as Loan ÷ Price. Guidance only. Lender policy caps vary by property type, location and borrower profile.
xx%
Loan Amount:
Estimated loan based on your inputs. Excludes fees, LMI and costs. Subject to credit assessment and valuation.
in full report
Interest Only: Monthly Repayments
Estimate using interest-only at 5.85% p.a. Excludes fees. Rates can change without notice.
in full report
Principal & Interest: Monthly Repayments
Estimate at 5.85% p.a. over 15 years, monthly compounding. Excludes fees/LMI. Rates may change.
in full report
Stamp Duty: victoria
Indicative rate for victoria. Concessions/exemptions (e.g., first home) may apply and change the amount.
in full report
Stamp Duty Cost:
Estimate only. Check SRO victoria for the latest rules and any concessions that may reduce this figure.
in full report

Property Location of 231 Barkly Street, Fitzroy North, VIC, 3068

One moment please.

Retrieving map...

Due Diligence

Site Report Available

Download your free DistrictData site summary. Make sure you are logged into DevelopmentReady to allow access

Report Contains

  • Site Summary
  • Development Pipeline
  • Recent Transactions
  • Surrounding Amenity
Download Report
Download Report