Watch Watch
Your home of Development Ready videos
Watch Watch
Back
Sold Check

22 Allison Circuit, Oran Park, NSW, 2570

+5 Photos

22 Allison Circuit, Oran Park, NSW, 2570

Oran Park

×
Sold Check
+7 Photos

22 Allison Circuit, Oran Park, NSW, 2570

Oran Park

SOLD
22 Allison Circuit, Oran Park, NSW, 2570

22 Allison Circuit, Oran Park, NSW, 2570

Properties / Sold / New South Wales / Oran Park
Development Approved
Property Type
Residential
Land Area
540 m² (*approx)
LGA
Camden Council
Selling Method
For Sale: $540,000
Show All

LETS TALK ABOUT THIS DA APPROVED DUPLEX SITE

Take the opportunity to capitalise on this DA approved duplex site, located within in the ultra-convenient area of Oran Park with a short drive to Oran Park shopping centre, schools and family parks,

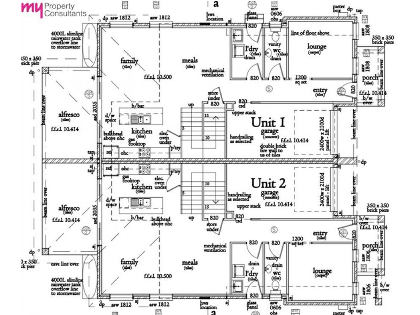
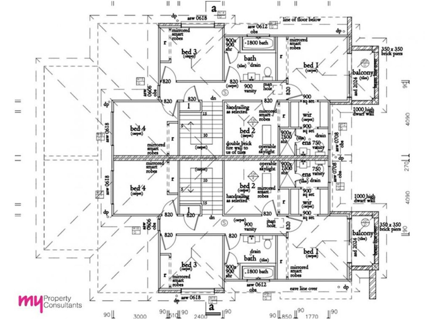
The hard work has been done with a DA in place for two large double story duplexes, each containing 4 bedrooms, 2.5 bathrooms and a single car garage. All that is left to do is buy, build and enjoy the profit. 

  • 540sqm block being split into 270sqm blocks
  • Approval for two 4 bedroom duplexes with 2.5 bathrooms
  • Versatile floor plan with multiple living area and alfresco area
  • Walk-in wardrobe and ensuite to the main bathroom
  • The plans and position ensures great re-sale prices

Perfect either for a developer, 2 family members or friends wanting to live close to each other or an astute investor who knows a fantastic proposition when they see it.

Contact Shannon McDonnell on 0434900224 for further information

Remember to mention you found this property on DevelopmentReady

Read More
Development Approved

22 Allison Circuit Development Site Summary

Property Type
Residential
Land Area
540 m² (*approx)
Camden Council
Selling method
For Sale: $540,000

Development Site Highlights

LETS TALK ABOUT THIS DA APPROVED DUPLEX SITE

Take the opportunity to capitalise on this DA approved duplex site, located within in the ultra-convenient area of Oran Park with a short drive to Oran Park shopping centre, schools and family parks,

The hard work has been done with a DA in place for two large double story duplexes, each containing 4 bedrooms, 2.5 bathrooms and a single car garage. All that is left to do is buy, build and enjoy the profit. 

  • 540sqm block being split into 270sqm blocks
  • Approval for two 4 bedroom duplexes with 2.5 bathrooms
  • Versatile floor plan with multiple living area and alfresco area
  • Walk-in wardrobe and ensuite to the main bathroom
  • The plans and position ensures great re-sale prices

Perfect either for a developer, 2 family members or friends wanting to live close to each other or an astute investor who knows a fantastic proposition when they see it.

Contact Shannon McDonnell on 0434900224 for further information

Remember to mention you found this property on DevelopmentReady

Read More
Development Approved

Finance Calculator

22 Allison Circuit, Oran Park, NSW, 2570

Secure/no obligation

Step 1

Loan Variables

Adjust the inputs to explore your indicative finance options.

You can adjust the inputs below by tapping ‘Adjust Variable Inputs’.

Estimated Purchase Price: $x,xxx,xxx
What you intend to pay for the property
Your Contribution: $x,xxx,xxx
The amount you’re investing
LVR: $x,xxx,xxx
Loan to Value Ratio

Estimated Purchase Price:*

What you intend to pay for the property

$

Your Contribution:

The amount you’re investing

Min: 0% - Max: 90% of purchase price.

$

LVR:

Loan to Value Ratio

Min: 10% - Max: 100% of purchase price.

%

Loan Analysis

Estimated Purchase Price:
Your expected purchase price. Final lender valuation may differ and will affect LVR and borrowing.
$x,xxx,xxx
Your Contribution:
Your funds toward the purchase (savings/equity/gift). Does not include costs like duty, legals or LMI.
$xxx,xxx
Loan to Value Ratio:
Calculated as Loan ÷ Price. Guidance only. Lender policy caps vary by property type, location and borrower profile.
xx%
Loan Amount:
Estimated loan based on your inputs. Excludes fees, LMI and costs. Subject to credit assessment and valuation.
in full report
Interest Only: Monthly Repayments
Estimate using interest-only at 5.85% p.a. Excludes fees. Rates can change without notice.
in full report
Principal & Interest: Monthly Repayments
Estimate at 5.85% p.a. over 15 years, monthly compounding. Excludes fees/LMI. Rates may change.
in full report
Stamp Duty: new south wales
Indicative rate for new south wales. Concessions/exemptions (e.g., first home) may apply and change the amount.
in full report
Stamp Duty Cost:
Estimate only. Check SRO new south wales for the latest rules and any concessions that may reduce this figure.
in full report

Property Location of 22 Allison Circuit, Oran Park, NSW, 2570

One moment please.

Retrieving map...

Due Diligence

Developments and amenities within a 5km radius of this Residential opportunity at 22 Allison Circuit, Oran Park, NSW, 2570.

Site Report Available

Download your free DistrictData site summary. Make sure you are logged into DevelopmentReady to allow access

Report Contains

  • Site Summary
  • Development Pipeline
  • Recent Transactions
  • Surrounding Amenity
Download Report
Download Report