Watch Watch
Your home of Development Ready videos
Watch Watch
Back

21 Wadda Mooli Parkway, Julago, QLD 4816

+11 Photos

21 Wadda Mooli Parkway, Julago, QLD 4816

Julago

×
+13 Photos
21 Wadda Mooli Parkway, Julago, QLD 4816

21 Wadda Mooli Parkway, Julago, QLD 4816

Properties / Buy / Queensland / Julago
Development Potential
Property Type
Health/Medical, Mixed Use
Sub Type
Other, Land Site
Land Area
7.49 hectares (*approx)
LGA
Townsville City
Selling Method
EOI: Expressions of interest
Show All
Development Opportunity for Neighbourhood Centre & School Site within Master Planned Community "Elliot Springs"

Ray White Commercial Townsville are seeking expressions of interest for multiple commercial sites within the Elliot Springs Master Planned Community.

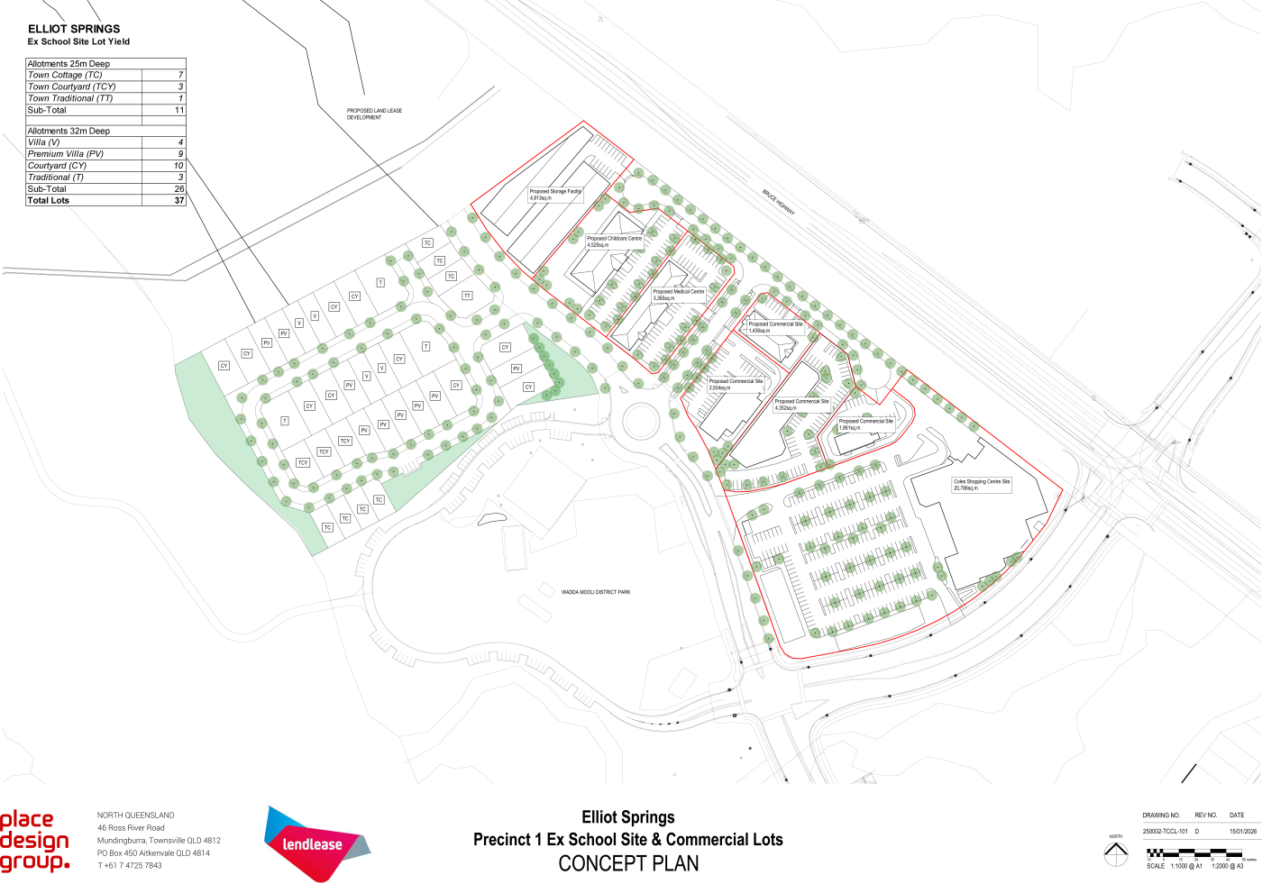
There are 2 sites available with one proposed as a designated school site of 3.565Ha and the other is a mixed use 3.165Ha neighbourhood centre with 296m frontage to the Bruce Highway. The neighbourhood centre site allows for the flexibility to be subdivided and sold into smaller lot configurations.

Elliot Springs is located 15 km from the CBD on the Bruce Highway, Elliot Springs is Townsville's largest master planned community just a short drive from Fairfield Central and the Murray Sports Complex. The project comprises of 1,609 hectares with proposed population to over 26,000 people or 10,000 residential dwellings upon completion, circa 2050.

• Elliot Springs has achieved 419 sales and 356 settlements as of 18 November 2024. (415 residential sales and 4 commercial sale)

• There are now 295 homes occupied (approximately 737 residents) with a further 35 homes under construction.

• A further 51 residential lots are under construction in Whites Creek Stages 37 to 40 and are ready for title at the end of this month.

• The BP petrol service station has been in operation since July 2021, servicing the Elliot Springs community and surrounding neighbouring suburbs. There are 5x commercial sites already sold with companies such as Coles, BP and soon to be constructed day car centres and veterinary clinic.

Primary School Site:

Land area: approx. 3.565Ha with the ability to increase for greater land area if required.

Adjacent to Wadda Mooli Park & neighbourhood precinct & Coles.

Neighbourhood Centre:

Total land area: 3.165Ha

Land areas: From 2,000m2 to 5,600m2 approx with the ability to combine from greater land areas

Indicative 7 proposed lots within the Neighbourhood Centre (Refer indicative plans)

296m Bruce Highway frontage and easily accessed from all directions via Elliot Springs entry

Ray White Commercial Townsville are marketing the mixed use sites via an expressions of interest and welcome your enquiry for this outstanding opportunity.

Remember to mention you found this property on DevelopmentReady

Read More
Development Potential

21 Wadda Mooli Parkway Development Site Summary

Property Type
Health/Medical, Mixed Use
Sub-type
Other, Land Site
Land Area
7.49 hectares (*approx)
Townsville City
Selling method
EOI: Expressions of interest

Development Site Highlights

Development Opportunity for Neighbourhood Centre & School Site within Master Planned Community "Elliot Springs"

Ray White Commercial Townsville are seeking expressions of interest for multiple commercial sites within the Elliot Springs Master Planned Community.

There are 2 sites available with one proposed as a designated school site of 3.565Ha and the other is a mixed use 3.165Ha neighbourhood centre with 296m frontage to the Bruce Highway. The neighbourhood centre site allows for the flexibility to be subdivided and sold into smaller lot configurations.

Elliot Springs is located 15 km from the CBD on the Bruce Highway, Elliot Springs is Townsville's largest master planned community just a short drive from Fairfield Central and the Murray Sports Complex. The project comprises of 1,609 hectares with proposed population to over 26,000 people or 10,000 residential dwellings upon completion, circa 2050.

• Elliot Springs has achieved 419 sales and 356 settlements as of 18 November 2024. (415 residential sales and 4 commercial sale)

• There are now 295 homes occupied (approximately 737 residents) with a further 35 homes under construction.

• A further 51 residential lots are under construction in Whites Creek Stages 37 to 40 and are ready for title at the end of this month.

• The BP petrol service station has been in operation since July 2021, servicing the Elliot Springs community and surrounding neighbouring suburbs. There are 5x commercial sites already sold with companies such as Coles, BP and soon to be constructed day car centres and veterinary clinic.

Primary School Site:

Land area: approx. 3.565Ha with the ability to increase for greater land area if required.

Adjacent to Wadda Mooli Park & neighbourhood precinct & Coles.

Neighbourhood Centre:

Total land area: 3.165Ha

Land areas: From 2,000m2 to 5,600m2 approx with the ability to combine from greater land areas

Indicative 7 proposed lots within the Neighbourhood Centre (Refer indicative plans)

296m Bruce Highway frontage and easily accessed from all directions via Elliot Springs entry

Ray White Commercial Townsville are marketing the mixed use sites via an expressions of interest and welcome your enquiry for this outstanding opportunity.

Remember to mention you found this property on DevelopmentReady

Read More
Development Potential

Finance Calculator

21 Wadda Mooli Parkway, Julago, QLD 4816

Secure/no obligation

Step 1

Loan Variables

Adjust the inputs to explore your indicative finance options.

You can adjust the inputs below by tapping ‘Adjust Variable Inputs’.

Estimated Purchase Price: $x,xxx,xxx
What you intend to pay for the property
Your Contribution: $x,xxx,xxx
The amount you’re investing
LVR: $x,xxx,xxx
Loan to Value Ratio

Estimated Purchase Price:*

What you intend to pay for the property

$

Your Contribution:

The amount you’re investing

Min: 0% - Max: 90% of purchase price.

$

LVR:

Loan to Value Ratio

Min: 10% - Max: 100% of purchase price.

%

Loan Analysis

Estimated Purchase Price:
Your expected purchase price. Final lender valuation may differ and will affect LVR and borrowing.
$x,xxx,xxx
Your Contribution:
Your funds toward the purchase (savings/equity/gift). Does not include costs like duty, legals or LMI.
$xxx,xxx
Loan to Value Ratio:
Calculated as Loan ÷ Price. Guidance only. Lender policy caps vary by property type, location and borrower profile.
xx%
Loan Amount:
Estimated loan based on your inputs. Excludes fees, LMI and costs. Subject to credit assessment and valuation.
in full report
Interest Only: Monthly Repayments
Estimate using interest-only at 5.85% p.a. Excludes fees. Rates can change without notice.
in full report
Principal & Interest: Monthly Repayments
Estimate at 5.85% p.a. over 15 years, monthly compounding. Excludes fees/LMI. Rates may change.
in full report
Stamp Duty: queensland
Indicative rate for queensland. Concessions/exemptions (e.g., first home) may apply and change the amount.
in full report
Stamp Duty Cost:
Estimate only. Check SRO queensland for the latest rules and any concessions that may reduce this figure.
in full report

Property Location of 21 Wadda Mooli Parkway, Julago, QLD 4816

One moment please.

Retrieving map...

Due Diligence

Developments and amenities within a 5km radius of this Health/Medical opportunity at 21 Wadda Mooli Parkway, Julago, QLD 4816.

Site Report Available

Download your free DistrictData site summary. Make sure you are logged into DevelopmentReady to allow access

Report Contains

  • Site Summary
  • Development Pipeline
  • Recent Transactions
  • Surrounding Amenity
Download Report
Download Report
21 Wadda Mooli Parkway, Julago, QLD 4816 Julago
Enquire