Watch Watch
Your home of Development Ready videos
Watch Watch
Back
Sold Check

2 Gorrie Place, Glenroy, VIC 3046

+7 Photos

2 Gorrie Place, Glenroy, VIC 3046

Glenroy

×
Sold Check
+9 Photos
2 Gorrie Place, Glenroy, VIC 3046

2 Gorrie Place, Glenroy, VIC 3046

Properties / Sold / Victoria / Glenroy
Development Approved
Property Type
Residential
Sub Type
Townhouse Sites
Land Area
1,307 m² (*approx)
Selling Method
Contact Agent:
Show All

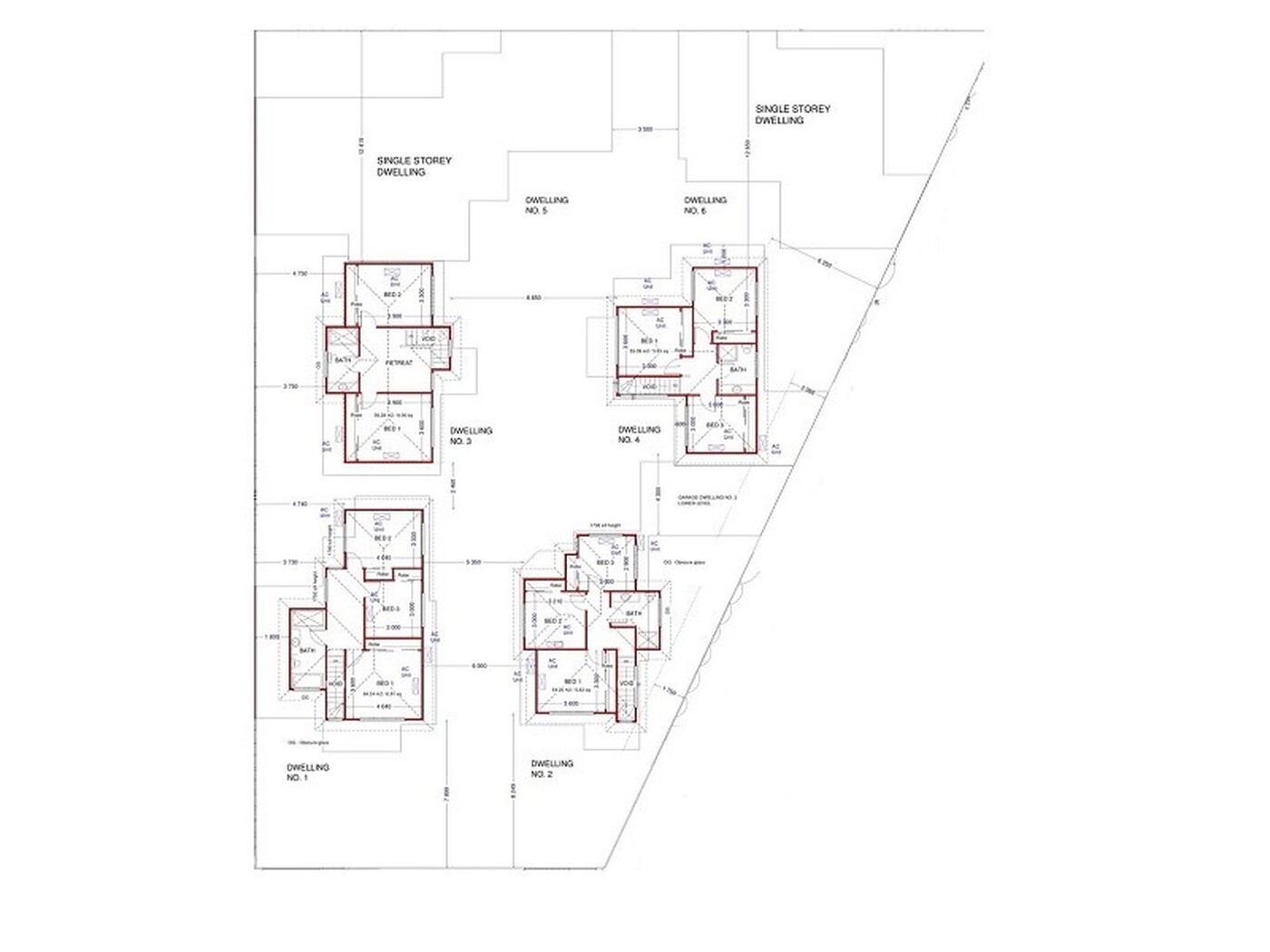
PERFECT SITE WITH PLANS & PERMITS FOR 6 DWELLINGS!

Positioned only 950m walk to Glenroy Zone 1 station, with a sprawling 1,307m2 (approx.) of land on offer, this great development site comes with approved plans and permits for 6 dwellings described as below:

-Dwelling1: 3 bedrooms townhouse plus study (17.64sq)
-Dwelling2: 3 bedrooms townhouse plus study (16.33sq)
-Dwelling3: 2 bedrooms townhouse plus study (14.55sq)
-Dwelling4: 3 bedrooms townhouse (15.85sq)
-Dwelling5: 3 bedrooms villa unit(16.02sq)
-Dwelling6: 2 bedrooms villa unit(11.69sq) 

the House itself is a Single level WB home built in the 1950s with a Fully self-contained separate bungalow: 2 bedrooms to the main home a 3rd in the bungalow, House facilities are relatively original, however spotless & in working order plus easy freeway access to ring road/city link

PREFERRED SALE TERMS:
DEPOSIT: 10% SETTLEMENT: 90/180 days

Remember to mention you found this property on DevelopmentReady

Read More
Development Approved

Development Site Summary

Property Type
Residential
Sub-type
Townhouse Sites
Land Area
1,307 m² (*approx)
Selling method
Contact Agent:

Development Site Highlights

PERFECT SITE WITH PLANS & PERMITS FOR 6 DWELLINGS!

Positioned only 950m walk to Glenroy Zone 1 station, with a sprawling 1,307m2 (approx.) of land on offer, this great development site comes with approved plans and permits for 6 dwellings described as below:

-Dwelling1: 3 bedrooms townhouse plus study (17.64sq)
-Dwelling2: 3 bedrooms townhouse plus study (16.33sq)
-Dwelling3: 2 bedrooms townhouse plus study (14.55sq)
-Dwelling4: 3 bedrooms townhouse (15.85sq)
-Dwelling5: 3 bedrooms villa unit(16.02sq)
-Dwelling6: 2 bedrooms villa unit(11.69sq) 

the House itself is a Single level WB home built in the 1950s with a Fully self-contained separate bungalow: 2 bedrooms to the main home a 3rd in the bungalow, House facilities are relatively original, however spotless & in working order plus easy freeway access to ring road/city link

PREFERRED SALE TERMS:
DEPOSIT: 10% SETTLEMENT: 90/180 days

Remember to mention you found this property on DevelopmentReady

Read More
Development Approved

Finance Calculator

2 Gorrie Place, Glenroy, VIC 3046

Secure/no obligation

Step 1

Loan Variables

Adjust the inputs to explore your indicative finance options.

You can adjust the inputs below by tapping ‘Adjust Variable Inputs’.

Estimated Purchase Price: $x,xxx,xxx
What you intend to pay for the property
Your Contribution: $x,xxx,xxx
The amount you’re investing
LVR: $x,xxx,xxx
Loan to Value Ratio

Estimated Purchase Price:*

What you intend to pay for the property

$

Your Contribution:

The amount you’re investing

Min: 0% - Max: 90% of purchase price.

$

LVR:

Loan to Value Ratio

Min: 10% - Max: 100% of purchase price.

%

Loan Analysis

Estimated Purchase Price:
Your expected purchase price. Final lender valuation may differ and will affect LVR and borrowing.
$x,xxx,xxx
Your Contribution:
Your funds toward the purchase (savings/equity/gift). Does not include costs like duty, legals or LMI.
$xxx,xxx
Loan to Value Ratio:
Calculated as Loan ÷ Price. Guidance only. Lender policy caps vary by property type, location and borrower profile.
xx%
Loan Amount:
Estimated loan based on your inputs. Excludes fees, LMI and costs. Subject to credit assessment and valuation.
in full report
Interest Only: Monthly Repayments
Estimate using interest-only at 5.85% p.a. Excludes fees. Rates can change without notice.
in full report
Principal & Interest: Monthly Repayments
Estimate at 5.85% p.a. over 15 years, monthly compounding. Excludes fees/LMI. Rates may change.
in full report
Stamp Duty: victoria
Indicative rate for victoria. Concessions/exemptions (e.g., first home) may apply and change the amount.
in full report
Stamp Duty Cost:
Estimate only. Check SRO victoria for the latest rules and any concessions that may reduce this figure.
in full report

Property Location

One moment please.

Retrieving map...

2 Gorrie Place, Glenroy, VIC 3046 Glenroy