Watch Watch
Your home of Development Ready videos
Watch Watch
Back

2 David Street, Lalor, VIC, 3075

+23 Photos

2 David Street, Lalor, VIC, 3075

Lalor

×
+25 Photos
2 David Street, Lalor, VIC, 3075

2 David Street, Lalor, VIC, 3075

Properties / Buy / Victoria / Lalor
Development Approved
Property Type
Residential
Sub Type
Apartment Sites, Land Site
Land Area
1,262 m² (*approx)
Zoning
Residential Growth Zone 1
LGA
Whittlesea City
Selling Method
For Sale: Contact Agent
DOCUMENTS AVAILABLE
Show All
"Prime Retail Site with Approved Permit in High-Growth Area"
  • Permit Approved Site
  • High Growth Precinct
  • Potential For Further Improvement

Discover a rare opportunity with this permit-approved residential development site situated in a thriving retail hotspot. Embrace the potential for immediate development or explore further re-design possibilities in this high-growth precinct. Ideally positioned in a Residential Growth Zone, this site offers proximity to a wealth of retail and lifestyle amenities. Key features include:

* Strategic 1,262sq m* site in a perfect location

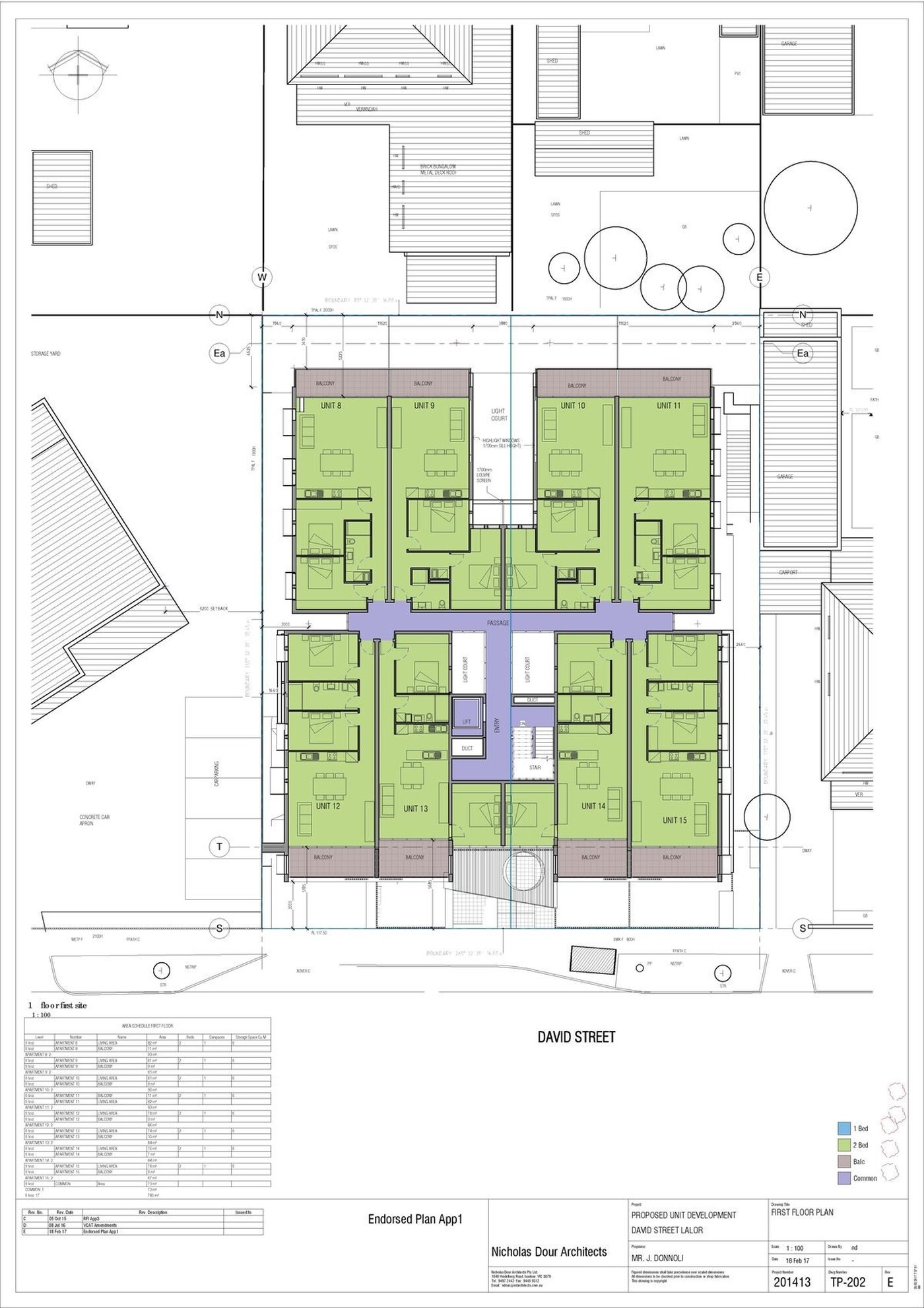
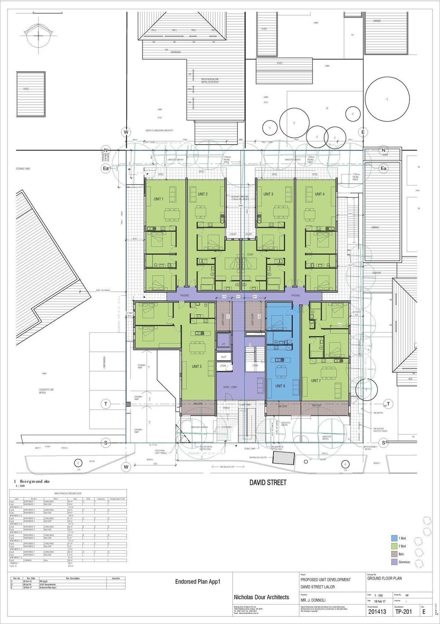
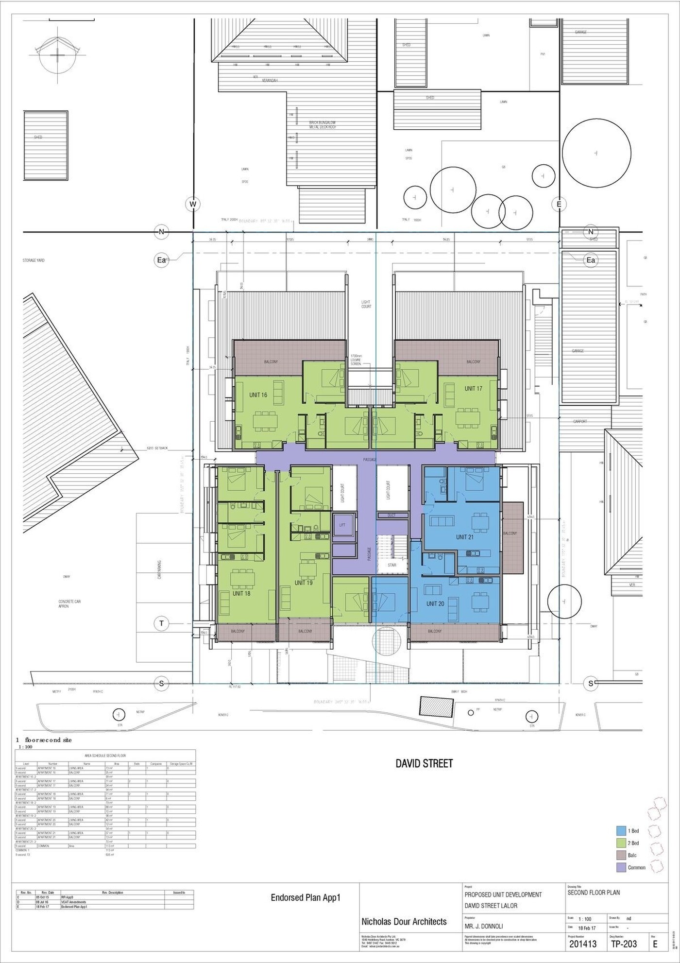
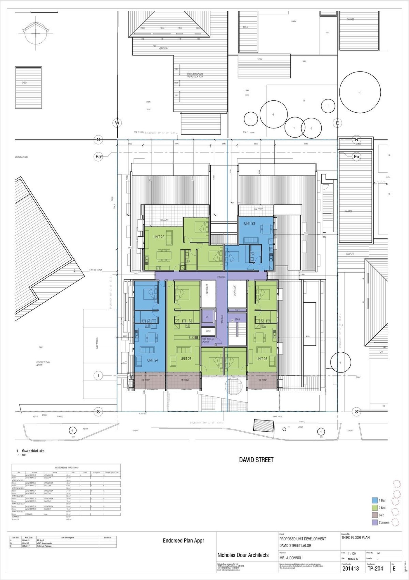
*Approved permit for a premium project featuring 26 spacious apartments

*Thoughtfully designed with an average apartment size of 78sq m*, maximizing natural light

*Zoned Residential Growth Zone 1

*Exceptional location near the vibrant May Road/Station Street retail strips, with Coles & Woolworths just a short walk away

*Close to St Luke’s Primary School, Lalor Primary School, Lalor Secondary College & Peter Lalor Vocational College

*Conveniently within walking distance to Lalor Train Station (500m*) & served by multiple bus routes

*Versatile potential for alternate development, including child care, medical & consulting rooms, or lifestyle options (subject to council approval)

"For visionaries seeking a remarkable opportunity, look no further. Seize the potential and make your mark in this thriving retail & residential hub".

For Further Information 

Contact Morris Del Monte 

0418 395 593


Read More
Dataroom
Development Approved

2 David Street Development Site Summary

Property Type
Residential
Sub-type
Apartment Sites, Land Site
Land Area
1,262 m² (*approx)
Residential Growth Zone 1
Whittlesea City
Selling method
For Sale: Contact Agent
DOCUMENTS AVAILABLE
Gain Access

Development Site Highlights

"Prime Retail Site with Approved Permit in High-Growth Area"
  • Permit Approved Site
  • High Growth Precinct
  • Potential For Further Improvement

Discover a rare opportunity with this permit-approved residential development site situated in a thriving retail hotspot. Embrace the potential for immediate development or explore further re-design possibilities in this high-growth precinct. Ideally positioned in a Residential Growth Zone, this site offers proximity to a wealth of retail and lifestyle amenities. Key features include:

* Strategic 1,262sq m* site in a perfect location

*Approved permit for a premium project featuring 26 spacious apartments

*Thoughtfully designed with an average apartment size of 78sq m*, maximizing natural light

*Zoned Residential Growth Zone 1

*Exceptional location near the vibrant May Road/Station Street retail strips, with Coles & Woolworths just a short walk away

*Close to St Luke’s Primary School, Lalor Primary School, Lalor Secondary College & Peter Lalor Vocational College

*Conveniently within walking distance to Lalor Train Station (500m*) & served by multiple bus routes

*Versatile potential for alternate development, including child care, medical & consulting rooms, or lifestyle options (subject to council approval)

"For visionaries seeking a remarkable opportunity, look no further. Seize the potential and make your mark in this thriving retail & residential hub".

For Further Information 

Contact Morris Del Monte 

0418 395 593


Read More
Dataroom
Development Approved

Finance Calculator

2 David Street, Lalor, VIC, 3075

Secure/no obligation

Step 1

Loan Variables

Adjust the inputs to explore your indicative finance options.

You can adjust the inputs below by tapping ‘Adjust Variable Inputs’.

Estimated Purchase Price: $x,xxx,xxx
What you intend to pay for the property
Your Contribution: $x,xxx,xxx
The amount you’re investing
LVR: $x,xxx,xxx
Loan to Value Ratio

Estimated Purchase Price:*

What you intend to pay for the property

$

Your Contribution:

The amount you’re investing

Min: 0% - Max: 90% of purchase price.

$

LVR:

Loan to Value Ratio

Min: 10% - Max: 100% of purchase price.

%

Loan Analysis

Estimated Purchase Price:
Your expected purchase price. Final lender valuation may differ and will affect LVR and borrowing.
$x,xxx,xxx
Your Contribution:
Your funds toward the purchase (savings/equity/gift). Does not include costs like duty, legals or LMI.
$xxx,xxx
Loan to Value Ratio:
Calculated as Loan ÷ Price. Guidance only. Lender policy caps vary by property type, location and borrower profile.
xx%
Loan Amount:
Estimated loan based on your inputs. Excludes fees, LMI and costs. Subject to credit assessment and valuation.
in full report
Interest Only: Monthly Repayments
Estimate using interest-only at 5.85% p.a. Excludes fees. Rates can change without notice.
in full report
Principal & Interest: Monthly Repayments
Estimate at 5.85% p.a. over 15 years, monthly compounding. Excludes fees/LMI. Rates may change.
in full report
Stamp Duty: victoria
Indicative rate for victoria. Concessions/exemptions (e.g., first home) may apply and change the amount.
in full report
Stamp Duty Cost:
Estimate only. Check SRO victoria for the latest rules and any concessions that may reduce this figure.
in full report

Property Location of 2 David Street, Lalor, VIC, 3075

One moment please.

Retrieving map...

Market Intelligence Report

Developments and amenities within a 5km radius of this Residential opportunity at 2 David Street, Lalor, VIC, 3075.

View Full Report - Dataroom
5km radius max
Distance
Asset Type

One moment please.

Retrieving latest data...

5km radius max
Distance
2 David Street, Lalor, VIC, 3075 Lalor
Enquire