Watch Watch
Your home of Development Ready videos
Watch Watch
Back
Sold Check

19 Keighery Drive, Clyde North VIC, 3978

+12 Photos

19 Keighery Drive, Clyde North VIC, 3978

Clyde North

×
Sold Check
+14 Photos

19 Keighery Drive, Clyde North VIC, 3978

Clyde North

SOLD
19 Keighery Drive, Clyde North VIC, 3978

19 Keighery Drive, Clyde North VIC, 3978

Properties / Sold / Victoria / Clyde North
Development Approved
Property Type
Residential
Land Area
2,537 m² (*approx)
LGA
Casey City
Selling Method
Expressions of Interest: Closing at 12 noon, Thursday 29th July 2021
Show All
Clyde North Premier 2,537m2 Corner Site

Permit Approved Site with Existing Single Story 3-Bedroom Home.

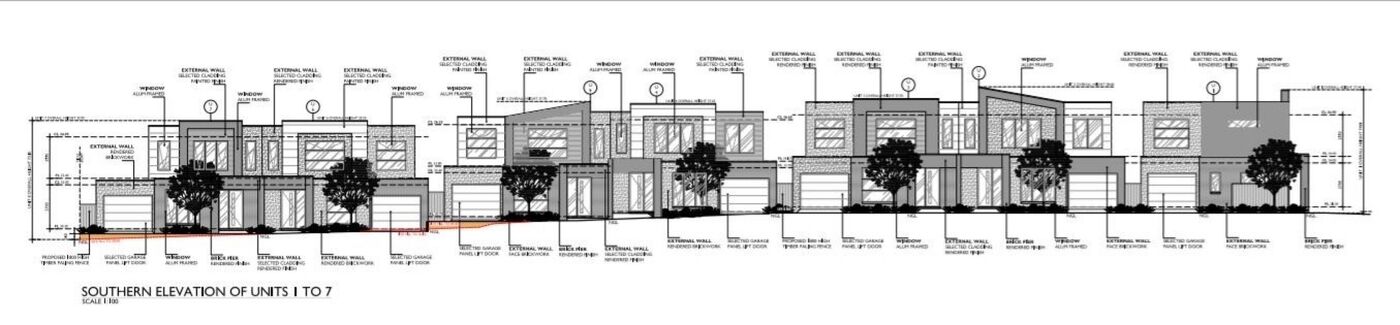
Spectrum Real estate is proud to present a Clyde North ready to go investment along with the planning and permits of 13 double storey townhouses. 

The property forms part of the highly sought after Clyde North area, presenting an opportunity to capitalise on already developed plans and permits. 

Ideally located just minutes to the proposed future Clyde Major Town Centre and potential railway station. To obtain further information or to arrange an private inspection, please call exclusive selling agents Spectrum Real Estate

For Sale by Expression of Interest Closing at 12 noon, Thursday 19th August 2021. 

Remember to mention you found this property on DevelopmentReady

Read More
Development Approved

19 Keighery Drive Development Site Summary

Property Type
Residential
Land Area
2,537 m² (*approx)
Casey City
Selling method
Expressions of Interest: Closing at 12 noon, Thursday 29th July 2021

Development Site Highlights

Clyde North Premier 2,537m2 Corner Site

Permit Approved Site with Existing Single Story 3-Bedroom Home.

Spectrum Real estate is proud to present a Clyde North ready to go investment along with the planning and permits of 13 double storey townhouses. 

The property forms part of the highly sought after Clyde North area, presenting an opportunity to capitalise on already developed plans and permits. 

Ideally located just minutes to the proposed future Clyde Major Town Centre and potential railway station. To obtain further information or to arrange an private inspection, please call exclusive selling agents Spectrum Real Estate

For Sale by Expression of Interest Closing at 12 noon, Thursday 19th August 2021. 

Remember to mention you found this property on DevelopmentReady

Read More
Development Approved

Finance Calculator

19 Keighery Drive, Clyde North VIC, 3978

Secure/no obligation

Step 1

Loan Variables

Adjust the inputs to explore your indicative finance options.

You can adjust the inputs below by tapping ‘Adjust Variable Inputs’.

Estimated Purchase Price: $x,xxx,xxx
What you intend to pay for the property
Your Contribution: $x,xxx,xxx
The amount you’re investing
LVR: $x,xxx,xxx
Loan to Value Ratio

Estimated Purchase Price:*

What you intend to pay for the property

$

Your Contribution:

The amount you’re investing

Min: 0% - Max: 90% of purchase price.

$

LVR:

Loan to Value Ratio

Min: 10% - Max: 100% of purchase price.

%

Loan Analysis

Estimated Purchase Price:
Your expected purchase price. Final lender valuation may differ and will affect LVR and borrowing.
$x,xxx,xxx
Your Contribution:
Your funds toward the purchase (savings/equity/gift). Does not include costs like duty, legals or LMI.
$xxx,xxx
Loan to Value Ratio:
Calculated as Loan ÷ Price. Guidance only. Lender policy caps vary by property type, location and borrower profile.
xx%
Loan Amount:
Estimated loan based on your inputs. Excludes fees, LMI and costs. Subject to credit assessment and valuation.
in full report
Interest Only: Monthly Repayments
Estimate using interest-only at 5.85% p.a. Excludes fees. Rates can change without notice.
in full report
Principal & Interest: Monthly Repayments
Estimate at 5.85% p.a. over 15 years, monthly compounding. Excludes fees/LMI. Rates may change.
in full report
Stamp Duty: victoria
Indicative rate for victoria. Concessions/exemptions (e.g., first home) may apply and change the amount.
in full report
Stamp Duty Cost:
Estimate only. Check SRO victoria for the latest rules and any concessions that may reduce this figure.
in full report

Property Location of 19 Keighery Drive, Clyde North VIC, 3978

One moment please.

Retrieving map...

Due Diligence

Site Report Available

Download your free DistrictData site summary. Make sure you are logged into DevelopmentReady to allow access

Report Contains

  • Site Summary
  • Development Pipeline
  • Recent Transactions
  • Surrounding Amenity
Download Report
Download Report
19 Keighery Drive, Clyde North VIC, 3978 Clyde North