 
                 
                             
                    
            HUGE 1790M2 ALLOTMENT (APPROX)
Attention investors, developers and keen renovators with a dream. Constructed in 1955 and sited on a massive 1790m2 allotment (approx.) and approximatley 5kms to the center of the CBD, this solid brick home is ready for a new evolution in urban upgrade and renewal. Renovate and extend or rebuild the existing home, add a tennis court and a pool to create your new dream home or subdivide and redevelop (STCC) and reap the rewards of such a large land holding.
A super wide 29.87m frontage (approx.) offers a broad range of development options, enhanced by a great location close to local schools, reserves, transport and shopping, or for the seasoned renovator there is ample width on the allotment for a recreational tennis court.
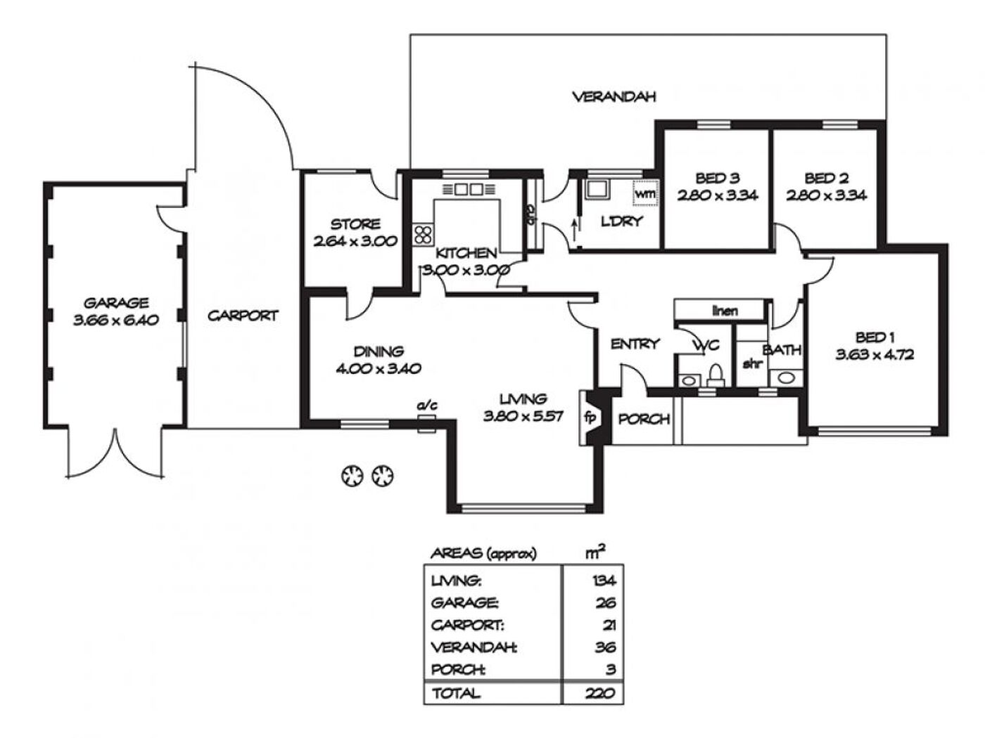
The existing home offers a traditional 3 bedroom design with large picture windows and 2.95m ceilings. Polished timber floors flow through the living spaces where a huge L shaped lounge / dining provides a spacious everyday living area. A functional kitchen offers ample bench and cupboard space with upgraded stove while traditional wets areas boasting original features including terrazzo flooring.
A handy storage room, single drive through carport and single garage offer spacious amenities, along with a separate powered studio and garden shed. For the gardener there is a host of fruit trees, a vegetable patch and a glass house, all set amongst sweeping lawns and scattered mature trees.
However, the real value here is the 1790m2 allotment (approx.) and the outstanding future potential of such a valuable land holding. Act fast, this one is truly rare earth!
Briefly:
A rare and desirable offering and the perfect opportunity to renovate & revitalise or demolish & develop (STCC). Approximately 5kms to the center of the Adelaide CBD and Close to all desirable amenities and with public transport at your doorstep. Local schools include Hampstead Primary, Vale Park Primary and Klemzig Primary. Bennett Reserve is a casual stroll away with the recreational and sporting grounds of Broadview Oval and Prospect Bowling Club, along with Klemzig Reserve with the Gaza Sports and Community Club just up the road. Greenacres Shopping Centre and the new Walkerville Shopping Centre are both quite accessible for a modern and convenient shopping experience.
A great opportunity to renovate, renew and prosper or demolish, divide and develop.
177 North East Road
Manningham
Remember to mention you found this property on DevelopmentReady
HUGE 1790M2 ALLOTMENT (APPROX)
Attention investors, developers and keen renovators with a dream. Constructed in 1955 and sited on a massive 1790m2 allotment (approx.) and approximatley 5kms to the center of the CBD, this solid brick home is ready for a new evolution in urban upgrade and renewal. Renovate and extend or rebuild the existing home, add a tennis court and a pool to create your new dream home or subdivide and redevelop (STCC) and reap the rewards of such a large land holding.
A super wide 29.87m frontage (approx.) offers a broad range of development options, enhanced by a great location close to local schools, reserves, transport and shopping, or for the seasoned renovator there is ample width on the allotment for a recreational tennis court.
The existing home offers a traditional 3 bedroom design with large picture windows and 2.95m ceilings. Polished timber floors flow through the living spaces where a huge L shaped lounge / dining provides a spacious everyday living area. A functional kitchen offers ample bench and cupboard space with upgraded stove while traditional wets areas boasting original features including terrazzo flooring.
A handy storage room, single drive through carport and single garage offer spacious amenities, along with a separate powered studio and garden shed. For the gardener there is a host of fruit trees, a vegetable patch and a glass house, all set amongst sweeping lawns and scattered mature trees.
However, the real value here is the 1790m2 allotment (approx.) and the outstanding future potential of such a valuable land holding. Act fast, this one is truly rare earth!
Briefly:
A rare and desirable offering and the perfect opportunity to renovate & revitalise or demolish & develop (STCC). Approximately 5kms to the center of the Adelaide CBD and Close to all desirable amenities and with public transport at your doorstep. Local schools include Hampstead Primary, Vale Park Primary and Klemzig Primary. Bennett Reserve is a casual stroll away with the recreational and sporting grounds of Broadview Oval and Prospect Bowling Club, along with Klemzig Reserve with the Gaza Sports and Community Club just up the road. Greenacres Shopping Centre and the new Walkerville Shopping Centre are both quite accessible for a modern and convenient shopping experience.
A great opportunity to renovate, renew and prosper or demolish, divide and develop.
177 North East Road
Manningham
Remember to mention you found this property on DevelopmentReady
 
                     
                     
                     
                     
                