Watch Watch
Your home of Development Ready videos
Watch Watch
Back
Sold Check

16 Village Drive, HAMPTON PARK, VIC 3976

+8 Photos

16 Village Drive, HAMPTON PARK, VIC 3976

Hampton Park

×
Sold Check
+10 Photos

16 Village Drive, HAMPTON PARK, VIC 3976

Hampton Park

SOLD
16 Village Drive, HAMPTON PARK, VIC 3976

16 Village Drive, HAMPTON PARK, VIC 3976

Properties / Sold / Victoria / Hampton Park
Development Approved
Property Type
Residential
Land Area
720 m² (*approx)
Selling Method
$AUD: $645,000
Show All

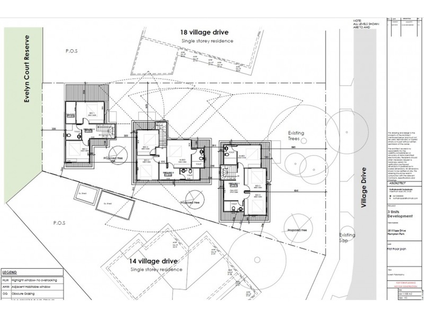
APPROVED PERMIT FOR 3 TOWNHOUSES!!

Statement of information is located at https://s3-ap-southeast-2.amazonaws.com/zenu/LISTING_IMAGES/251-906435/z8919d2ht3v4at93ow5f2eqg7ifi1z6s.pdf . Please copy & paste this information into your browser address bar.

Attention all investors/developers and home buyers to this magnificent property in the highly sought after pocket of Hampton Park. Sitting on an exceptional approx. 720 m2 block with approved permit and endorsed plans for 3 double storey townhouses.

located within walking distance from main amenities like Hampton Park Shopping Centre, Hampton park secondary college, public reserve, public transport including Hallam Train Station and easy access to Monash freeway, Princes Highway and South Gippsland Freeway.

The endorsed plans for 3 townhouses featuring the first townhouse with 3 bedrooms, 2 bathrooms and double garage with separate driveway and porch from the main road. second townhouse 3 bedrooms 2 bathrooms and double garage accessible from the shared driveway with the third townhouse which offers 2 bedrooms with balcony over looking the reserve and a single carport plus a another car parking space.

Existing house offers 3 spacious bedrooms, central bathroom, enormous living space with a separate dining zone with a wall heater to warm up the house in coming winter, access from the living area to you own personal courtyard.

The great investment property is currently tenanted for $1,516.66 per month $350 per week.

To secure your chance to get into this beautiful home, give us call today!!

Remember to mention you found this property on DevelopmentReady

Read More
Development Approved

Development Site Summary

Property Type
Residential
Land Area
720 m² (*approx)
Selling method
$AUD: $645,000

Development Site Highlights

APPROVED PERMIT FOR 3 TOWNHOUSES!!

Statement of information is located at https://s3-ap-southeast-2.amazonaws.com/zenu/LISTING_IMAGES/251-906435/z8919d2ht3v4at93ow5f2eqg7ifi1z6s.pdf . Please copy & paste this information into your browser address bar.

Attention all investors/developers and home buyers to this magnificent property in the highly sought after pocket of Hampton Park. Sitting on an exceptional approx. 720 m2 block with approved permit and endorsed plans for 3 double storey townhouses.

located within walking distance from main amenities like Hampton Park Shopping Centre, Hampton park secondary college, public reserve, public transport including Hallam Train Station and easy access to Monash freeway, Princes Highway and South Gippsland Freeway.

The endorsed plans for 3 townhouses featuring the first townhouse with 3 bedrooms, 2 bathrooms and double garage with separate driveway and porch from the main road. second townhouse 3 bedrooms 2 bathrooms and double garage accessible from the shared driveway with the third townhouse which offers 2 bedrooms with balcony over looking the reserve and a single carport plus a another car parking space.

Existing house offers 3 spacious bedrooms, central bathroom, enormous living space with a separate dining zone with a wall heater to warm up the house in coming winter, access from the living area to you own personal courtyard.

The great investment property is currently tenanted for $1,516.66 per month $350 per week.

To secure your chance to get into this beautiful home, give us call today!!

Remember to mention you found this property on DevelopmentReady

Read More
Development Approved

Finance Calculator

16 Village Drive, HAMPTON PARK, VIC 3976

Secure/no obligation

Step 1

Loan Variables

Adjust the inputs to explore your indicative finance options.

You can adjust the inputs below by tapping ‘Adjust Variable Inputs’.

Estimated Purchase Price: $x,xxx,xxx
What you intend to pay for the property
Your Contribution: $x,xxx,xxx
The amount you’re investing
LVR: $x,xxx,xxx
Loan to Value Ratio

Estimated Purchase Price:*

What you intend to pay for the property

$

Your Contribution:

The amount you’re investing

Min: 0% - Max: 90% of purchase price.

$

LVR:

Loan to Value Ratio

Min: 10% - Max: 100% of purchase price.

%

Loan Analysis

Estimated Purchase Price:
Your expected purchase price. Final lender valuation may differ and will affect LVR and borrowing.
$x,xxx,xxx
Your Contribution:
Your funds toward the purchase (savings/equity/gift). Does not include costs like duty, legals or LMI.
$xxx,xxx
Loan to Value Ratio:
Calculated as Loan ÷ Price. Guidance only. Lender policy caps vary by property type, location and borrower profile.
xx%
Loan Amount:
Estimated loan based on your inputs. Excludes fees, LMI and costs. Subject to credit assessment and valuation.
in full report
Interest Only: Monthly Repayments
Estimate using interest-only at 5.85% p.a. Excludes fees. Rates can change without notice.
in full report
Principal & Interest: Monthly Repayments
Estimate at 5.85% p.a. over 15 years, monthly compounding. Excludes fees/LMI. Rates may change.
in full report
Stamp Duty: victoria
Indicative rate for victoria. Concessions/exemptions (e.g., first home) may apply and change the amount.
in full report
Stamp Duty Cost:
Estimate only. Check SRO victoria for the latest rules and any concessions that may reduce this figure.
in full report

Property Location

One moment please.

Retrieving map...

16 Village Drive, HAMPTON PARK, VIC 3976 Hampton Park