 
                 
            
                 
            
                 
            
                 
                             
                    
            Ideally located opposite Blacktown Hospital and just minutes from the Blacktown CBD, this 1.65-Hectare level site represents one of Western Sydney’s most significant and strategic development opportunities.
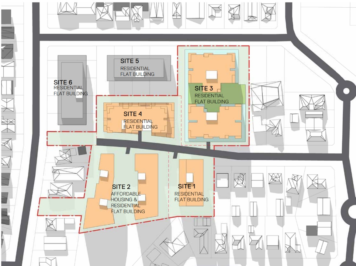
With HDA status secured under a State Significant Development and SEARs issued, the project is well positioned for streamlined delivery. The site’s configuration allows for four potential stages, offering flexibility and multiple pathways to capitalise on market demand.
The proposed masterplan delivers a mixed-use community featuring approximately 600 residential apartments and a vibrant retail and shopping centre precinct, supported by strong population growth, healthcare expansion and increasing demand for key worker and medical-related housing. This is a catalyst site within the Blacktown Health and Education Precinct, underpinned by major public and private investment driving the region’s next phase of transformation.
Adding to the appeal, there is strong buyer interest already secured, with a term sheet from a reputable Government Funded purchaser expressing intent to acquire 245–300 completed units, highlighting the project’s market strength and immediate development viability.
Key Property Highlights:
+ 16,500 sqm level land
+ Offering approximately 55,000+ sqm of potential GFA
+ Opposite Blacktown Hospital in the centre of a major growth hub
+ Mixed use zoning permitting Residential (via HDA), Aged Care, Health Care, Education & Retail
+ No FSR controls and 32m height limit
+ HDA status granted | SEARs issued | EOI stage completed
+ Flexible staged delivery options across four lots
+ Established buyer interest for up to 300 completed units
+ Offered with vacant possession
An exceptional opportunity to secure a major development holding in one of Western Sydney’s fastest-growing health and education precincts.
Offered for sale via Expressions of Interest (EOI)
Closing Thursday the 27th of November (if not sold prior)
Please contact the exclusive agents for more information:
Steven Kruyer 0414 404 070
Guy Yarden 0404 082 262
Remember to mention you found this property on DevelopmentReady
Ideally located opposite Blacktown Hospital and just minutes from the Blacktown CBD, this 1.65-Hectare level site represents one of Western Sydney’s most significant and strategic development opportunities.
With HDA status secured under a State Significant Development and SEARs issued, the project is well positioned for streamlined delivery. The site’s configuration allows for four potential stages, offering flexibility and multiple pathways to capitalise on market demand.
The proposed masterplan delivers a mixed-use community featuring approximately 600 residential apartments and a vibrant retail and shopping centre precinct, supported by strong population growth, healthcare expansion and increasing demand for key worker and medical-related housing. This is a catalyst site within the Blacktown Health and Education Precinct, underpinned by major public and private investment driving the region’s next phase of transformation.
Adding to the appeal, there is strong buyer interest already secured, with a term sheet from a reputable Government Funded purchaser expressing intent to acquire 245–300 completed units, highlighting the project’s market strength and immediate development viability.
Key Property Highlights:
+ 16,500 sqm level land
+ Offering approximately 55,000+ sqm of potential GFA
+ Opposite Blacktown Hospital in the centre of a major growth hub
+ Mixed use zoning permitting Residential (via HDA), Aged Care, Health Care, Education & Retail
+ No FSR controls and 32m height limit
+ HDA status granted | SEARs issued | EOI stage completed
+ Flexible staged delivery options across four lots
+ Established buyer interest for up to 300 completed units
+ Offered with vacant possession
An exceptional opportunity to secure a major development holding in one of Western Sydney’s fastest-growing health and education precincts.
Offered for sale via Expressions of Interest (EOI)
Closing Thursday the 27th of November (if not sold prior)
Please contact the exclusive agents for more information:
Steven Kruyer 0414 404 070
Guy Yarden 0404 082 262
Remember to mention you found this property on DevelopmentReady
 
                     
                     
                     
                    Developments and amenities within a 5km radius of the asset.
 
                     
                     
                