Watch Watch
Your home of Development Ready videos
Watch Watch
Back
Sold Check

139 Main Road, Sorell, TAS 7172

+9 Photos

139 Main Road, Sorell, TAS 7172

Sorell

×
Sold Check
+11 Photos
139 Main Road, Sorell, TAS 7172

139 Main Road, Sorell, TAS 7172

Properties / Sold / Tasmania / Sorell
Development Potential
Property Type
Industrial
Sub Type
Land Site
Land Area
32,120 m² (*approx)
Zoning
Light Industrial
Local Government
Sorell
Selling Method
EOI: Contact Agent
EOI Closing Date
17 Apr 2025 04:00PM
Show All
Sorell Gateway Site – One of Tasmania’s Best Landbank Opportunities
  • Multiple development options
  • Significant holding income
  • Strategically located site

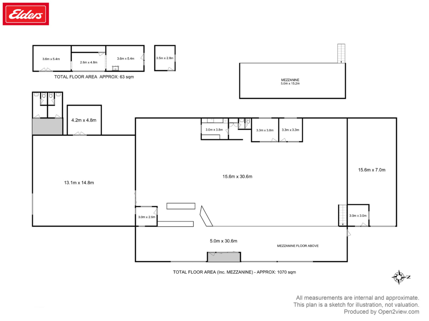
Elders Commercial presents a rare opportunity to secure a high-profile 3.212 ha site* at the gateway to Sorell, one of Tasmania’s fastest-growing regions. With significant frontage to Main Road, a major arterial route forming part of the Tasman Highway, the site enjoys strong passing traffic and exceptional exposure.

Partly zoned "Light Industrial" and partly "General Residential", the property offers flexibility for various commercial, industrial and residential uses**. A solid holding income provides immediate returns, while the large undeveloped portion presents options for staged development or long-term land banking in this tightly held and rapidly growing locality.

Key Investment Highlights;

• Substantial and level 3.212 ha site* with a significant 82m* frontage to Main Road (Tasman Highway).

• Flexible "Light Industrial" and "General Residential" zoning allows for a variety of commercial, industrial and residential uses**.

• Rare opportunity to secure a large, strategically located site in a rapidly developing region.

• Multiple development options – undertake a staged approach or masterplan for future large-scale development.

• Strong demand for services in Sorell, supported by population growth and recent arterial road upgrades.

• Significant holding income from multiple tenants

Please contact Richard Steedman or George Burbury to discuss further or to arrange an inspection.

*Approximate **STCA ***Before owner outgoings

Remember to mention you found this property on DevelopmentReady

Read More
Development Potential

139 Main Road Development Site Summary

Property Type
Industrial
Sub-type
Land Site
Land Area
32,120 m² (*approx)
Light Industrial
Local Government
Sorell
Selling method
EOI: Contact Agent
EOI Closing Date
17 Apr 2025 04:00PM

Development Site Highlights

Sorell Gateway Site – One of Tasmania’s Best Landbank Opportunities
  • Multiple development options
  • Significant holding income
  • Strategically located site

Elders Commercial presents a rare opportunity to secure a high-profile 3.212 ha site* at the gateway to Sorell, one of Tasmania’s fastest-growing regions. With significant frontage to Main Road, a major arterial route forming part of the Tasman Highway, the site enjoys strong passing traffic and exceptional exposure.

Partly zoned "Light Industrial" and partly "General Residential", the property offers flexibility for various commercial, industrial and residential uses**. A solid holding income provides immediate returns, while the large undeveloped portion presents options for staged development or long-term land banking in this tightly held and rapidly growing locality.

Key Investment Highlights;

• Substantial and level 3.212 ha site* with a significant 82m* frontage to Main Road (Tasman Highway).

• Flexible "Light Industrial" and "General Residential" zoning allows for a variety of commercial, industrial and residential uses**.

• Rare opportunity to secure a large, strategically located site in a rapidly developing region.

• Multiple development options – undertake a staged approach or masterplan for future large-scale development.

• Strong demand for services in Sorell, supported by population growth and recent arterial road upgrades.

• Significant holding income from multiple tenants

Please contact Richard Steedman or George Burbury to discuss further or to arrange an inspection.

*Approximate **STCA ***Before owner outgoings

Remember to mention you found this property on DevelopmentReady

Read More
Development Potential

Finance Calculator

139 Main Road, Sorell, TAS 7172

Secure/no obligation

Step 1

Loan Variables

Adjust the inputs to explore your indicative finance options.

You can adjust the inputs below by tapping ‘Adjust Variable Inputs’.

Estimated Purchase Price: $x,xxx,xxx
What you intend to pay for the property
Your Contribution: $x,xxx,xxx
The amount you’re investing
LVR: $x,xxx,xxx
Loan to Value Ratio

Estimated Purchase Price:*

What you intend to pay for the property

$

Your Contribution:

The amount you’re investing

Min: 0% - Max: 90% of purchase price.

$

LVR:

Loan to Value Ratio

Min: 10% - Max: 100% of purchase price.

%

Loan Analysis

Estimated Purchase Price:
Your expected purchase price. Final lender valuation may differ and will affect LVR and borrowing.
$x,xxx,xxx
Your Contribution:
Your funds toward the purchase (savings/equity/gift). Does not include costs like duty, legals or LMI.
$xxx,xxx
Loan to Value Ratio:
Calculated as Loan ÷ Price. Guidance only. Lender policy caps vary by property type, location and borrower profile.
xx%
Loan Amount:
Estimated loan based on your inputs. Excludes fees, LMI and costs. Subject to credit assessment and valuation.
in full report
Interest Only: Monthly Repayments
Estimate using interest-only at 5.85% p.a. Excludes fees. Rates can change without notice.
in full report
Principal & Interest: Monthly Repayments
Estimate at 5.85% p.a. over 15 years, monthly compounding. Excludes fees/LMI. Rates may change.
in full report
Stamp Duty: tasmania
Indicative rate for tasmania. Concessions/exemptions (e.g., first home) may apply and change the amount.
in full report
Stamp Duty Cost:
Estimate only. Check SRO tasmania for the latest rules and any concessions that may reduce this figure.
in full report

Property Location of 139 Main Road, Sorell, TAS 7172

One moment please.

Retrieving map...

Due Diligence

Site Report Available

Download your free DistrictData site summary. Make sure you are logged into DevelopmentReady to allow access

Report Contains

  • Site Summary
  • Development Pipeline
  • Recent Transactions
  • Surrounding Amenity
Download Report
Download Report
139 Main Road, Sorell, TAS 7172 Sorell
Elders Tasmania
Elders Tasmania
5 Victoria Street, Hobart, TAS, 7000
View Agency Profile