Watch Watch
Your home of Development Ready videos
Watch Watch
Back

115-129 Railway Avenue, Bundanoon, NSW 2578

+7 Photos

115-129 Railway Avenue, Bundanoon, NSW 2578

Bundanoon

×
+9 Photos
115-129 Railway Avenue, Bundanoon, NSW 2578

115-129 Railway Avenue, Bundanoon, NSW 2578

Properties / Buy / New South Wales / Bundanoon
Development Approved
Property Type
Residential
Sub Type
House, Land Site, Subdivision
Land Area
9,699 m² (*approx)
Selling Method
For Sale: Contact Agent
DOCUMENTS AVAILABLE
Show All
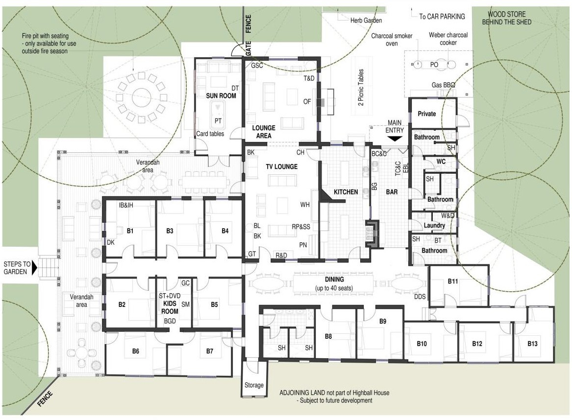
Lynbrook- Heritage Charm with DA Approval for 9 Lot Subdivision

Tucked away in one of Bundanoon's most picturesque pockets, Lynbrook is a captivating Southern Highlands property brimming with character, history & opportunity. Set on a generous parcel of land framed by mature trees & rambling gardens, this quintessential country home invites a new custodian to write its next chapter.

Steeped in Bundanoon's village history, Lynbrook captures the essence of old-world charm. From its high ceilings & timber floors to its wide verandahs & cosy fireplace. Period details have been lovingly preserved, creating a home that radiates warmth & nostalgia while offering endless scope for transformation.

With solid bones & a flexible floorplan, Lynbrook provides an inspiring canvas for renovation, restoration, or reinvention. Whether you envision a refined Highlands retreat, boutique guest accommodation, or a family residence with modern updates, the possibilities are vast & rewarding.

The grounds are equally enchanting. Established gardens, sunlit lawns & quiet corners offer space for outdoor entertaining, a kitchen garden or even additional structures. Its prime Bundanoon location ensures easy access to the village centre, local cafés, shops & rail connections, while still enjoying the peace & privacy of a true country setting.

This is a rare opportunity to secure a property that blends historic allure with genuine development potential. A Highlands classic, ready to be revived, reimagined & loved for generations to come.

________________________________________

Key Features

• Character-filled original residence on a large, level block

• Retained period details including timber flooring, fireplaces & verandahs

• Generous living areas & flexible floorplan ripe for renovation

• Expansive gardens with established trees & open space for expansion

• Excellent location within walking distance to Bundanoon village & transport

• Ideal opportunity for restoration, investment, or boutique accommodation project

________________________________________

The Potential

• Renovate & restore to create a refined country residence- with DA approval for alterations & additions

• Development approval for a 9 lot residential subdivision with 8 lots from 700m2 & a substantial homestead on 3,860m2

• Extend or rebuild to design your dream Highlands estate with council approvals already in place

• Landbank & hold, capitalising on Bundanoon's growing popularity & village transformation with a strong current income as a boutique guesthouse for large groups

• Subdivide & maximise potential

For further information & insight into what Lynbrook offers visit the website lynbrook.net.au or contact Matthew Anstee 0400 555 088 [email protected]

Remember to mention you found this property on DevelopmentReady

Read More
Dataroom
Development Approved

115-129 Railway Avenue Development Site Summary

Property Type
Residential
Sub-type
House, Land Site, Subdivision
Land Area
9,699 m² (*approx)
Selling method
For Sale: Contact Agent
DOCUMENTS AVAILABLE
Gain Access

Development Site Highlights

Lynbrook- Heritage Charm with DA Approval for 9 Lot Subdivision

Tucked away in one of Bundanoon's most picturesque pockets, Lynbrook is a captivating Southern Highlands property brimming with character, history & opportunity. Set on a generous parcel of land framed by mature trees & rambling gardens, this quintessential country home invites a new custodian to write its next chapter.

Steeped in Bundanoon's village history, Lynbrook captures the essence of old-world charm. From its high ceilings & timber floors to its wide verandahs & cosy fireplace. Period details have been lovingly preserved, creating a home that radiates warmth & nostalgia while offering endless scope for transformation.

With solid bones & a flexible floorplan, Lynbrook provides an inspiring canvas for renovation, restoration, or reinvention. Whether you envision a refined Highlands retreat, boutique guest accommodation, or a family residence with modern updates, the possibilities are vast & rewarding.

The grounds are equally enchanting. Established gardens, sunlit lawns & quiet corners offer space for outdoor entertaining, a kitchen garden or even additional structures. Its prime Bundanoon location ensures easy access to the village centre, local cafés, shops & rail connections, while still enjoying the peace & privacy of a true country setting.

This is a rare opportunity to secure a property that blends historic allure with genuine development potential. A Highlands classic, ready to be revived, reimagined & loved for generations to come.

________________________________________

Key Features

• Character-filled original residence on a large, level block

• Retained period details including timber flooring, fireplaces & verandahs

• Generous living areas & flexible floorplan ripe for renovation

• Expansive gardens with established trees & open space for expansion

• Excellent location within walking distance to Bundanoon village & transport

• Ideal opportunity for restoration, investment, or boutique accommodation project

________________________________________

The Potential

• Renovate & restore to create a refined country residence- with DA approval for alterations & additions

• Development approval for a 9 lot residential subdivision with 8 lots from 700m2 & a substantial homestead on 3,860m2

• Extend or rebuild to design your dream Highlands estate with council approvals already in place

• Landbank & hold, capitalising on Bundanoon's growing popularity & village transformation with a strong current income as a boutique guesthouse for large groups

• Subdivide & maximise potential

For further information & insight into what Lynbrook offers visit the website lynbrook.net.au or contact Matthew Anstee 0400 555 088 [email protected]

Remember to mention you found this property on DevelopmentReady

Read More
Dataroom
Development Approved

Finance Calculator

115-129 Railway Avenue, Bundanoon, NSW 2578

Secure/no obligation

Step 1

Loan Variables

Adjust the inputs to explore your indicative finance options.

You can adjust the inputs below by tapping ‘Adjust Variable Inputs’.

Estimated Purchase Price: $x,xxx,xxx
What you intend to pay for the property
Your Contribution: $x,xxx,xxx
The amount you’re investing
LVR: $x,xxx,xxx
Loan to Value Ratio

Estimated Purchase Price:*

What you intend to pay for the property

$

Your Contribution:

The amount you’re investing

Min: 0% - Max: 90% of purchase price.

$

LVR:

Loan to Value Ratio

Min: 10% - Max: 100% of purchase price.

%

Loan Analysis

Estimated Purchase Price:
Your expected purchase price. Final lender valuation may differ and will affect LVR and borrowing.
$x,xxx,xxx
Your Contribution:
Your funds toward the purchase (savings/equity/gift). Does not include costs like duty, legals or LMI.
$xxx,xxx
Loan to Value Ratio:
Calculated as Loan ÷ Price. Guidance only. Lender policy caps vary by property type, location and borrower profile.
xx%
Loan Amount:
Estimated loan based on your inputs. Excludes fees, LMI and costs. Subject to credit assessment and valuation.
in full report
Interest Only: Monthly Repayments
Estimate using interest-only at 5.85% p.a. Excludes fees. Rates can change without notice.
in full report
Principal & Interest: Monthly Repayments
Estimate at 5.85% p.a. over 15 years, monthly compounding. Excludes fees/LMI. Rates may change.
in full report
Stamp Duty: new south wales
Indicative rate for new south wales. Concessions/exemptions (e.g., first home) may apply and change the amount.
in full report
Stamp Duty Cost:
Estimate only. Check SRO new south wales for the latest rules and any concessions that may reduce this figure.
in full report

Property Location of 115-129 Railway Avenue, Bundanoon, NSW 2578

One moment please.

Retrieving map...

Market Intelligence Report

Developments and amenities within a 5km radius of the asset.

View Full Report - Dataroom
5km radius max
Distance
Asset Type

One moment please.

Retrieving latest data...

5km radius max
Distance
Enquire