Watch Watch
Your home of Development Ready videos
Watch Watch
Back
Sold Check

101 Scenic Highway, Terrigal, NSW, 2260

+25 Photos

101 Scenic Highway, Terrigal, NSW, 2260

Terrigal

×
Sold Check
+27 Photos
101 Scenic Highway, Terrigal, NSW, 2260

101 Scenic Highway, Terrigal, NSW, 2260

Properties / Sold / New South Wales / Terrigal
Development Potential
Property Type
Residential
Sub Type
Apartment Sites, Townhouse Sites
Land Area
1,144 m² (*approx)
Selling Method
$AUD: Sat 27 Apr at 1:30pm
Show All

ABSOLUTE (DEF: 'WITHOUT ANY DOUBT') THE JEWEL IN THE CROWN

ABSOLUTE huge 1,144m2 R2 residential land on Scenic Hwy
ABSOLUTE 180 degree ocean, beach and headland views
ABSOLUTE unique redevelopment opportunity on Scenic Hwy
ABSOLUTE perfect North-East aspect.
ABSOLUTE $1,440 PW rental return
ABSOLUTE direct pedestrian access to Kurrawyba Ave & Terrigal
ABSOLUTE advantage of bypass access from Scenic Hwy

Poised directly above Terrigal's attractions, this exclusive parcel presents rare scope to fully capitalize this prime location and views. Complete with bypass lane from Scenic highway adjoining the block and affording easy access.

Tightly held since 1972 these 4 separate units were DA approved in 1982
Multiple residential redevelopment opportunity STCA

There is a 1.98metre wide pedestrian walkway on title from the N/E corner to access Kurrawyba Avenue and the pedestrian link direct to Terrigal.

This is one of Scenic Highway's absolute largest residential blocks with a solid rental return and quality long term tenants.

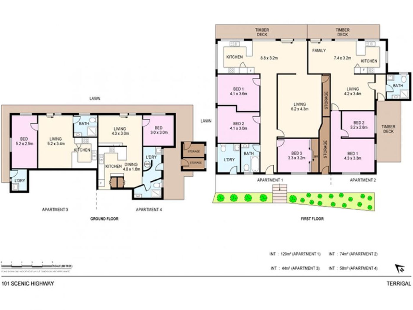
Each apartment has separate dedicated entrance and laundry
Unit 1 top floor - 3 bed, 1 bath @ $440 PW
Unit 2 top floor - 2 bed, 1 bath @ $380 PW
Unit 3 ground floor - 1 bed, 1 bath @ $300 PW
Unit 4 ground floor - 1 bed, 1 bath @ $330 PW (currently vacant)

DISCLAIMER: This advertisement contains information provided by third parties. While all care is taken to ensure otherwise, Ray White Terrigal does not make any representation as to the accuracy of the information contained in the advertisement, does not accept and responsibility or liability and recommends that any client make their own investigations and enquiries. All images are indicative of the property only.

Remember to mention you found this property on DevelopmentReady

Read More
Development Potential

Development Site Summary

Property Type
Residential
Sub-type
Apartment Sites, Townhouse Sites
Land Area
1,144 m² (*approx)
Selling method
$AUD: Sat 27 Apr at 1:30pm

Development Site Highlights

ABSOLUTE (DEF: 'WITHOUT ANY DOUBT') THE JEWEL IN THE CROWN

ABSOLUTE huge 1,144m2 R2 residential land on Scenic Hwy
ABSOLUTE 180 degree ocean, beach and headland views
ABSOLUTE unique redevelopment opportunity on Scenic Hwy
ABSOLUTE perfect North-East aspect.
ABSOLUTE $1,440 PW rental return
ABSOLUTE direct pedestrian access to Kurrawyba Ave & Terrigal
ABSOLUTE advantage of bypass access from Scenic Hwy

Poised directly above Terrigal's attractions, this exclusive parcel presents rare scope to fully capitalize this prime location and views. Complete with bypass lane from Scenic highway adjoining the block and affording easy access.

Tightly held since 1972 these 4 separate units were DA approved in 1982
Multiple residential redevelopment opportunity STCA

There is a 1.98metre wide pedestrian walkway on title from the N/E corner to access Kurrawyba Avenue and the pedestrian link direct to Terrigal.

This is one of Scenic Highway's absolute largest residential blocks with a solid rental return and quality long term tenants.

Each apartment has separate dedicated entrance and laundry
Unit 1 top floor - 3 bed, 1 bath @ $440 PW
Unit 2 top floor - 2 bed, 1 bath @ $380 PW
Unit 3 ground floor - 1 bed, 1 bath @ $300 PW
Unit 4 ground floor - 1 bed, 1 bath @ $330 PW (currently vacant)

DISCLAIMER: This advertisement contains information provided by third parties. While all care is taken to ensure otherwise, Ray White Terrigal does not make any representation as to the accuracy of the information contained in the advertisement, does not accept and responsibility or liability and recommends that any client make their own investigations and enquiries. All images are indicative of the property only.

Remember to mention you found this property on DevelopmentReady

Read More
Development Potential

Finance Calculator

101 Scenic Highway, Terrigal, NSW, 2260

Secure/no obligation

Step 1

Loan Variables

Adjust the inputs to explore your indicative finance options.

You can adjust the inputs below by tapping ‘Adjust Variable Inputs’.

Estimated Purchase Price: $x,xxx,xxx
What you intend to pay for the property
Your Contribution: $x,xxx,xxx
The amount you’re investing
LVR: $x,xxx,xxx
Loan to Value Ratio

Estimated Purchase Price:*

What you intend to pay for the property

$

Your Contribution:

The amount you’re investing

Min: 0% - Max: 90% of purchase price.

$

LVR:

Loan to Value Ratio

Min: 10% - Max: 100% of purchase price.

%

Loan Analysis

Estimated Purchase Price:
Your expected purchase price. Final lender valuation may differ and will affect LVR and borrowing.
$x,xxx,xxx
Your Contribution:
Your funds toward the purchase (savings/equity/gift). Does not include costs like duty, legals or LMI.
$xxx,xxx
Loan to Value Ratio:
Calculated as Loan ÷ Price. Guidance only. Lender policy caps vary by property type, location and borrower profile.
xx%
Loan Amount:
Estimated loan based on your inputs. Excludes fees, LMI and costs. Subject to credit assessment and valuation.
in full report
Interest Only: Monthly Repayments
Estimate using interest-only at 5.85% p.a. Excludes fees. Rates can change without notice.
in full report
Principal & Interest: Monthly Repayments
Estimate at 5.85% p.a. over 15 years, monthly compounding. Excludes fees/LMI. Rates may change.
in full report
Stamp Duty: new south wales
Indicative rate for new south wales. Concessions/exemptions (e.g., first home) may apply and change the amount.
in full report
Stamp Duty Cost:
Estimate only. Check SRO new south wales for the latest rules and any concessions that may reduce this figure.
in full report

Property Location

One moment please.

Retrieving map...