Watch Watch
Your home of Development Ready videos
Watch Watch
Back
Sold Check

100 Hampden Road, South Wentworthville, NSW, 2145

+3 Photos

100 Hampden Road, South Wentworthville, NSW, 2145

South Wentworthville

×
Sold Check
+5 Photos

100 Hampden Road, South Wentworthville, NSW, 2145

South Wentworthville

SOLD
100 Hampden Road, South Wentworthville, NSW, 2145

100 Hampden Road, South Wentworthville, NSW, 2145

Properties / Sold / New South Wales / South Wentworthville
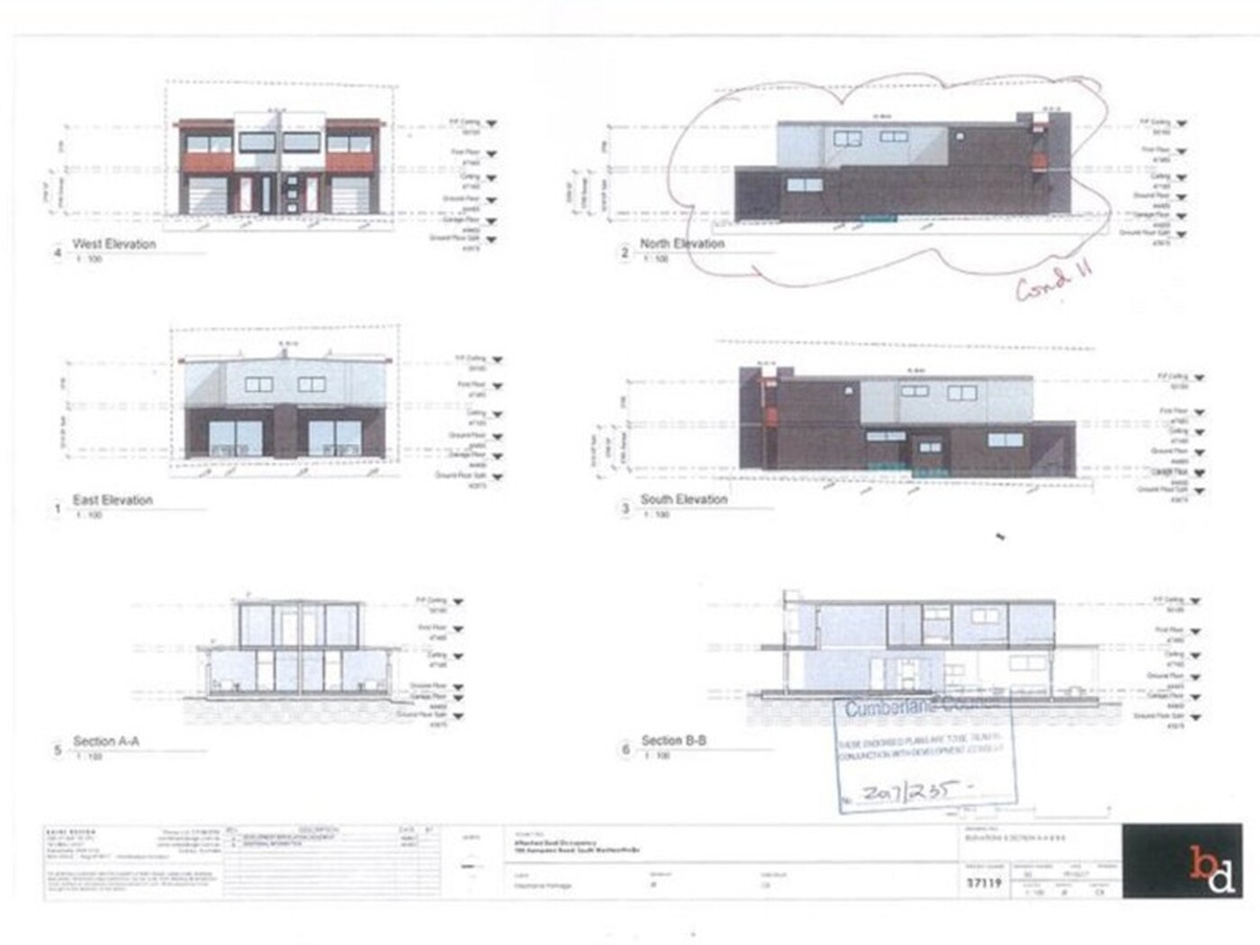
Development Approved
Property Type
Residential
Land Area
556 m² (*approx)
Selling Method
SOLD: $850,000
Show All

ATTENTION BUILDERS, RENOVATORS & INVESTORS – DA APPROVED!

For Sale by Auction: Sat 23-Jun-18 2:45PM

This original single level 4 bedroom family home presents an outstanding opportunity for further capitalisation in a tightly-held pocket of South Wentworthville. Providing immense potential with scope to renovate, rebuild (STCA) or maximize value with bonus DA approval for dual occupancy redevelopment. It features:

  • Magnificent 556m2 level block with a 15.24 metre frontage (approx.)
  • 4 well-proportioned bedrooms
  • Formal lounge room & family/rumpus room
  • Updated dine in kitchen with gas cooking
  • Neat bathroom with updated vanity 
  • Freshly painted throughout
  • Internal laundry
  • Lock up garage with attached storage room
  • DA approval in place for 2 x 4 bedroom duplexes
  • Located within a short stroll to local village shopping, reputable schools, sports ground, parkland, public transport and within easy access to Parramatta CBD, Westmead Hospital precinct and M4 which is currently upgrading (WestConnex)

"Ray White Parramatta/Oatlands, its directors, employees and related entities believe that the information contained herein is gathered from sources we deem to be reliable. However, no representation or warranties of any nature whatsoever are given, intended or implied. Any interested parties should rely on their own inquiries

Remember to mention you found this property on DevelopmentReady

Read More
Development Approved

Development Site Summary

Property Type
Residential
Land Area
556 m² (*approx)
Selling method
SOLD: $850,000

Development Site Highlights

ATTENTION BUILDERS, RENOVATORS & INVESTORS – DA APPROVED!

For Sale by Auction: Sat 23-Jun-18 2:45PM

This original single level 4 bedroom family home presents an outstanding opportunity for further capitalisation in a tightly-held pocket of South Wentworthville. Providing immense potential with scope to renovate, rebuild (STCA) or maximize value with bonus DA approval for dual occupancy redevelopment. It features:

  • Magnificent 556m2 level block with a 15.24 metre frontage (approx.)
  • 4 well-proportioned bedrooms
  • Formal lounge room & family/rumpus room
  • Updated dine in kitchen with gas cooking
  • Neat bathroom with updated vanity 
  • Freshly painted throughout
  • Internal laundry
  • Lock up garage with attached storage room
  • DA approval in place for 2 x 4 bedroom duplexes
  • Located within a short stroll to local village shopping, reputable schools, sports ground, parkland, public transport and within easy access to Parramatta CBD, Westmead Hospital precinct and M4 which is currently upgrading (WestConnex)

"Ray White Parramatta/Oatlands, its directors, employees and related entities believe that the information contained herein is gathered from sources we deem to be reliable. However, no representation or warranties of any nature whatsoever are given, intended or implied. Any interested parties should rely on their own inquiries

Remember to mention you found this property on DevelopmentReady

Read More
Development Approved

Finance Calculator

100 Hampden Road, South Wentworthville, NSW, 2145

Secure/no obligation

Step 1

Loan Variables

Adjust the inputs to explore your indicative finance options.

You can adjust the inputs below by tapping ‘Adjust Variable Inputs’.

Estimated Purchase Price: $x,xxx,xxx
What you intend to pay for the property
Your Contribution: $x,xxx,xxx
The amount you’re investing
LVR: $x,xxx,xxx
Loan to Value Ratio

Estimated Purchase Price:*

What you intend to pay for the property

$

Your Contribution:

The amount you’re investing

Min: 0% - Max: 90% of purchase price.

$

LVR:

Loan to Value Ratio

Min: 10% - Max: 100% of purchase price.

%

Loan Analysis

Estimated Purchase Price:
Your expected purchase price. Final lender valuation may differ and will affect LVR and borrowing.
$x,xxx,xxx
Your Contribution:
Your funds toward the purchase (savings/equity/gift). Does not include costs like duty, legals or LMI.
$xxx,xxx
Loan to Value Ratio:
Calculated as Loan ÷ Price. Guidance only. Lender policy caps vary by property type, location and borrower profile.
xx%
Loan Amount:
Estimated loan based on your inputs. Excludes fees, LMI and costs. Subject to credit assessment and valuation.
in full report
Interest Only: Monthly Repayments
Estimate using interest-only at 5.85% p.a. Excludes fees. Rates can change without notice.
in full report
Principal & Interest: Monthly Repayments
Estimate at 5.85% p.a. over 15 years, monthly compounding. Excludes fees/LMI. Rates may change.
in full report
Stamp Duty: new south wales
Indicative rate for new south wales. Concessions/exemptions (e.g., first home) may apply and change the amount.
in full report
Stamp Duty Cost:
Estimate only. Check SRO new south wales for the latest rules and any concessions that may reduce this figure.
in full report

Property Location

One moment please.

Retrieving map...

100 Hampden Road, South Wentworthville, NSW, 2145 South Wentworthville