 
                 
                             
                    
            BUILDING PERMIT APPROVED, 4 BEDROOMS WITH PERIOD CHARM & STYLISH DESIGN
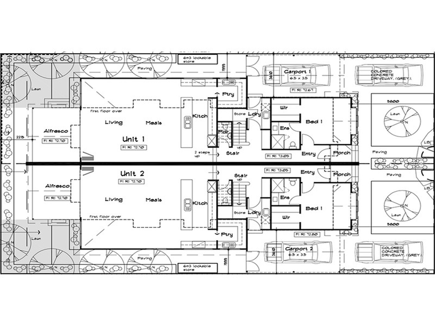
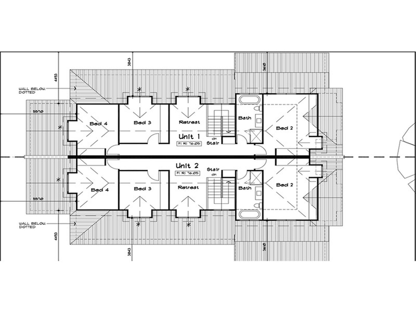
Begin construction on this unique parcel of land offering a spacious and rare 18m frontage. Building permit approved for two side by side dwellings each offering approximately 28 squares of living. The impressive master bedroom set on the ground floor features ensuite and walk in robe. An additional three bedrooms upstairs are serviced by a second bathroom plus living zone/retreat.
The open plan living combines your kitchen/ meals and family room opening to a private alfresco courtyard and garden. Car accommodation includes a combination of a carport and off street parking for two vehicles. Set amongst many local amenities including Oak Park and Pascoe Vale train stations, bus route, easy freeway access, as well as local shopping and cafes. Zoned for Strathmore Secondary college and Strathmore North Primary school.
Plans and further details available for inspection
Remember to mention you found this property on DevelopmentReady
BUILDING PERMIT APPROVED, 4 BEDROOMS WITH PERIOD CHARM & STYLISH DESIGN
Begin construction on this unique parcel of land offering a spacious and rare 18m frontage. Building permit approved for two side by side dwellings each offering approximately 28 squares of living. The impressive master bedroom set on the ground floor features ensuite and walk in robe. An additional three bedrooms upstairs are serviced by a second bathroom plus living zone/retreat.
The open plan living combines your kitchen/ meals and family room opening to a private alfresco courtyard and garden. Car accommodation includes a combination of a carport and off street parking for two vehicles. Set amongst many local amenities including Oak Park and Pascoe Vale train stations, bus route, easy freeway access, as well as local shopping and cafes. Zoned for Strathmore Secondary college and Strathmore North Primary school.
Plans and further details available for inspection
Remember to mention you found this property on DevelopmentReady
 
                     
                     
                     
                     
                